濠滨论坛

点击扫描二维码

查看: 3169|回复: 0

【南山国际】86㎡现代北欧风格

[复制链接]

该用户从未签到

发表于 2019-2-25 15:14 | 显示全部楼层 |阅读模式 来自:江苏

, }1 m& ^5 m" R4 i▎ 作品档案
1 P# S0 D) b% Q3 ~  q4 W; P* c; r3 V- n楼盘地址:南山国际% n- z8 d8 }5 Z" c9 P' D
楼盘楼号:8#
3 u3 z, Z  M+ M* N6 t4 ]. r; _建筑面积:86# I. M& `1 d, N: A+ {' Z
装修风格:现代北欧: r6 J$ F% t# {
设 计 师:朱海波
  x) b; l) O1 b9 Q3 d7 e" p5 D* @+ b0 ]' `7 X6 h
▎ 设计背景
# m+ r# Z8 D- p3 t% q  C业主是一对小夫妻,暂时还没有小孩,所以后期要考虑父母过来带小孩跟储物问题,最好有一个房间作为后期小孩的活动室。$ W+ s! y/ t+ m/ M* c2 M; ~

9 M& l, e: D5 h  l/ C# n" S# F▎ 设计需求* I' d& J) N/ h% ?1 D1 |5 Q
①:保留两个卧室
" S# y' _3 a# \/ L4 t0 c: b2 U$ u②:北卧室暂时待定,5 m  c0 t; o2 X( W9 h
③:进门考虑鞋柜位置( f8 f9 ^! V8 ?! c7 f4 j
④:厨房操作台面稍微大一些
, ]: V! _7 k" m; U1 a1 \) ]# g1 G1 f$ q- I$ B$ r* C# E4 Q  j
▼ 原始户型图
8 P& W# X; e: Z) l
22222.jpg
+ A( c2 y" t3 }" N, p  M0 ?, r
▎ 户型分析* Q9 L+ E" D7 B
①:进门没地方放置鞋柜
# L" d2 X0 K- f1 i②:厨房间太小
, |# C2 ?7 S5 q- L# e* @" [0 s③:北面设备间可以扩大利用2 p/ r/ H% D, n: E  P) \; h% ~1 B
④:朝南卧室偏小要注意家具大小及摆放。: d! J- E2 r+ m9 T8 l+ V; R7 P
6 Y3 T$ @& I& b
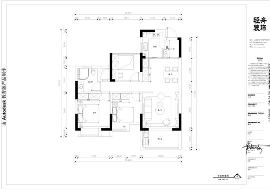
▼ 平面布局图  J; Z" r8 S! J4 b5 C. j* k
33.jpg

6 s/ s9 G8 B# y; r▎ 改造备注$ X2 ?% J# ]# @0 R" n
进门右手边墙体改一下,使得厨房间操作台大一些,鞋柜也有位置放
9 }" @( o* T  `7 Q南边次卧放小一点的床) n; U  a7 c. p
北面设备间敲掉改成多功能房. N% ?5 A+ K' l& ~7 w
44.jpg
' c  t) {5 P5 \% }+ [; x8 o
▎ 设计亮点6 W  _1 u; ^; a2 i6 O% _
整体色调简明,氛围温馨能让疲惫了一天的身体很块放轻松。空间区域划分明确,客餐厅一体的设计使原本不大的两个空间看起来更加宽敞。
" i5 q9 j* p" L! R
0 {0 c3 `7 S, T0 M! M% x
- X0 i0 v" p0 I# R+ H$ y南通0
您需要登录后才可以回帖 登录 | 注册

本版积分规则

手机版|无图版|站务联系 | 商务合作 | 平台公约

信息产业部备案:苏ICP备05014191号-1 经营性ICP许可证:苏B2-20110445 苏公网安备 32060202000307号 © 2001-2019 0513.org All Right Reserved.

投诉争议 技术支持:第一互联 GMT+8, 2025-12-26 11:32 , Processed in 0.160563 second(s), 13 queries , MemCache On. 站点统计

快速回复 返回顶部 返回列表