濠滨论坛

点击扫描二维码

查看: 125610|回复: 40

[装修日记] NO.12【2019年濠滨装修日记大赛】+【雅居乐】+【现代风】+【印象水仙室内设计】

[复制链接]

该用户从未签到

发表于 2019-2-20 11:59 | 显示全部楼层 |阅读模式 来自:江苏
7 R- X( ?+ n* ]& C) P$ r2 F
. p( {/ Q! f1 H0 [7 w  o. ~7 k$ K4 \
基本信息栏:房型:三室两厅一厨两卫+ ~, m+ f9 a9 T- D' ~
建筑面积:125㎡5 }  Y$ ?! {' r9 D
装修预算:25万3 H+ ^: x4 h) X1 d$ ]% `
包工方式:半包3 {' Q7 L8 j# M
装潢公司:印象水仙室内设计+ p1 g! N4 H8 W
设计师:陈晨
2 W9 V/ r% w6 m4 ?9 e8 t& W开工日期:2019年2月14日,情人节哦- W% Y) r& u# Z" x6 g
楼盘地址:雅居乐花园
, }1 \( }$ T8 o) b. D  @

3 C5 ^. K/ j3 \4 P% I这是我在南通买的第一套房,还好16年入手早,当时八千多一平的价格,我当时还觉得贵,还是我老公下定的决心,毕竟我们还有两个儿子,必须得有个属于自己的家。
* K& c6 g; y- |1 t9 n

6 g1 v* n& d' n& r8 _! ^  M结婚7年的时候,我们买了这套房子,原来一直租房子住的。随着小儿子的出生, 大儿子要读小学,忽然发现原来的60平米的房子不够住了,各个角落堆着玩具和杂物,16年的某一天我和老公一商量,来这个小区看房,结合我们的工作地址,
. Z: D. v/ i8 t8 C+ D+ }  @3 h一眼就看中了现在这套房子。不得不感慨我们的当时“冲动“否则现在这个房价,我们的压力会更大了。虽然有很多的不尽如人意,但是总算有了一处安身之所,想到以后不再与人共用卫生间,厨房,不必胆战心惊的听着“吱吱”的老鼠声,能够一件一件的把我们喜欢的电器,家居用品搬回家。。。所有的不尽如意都变的不再重要了。3 s6 R3 O4 I8 K, h+ l  A1 w

' {# M! o8 G: z
在论坛潜水两年多,我也看了很多的装修日记。后来,我们开始挑选装修队,了解建材。毕竟预算有限,很多选择可不能被坑喽,我们的选择相当慎重。凭着感觉去比较,看口碑,看价钱,看手艺,觉得差不多也就定了印象水仙设计。选择理由:他们公司设计符合我的审美和要求,再者我们并没有多少银子的,他们可以根据我们家的预算进行设计、施工、软装,一整套的服务流程很不错。第二,设计师陈晨人很好,不属于高冷型的,第一印象我不反感,他人还很热情,一直为我们答疑解惑(在我们还没有确定找谁装修的情况下),第三,去看了印象水仙堡的工地,做了下对比,作为我们外行来说,从外观看起来比较精细。特别是看了找陈晨设计师装修的一位客户也写了装修日记,又是我们同小区的,为陈晨加分了,嘻嘻。

0 d2 D* h# I2 O% B2 B3 B7 k12月28日,家里验房加上量房的照片,不得不说,专业的团队给我的感觉就是不一样,验房不像前几家公司那么粗糙,量房过程中,我们沟通了足足有半个小时,陈工可有耐心了。1 a2 X3 |. G: L- z( ~$ U

4 G/ H  |' j4 y1 {3 P$ R$ V" G我去吃饭了,下回继续更新喽。  I( h; o+ ^: L2 V! j
9 M; D. g; j3 L- I- f2 F4 @2 U' b/ t
bf90ca47e06faf9a080f6f1b18e0371.jpg ' B+ S+ |- b6 [% ]! ]' }* ^

3 M. S) b0 B  X9 w 05a4054475988bd0e7db79f61a80504.jpg
' R3 w; N6 q6 T3 S1 j' i, c0 B" X  l( Y3 h$ e/ g* L" q
b2edf4ee27ad742125ea31d91d02213.jpg . l: }/ H- i& ?3 s
$ f4 ]( r# T9 r
7385f6ba171710dd53fb3b9d9faa79c.jpg : t7 A$ K$ \, b% i0 r
/ y: ^4 }- w9 C
665c8bc13502ee874920153d3374c78.jpg
1 A- w4 `6 q* `4 A" l
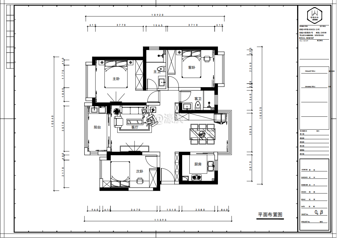
4 f' l; u) j5 j4 G) B0 |4 i经过我们深入的沟通,确定下来的我们比较满意的平面方案。) C  ]9 O) p6 J1 L
/ O7 v9 z. i. K$ A6 j
原始结构图
! e  r* M* d' g: e# f, B, Z1 O
81bca43af851a02cfc87c70fc811f49.png 4 V3 V% _% B( R! N
' M8 N/ O3 g& n# t6 y% s
平面布置图% A/ @8 c) |5 _; _8 v8 C
1 J4 {" K! |7 @' w; D
77679609b7992d45c471d69951fe155.png
) J8 b6 A9 C( Q+ D; Y9 K. j/ {. u! X: ?8 g' s+ W7 e
全景三维图部分,是我跟老公比较期待的部分,正如水仙说这是在施工前可以看到家里装修完的样子,100分!5 S* W& n/ x/ V

5 ~# H* l+ k, m5 n/ m全景三维图
* E4 p  X0 R$ n" j7 I5 C
$ y1 H$ _: g6 y, o) n e2e11fa73875df26fe298d6f0c77e10.png 9 U9 o$ A  Z! o$ u! a( n! i8 `
( H5 {. g  @7 F7 Y% r5 o5 H% c: B8 w
006e4a227a273b56789b7e42e6e0d83.png
$ |/ T) L3 s" k4 c* q0 V, u# b9 V8 _! m/ R$ y# }+ {
4f4128c6559d1292f2fc040a8a51b1e.png 5 S3 G( w  _& `% L) G: c

1 t* l8 ]$ [3 E# Q* ` bec915e6399986ec7c1a7c5303f2e0c.png
: O5 o, {7 c" I# [9 U% s* ^* q; k
# O7 R1 y- B( S; m8 ~( P# h7 n. A$ k# U8 z5 L8 B: {' \# f( M% U
: x$ H; l2 L! P( q
南通0

该用户从未签到

发表于 2019-2-20 13:09 | 显示全部楼层 来自:江苏
优秀优秀               
回复 支持 反对

使用道具 举报

匿名
发表于 2019-2-20 15:30 | 显示全部楼层 来自:江苏
提示: 作者被禁止或删除 内容自动屏蔽
回复 支持 反对

使用道具 举报

匿名
发表于 2019-2-20 17:10 | 显示全部楼层 来自:江苏
提示: 作者被禁止或删除 内容自动屏蔽
回复 支持 反对

使用道具 举报

匿名
发表于 2019-2-22 13:58 来自手机WAP | 显示全部楼层 来自:江苏
提示: 作者被禁止或删除 内容自动屏蔽
回复 支持 反对

使用道具 举报

该用户从未签到

 楼主| 发表于 2019-2-24 10:47 | 显示全部楼层 来自:江苏
**** 作者被禁止或删除 内容自动屏蔽 ****

$ W4 M$ q( u! S( A/ {1 M8 m嗯,设计的我挺满意
  A) Q) I2 u' X, l! x
回复 支持 反对

使用道具 举报

该用户从未签到

 楼主| 发表于 2019-2-24 10:48 | 显示全部楼层 来自:江苏
**** 作者被禁止或删除 内容自动屏蔽 ****

. q. F. \) @: l$ @5 k+ L. O好的,一定,提前约
* I; y* B2 w# o" ~& X, z1 k
回复 支持 反对

使用道具 举报

  • TA的每日心情
    慵懒
    2014-6-28 08:44
  • 签到天数: 9 天

    [LV.3]偶尔看看II

    发表于 2019-3-1 09:52 | 显示全部楼层 来自:江苏
    幸运宝贝 发表于 2019-2-24 10:48
    - G5 b+ U2 I1 j: @4 w8 a好的,一定,提前约
    ' j) }1 O7 M- _5 T0 g, }6 c4 _8 W& V0 c
    我们也经常跑工地,带上我一起哈
    ' R( j. F& J8 F/ `! B
    回复 支持 反对

    使用道具 举报

    该用户从未签到

     楼主| 发表于 2019-3-2 18:27 来自手机WAP | 显示全部楼层 来自:江苏
    水电在进行中,这两天我有时间去工地或者印象水仙进进或者陈总他们去工地有更新,我来发布给大家看看整体装修工艺。
    20190302181340
    回复 支持 反对

    使用道具 举报

    该用户从未签到

     楼主| 发表于 2019-3-5 11:31 | 显示全部楼层 来自:江苏
    & k/ Y1 j' @$ G% S! }  H4 r4 U# q
    上午水电验收合格,下午交个二期款,下一步瓦木进场;陈晨设计师和陈辉项目经理人真的很好,感谢,辛苦!
    3 A% B- p, o* ]3 u) {$ a- t, }
    4 z% E* O# Z0 o: s! o 5dcb038eb1ef8430d2656e184f5fbd5.jpg # j6 a) z  g8 R& s) S
    & `) B" c' h% O! u2 p7 N; \; Y
    cc5321ce4794462f7c925cfc36362ad.jpg
    ( J8 w- \5 ~% W( A+ X4 c  C; |) K. I; u. w/ `, P0 Q2 C
    57d7719a271e9f096ba04adf3c64116.jpg % ^, v3 w' U5 ^! F

    # U  U# g% z0 j, b 33f7bd92a37e31c65dbd81da58af775.jpg 5 s2 e! F. g/ p9 R/ s
    & a- m2 w8 p6 w8 J
    f7fe0003caa1f29ad05e08f930f87fc.jpg
    7 J2 O6 ~$ x( J- A) P' r
    - x, ^7 _! v  ^* X$ X" G' N5 Z a9a700fe928ae3aa83289d39fc3b8e8.jpg
    8 @. [) T# L$ d( i+ W! y
    回复 支持 反对

    使用道具 举报

    该用户从未签到

    发表于 2019-3-11 09:08 | 显示全部楼层 来自:江苏 移动
    恭喜楼主在新年开启装家的旅程,祝一路顺遂,早日入住!
    0 e& y) v* r; g& c原木手作,南通原木文化发展有限公司的独立品牌,- ?- F, J* D0 ]8 \# S
    通城首家专业木艺DIY实验室,体验式原木家具定制的倡导者,1 O' v" S" l/ x5 y/ t2 A
    在这里,让您感受不一样的原木家具定制,从源头开始,
      I5 w$ T/ F* o3 J" }, F  J: y8 g见证自己的家具用了什么样的木材和木蜡油,1 @1 \# J, ~3 W! {' D! @
    让材料造假和以次充好见鬼去吧,让环保和健康不再是您担心的问题,
    2 N9 V' r, S4 m) j0 Z. n' ?2 w天然原木,真材实料,极致环保,是我们的标准也是我们的理念,0 C  k1 |' \) C+ X$ l
    100%公开,透明,让原木家具回归本该属于他的自然属性!$ M. n# y5 a- o5 k/ c6 u
    联系电话:17016138999(同微信)18751307698
    回复 支持 反对

    使用道具 举报

    该用户从未签到

     楼主| 发表于 2019-3-20 15:57 | 显示全部楼层 来自:江苏

    3 ]) I" l( m3 M3 W盗用项目经理陈总夜巡工地的照片发出来更新更新。, I0 W  j9 ~8 {0 W4 A: q$ O8 }

    0 J5 r9 K, g% s; R" E4 X

    0 e( P8 ~5 ?* n* a木工吊顶这块先做的,这个主要还是看装修公司的安排,我个人也是希望木工先做,否则砖铺好了再做木工,虽然瓷砖会做保护,但是吧,我还是表示心疼,装修一次不容易(也许住个半年就无所谓啦)。
    $ N$ m+ N. n2 p+ l( v$ l$ y; ~# E1 n& i9 c/ V" R& Q& L
    9f14bf3614e1057a55df145821a4fd8.jpg
    9 @- o% t- B3 ]  ~6 n1 o! {6 C0 d! e% L
    1ddaedd35bfbd8773cea281d6789845.jpg 8 r3 C5 I9 @8 ?; f7 f
    " P) e/ Z+ B8 l9 B
    9 j1 B/ r1 K4 D3 \. G8 v! H! V
    陈总每周都会跑好多趟工地,检查质量和工地卫生,维持工地秩序,用心良苦,还挺敬业的。目前家里阳台框已经装好了,坐等瓦工来处理和铺贴!
    ) D7 V- G/ F, j1 w/ j3 A
    1 K; g5 V+ }; C7 M  T4 @0 M$ { 3b9455aaf5b7baec85200483d5f360a.jpg ) o# I2 I/ Z" x7 E* R2 K

    1 O, e/ g; i; h3 B( A 4cc6fa0995161da8870806fb34165d5.jpg
    % ?# O( z2 K# E  b' d5 ~- R1 C  B( ~; F. K7 _# X5 y! }& ^
    d03032f11735a4b9defffb42a46b5e3.jpg 5 E* H* q% L: C- [) Y. g

    + p, n' e1 {' ^: t4 \. B0 W过门石已定8 \6 d% Z4 J. @
    ( N& j6 F* F$ ]) G( D. _2 E

      l+ ], |. H! \; d 237a1d3045f14ff011e26f7022e212d.jpg ! p- O$ K' G5 o; e# V3 I

    & n$ Z6 i: y" s( I6 C挡水条顺便也买回来了,清爽,不错。
    ) {6 p# ?4 T2 M/ F0 F6 s' g) {( G/ f3 n9 w# b8 {
    b757dd30874ef322c6c433a980730c2.jpg
    # g; u9 x4 N' t" C2 D$ w" ~! K
    回复 支持 反对

    使用道具 举报

    该用户从未签到

    发表于 2019-3-29 06:40 来自手机WAP | 显示全部楼层 来自:江苏
    现在流行黑白灰
    回复 支持 反对

    使用道具 举报

    该用户从未签到

     楼主| 发表于 2019-4-2 15:52 | 显示全部楼层 来自:江苏

    6 M( M  ~% Y  g$ G今天上午瓦工验收,其他都挺好,就是卫生间的地漏没有铺成我要的效果,不过目前这样也可以,毕竟装修不可能每件事情可以跟自己想象的那么完美。总体还不错。: ^3 m" k7 i6 T/ h
    / [) D/ L" v  F4 Z8 h# n
    75c9001f0824d768d288c328cf009b7.jpg - Q' m* G: U' M# ~& B- E! m
    % U" }$ B/ s8 I/ j7 c( o! D- R# q
    635136e35f3080a868dde53d79266e2.jpg
    4 ~- O& v6 h- V. v3 b/ R2 D0 i
    7 G/ ]) e; r0 n8 ?
    回复 支持 反对

    使用道具 举报

    该用户从未签到

    发表于 2019-4-3 11:16 | 显示全部楼层 来自:江苏
    幸运宝贝 发表于 2019-4-2 15:52
    8 u3 b9 k& Q8 C* {4 L今天上午瓦工验收,其他都挺好,就是卫生间的地漏没有铺成我要的效果,不过目前这样也可以,毕竟装修不可 ...

    4 Y2 A  t: n! c6 R9 D2 v来逛逛,整洁
    ; L0 l; d8 \$ \. C) a: e3 B7 o
    回复 支持 反对

    使用道具 举报

    该用户从未签到

     楼主| 发表于 2019-4-3 14:07 | 显示全部楼层 来自:江苏
    学渣@ 发表于 2019-4-3 11:169 P' X1 w- ~7 `. G6 _( }) c& V
    来逛逛,整洁

    4 k. R& O- \; T5 R7 g嗯,我现在成为印象水仙的忠实粉了,设计和工地都好棒。
    $ H; M5 h. {! g
    回复 支持 反对

    使用道具 举报

    该用户从未签到

     楼主| 发表于 2019-4-3 14:13 | 显示全部楼层 来自:江苏
    家里的瓷砖和吊顶部分已经结束,陈总已经安排油工进场。
    3 V4 ^6 }. V2 ~( L我今天发朋友圈,发的我们家工地,很巧我朋友圈也要水仙的忠实粉。
    6 {/ K# i8 E; m3 \' ~# J5 Q cadf382c3f45053ded12ea5f8623e8d.jpg
      d5 k6 a# U& S  H6 Z6 ?, {* _0 V2 V: @4 ]
    0f4361ec149f6da7e7f6792e4eefdd8.jpg ( I. u" a8 ]6 T, B, J

    , x1 D9 Z* f0 n, P 848631f0a2b9de2554388c0a270cad6.jpg ( N* z5 C# L; k3 [8 I
    $ M, a: @2 e9 p4 i
    e5abc0669dfd12e6f35421eba381a5d.jpg
    7 v2 \! x4 G2 O  H7 y( W7 j! p1 F; u" a- d; ?/ O* O; X7 F! |
    f981fc5a14d19d6de75bc34e9606b56.jpg + _- W% U# c9 G- @( h; u+ `1 B9 O3 |' c) z

    . K5 q" N6 l1 O8 M1 t- ~
    回复 支持 反对

    使用道具 举报

    该用户从未签到

    发表于 2019-4-4 07:06 来自手机客户端 | 显示全部楼层 来自:江苏
    楼主你好,能否给份材料清单?570045129@qq.com
    回复 支持 反对

    使用道具 举报

    匿名
    发表于 2019-4-8 13:34 | 显示全部楼层 来自:江苏
    提示: 作者被禁止或删除 内容自动屏蔽
    回复 支持 反对

    使用道具 举报

    该用户从未签到

    发表于 2019-4-16 13:23 | 显示全部楼层 来自:江苏
    幸运宝贝 发表于 2019-4-3 14:07
    * U/ J3 C  R9 E嗯,我现在成为印象水仙的忠实粉了,设计和工地都好棒。
    ) }' O6 x# v+ ^
    我们家装修的也挺好,最近家里柜子要小改,叔叔打的,设计欠缺了些。' E+ n1 }; H2 `7 l) C
    回复 支持 反对

    使用道具 举报

    该用户从未签到

     楼主| 发表于 2019-4-23 17:22 | 显示全部楼层 来自:江苏
    6 l# _2 S; J& K9 Z8 @7 ^
    油漆阶段,最近天气不错,挥发的快,进展也会相应快一点。) m+ x% U" \; ^, n( `# V- |

    2 W4 ?% @1 o/ K9 O. a b4ceacc4aefc44ef991e29c9700ba8a.jpg ' |5 g# M' \- ?& r. V( b* i
    $ [1 ?2 I! y9 d
    3f20c757d01f5567ed93b43d302b2c6.jpg
    ! n0 I6 O$ h' Y7 o) }" B1 V7 c9 n8 M) g7 T5 d* t
    612d8187ff93c1c03d46b792c776a50.jpg ; u+ s* ~* Z. L- }6 K
    回复 支持 反对

    使用道具 举报

    匿名
    发表于 2019-4-26 13:46 | 显示全部楼层 来自:江苏
    提示: 作者被禁止或删除 内容自动屏蔽
    回复 支持 反对

    使用道具 举报

    匿名
    发表于 2019-5-1 16:53 | 显示全部楼层 来自:江苏
    提示: 作者被禁止或删除 内容自动屏蔽
    回复 支持 反对

    使用道具 举报

    您需要登录后才可以回帖 登录 | 注册

    本版积分规则

    手机版|无图版|站务联系 | 商务合作 | 平台公约

    信息产业部备案:苏ICP备05014191号-1 经营性ICP许可证:苏B2-20110445 苏公网安备 32060202000307号 © 2001-2019 0513.org All Right Reserved.

    投诉争议 技术支持:第一互联 GMT+8, 2025-12-13 19:50 , Processed in 0.299375 second(s), 24 queries , MemCache On. 站点统计

    快速回复 返回顶部 返回列表