濠滨论坛

点击扫描二维码

查看: 160173|回复: 56

[装修日记] NO.10【2019年濠滨装修日记大赛】+【盛唐公寓】+【简约北欧】+【乐雅设计】

[复制链接]

该用户从未签到

发表于 2019-2-15 18:37 | 显示全部楼层 |阅读模式 来自:江苏
& `5 l' }/ @: f7 J0 L1 ]! P# ^) h) m3 T* W( \4 M
基本信息栏:
/ ?* g# N. E7 A6 g7 T
房型:三室两厅一厨一卫
, J6 a/ V- }$ E2 J! w; V
建筑面积:120平方
- ?, j( x* ~; \$ V8 X装修预算:20万
: R1 m! v0 S7 e1 O: h* H包工方式:部分全包% M! t5 @& A! m& w0 r9 c
装潢公司:乐雅设计% E% V' k9 c1 H: k+ U6 v6 S" ]
设计师:赵乐乐1 u7 V5 m% X2 f# t- M% A( i) D) r* G. Z
开工日期:2019年2月23日上午9点18分
: @4 y6 q$ K! K) F/ i楼盘地址:盛唐公寓& ~! i  c/ p% O3 i. X- z* x( I: s$ j

; F0 j9 i3 d" z2 U2 ?- ]- C0 ^
今天难得没有加班吃完饭正好开贴,我已经在论坛上溜达半年了。我是大年三十跟乐雅设计签单的。之前两个月联系乐雅设计量房出了预算。我是东北人刚参加工作不久,女友还在读研,我们手头积蓄也不多,也不认识什么游击队,也怕给游击队做没有保障,正好看到濠滨论坛这个好平台上的日记,几番细读就直接让乐雅设计报了全包的价格,价格很合理直达我心理价位,再加上看到各个网友对乐雅设计的反馈都很好,施工口碑不错,而且设计费才1000元,帮我省了大把银子,我都没有对比第二家就定下了,碍于资金紧,我只签订了部分主材全包,总共12万多,做个简单的北欧风,一些移动式家具去宜家购买。我们决定2月23日,周六开工。+ T7 M+ r6 j% q
南通0
  • TA的每日心情

    2013-12-12 11:49
  • 签到天数: 17 天

    [LV.4]偶尔看看III

    发表于 2019-2-15 23:40 来自手机WAP | 显示全部楼层 来自:江苏 移动/数据上网公共出口
    直接去装修公司谈的吗?
    回复 支持 反对

    使用道具 举报

    该用户从未签到

     楼主| 发表于 2019-2-16 12:16 | 显示全部楼层 来自:江苏
    亚军 发表于 2019-2-15 23:40
    8 s2 Z' B' v" R) G# a- n, F3 c. s直接去装修公司谈的吗?

      p' _# {8 W' k: M你好,我是先加微信谈的,谈的感觉挺不错就去公司面谈然后邀请量房出预算和方案。也是凭感觉觉得信得过就去面谈。
    回复 支持 反对

    使用道具 举报

    该用户从未签到

    发表于 2019-2-17 18:56 | 显示全部楼层 来自:江苏
    恭喜开贴,希望我们整个过程合作愉快达到你要的设计效果。
    回复 支持 反对

    使用道具 举报

    该用户从未签到

     楼主| 发表于 2019-2-21 17:40 | 显示全部楼层 来自:江苏
    cover1.jpg
    8 [8 H% C6 m5 T. A cover2.jpg 6 `2 `, g6 P! R  H
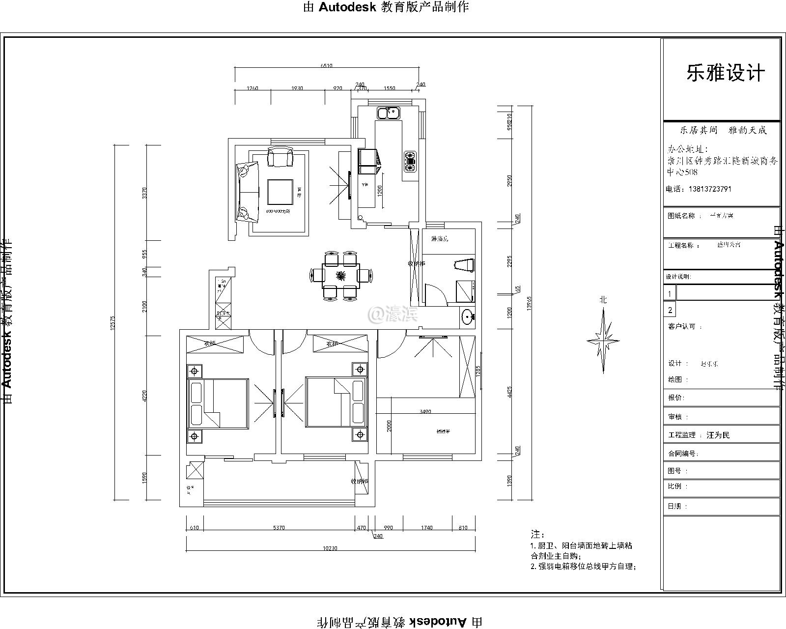
    按照步骤好像应该先上平面图吧。
    1 f: i' x, o( V4 u" F" H/ {' {我家卫生间比较大,好像安置房的卫生间都是巨大,设计师帮我做了干湿分区。我这个部分全包,包含了厨房和卧室橱柜定制,还有地板,门,地砖这些主材,他们公司都比较有优势的。说到定制橱柜,我泡论坛看到很多人抱怨装修公司木工做的难看,乐雅设计他们很钻牛角尖,自己搞来封边机,修边机,扣件机之类的把普通木工板进行拼色设计,硬是做成了大工厂定制级别的样式,他们弄来很多颜色新潮的实木免漆板和各类环保的实木多层橱柜门板。所以我很期待他们帮我家做个高颜值定制。家装公司如果一味不去研发思考限于举步不前迟早被市场淘汰。他们的脑洞开的挺大,抢家具厂生意了。
    回复 支持 反对

    使用道具 举报

    该用户从未签到

     楼主| 发表于 2019-2-24 14:54 | 显示全部楼层 来自:江苏
    昨天难得天晴,太阳出来天公作美,上午9点18分我家非常低调地开工了。因为我们小区是个老安置小区,为了避免打扰邻居我们只放了一串小鞭炮意思一下开了工。赵姐和汪工带着水电工和我一起根据施工图现场地位,我也补充了几个增加的电位,他们非常细心,很多细节我都没有考虑到他们都帮我想到了,我妈三月八日来南通看我正好陪我把问赵姐买的主材选一下,他们效率很快,我家就干湿分离户型改造下,其他没有什么变动,八天之后瓦工就能进场。' U% }7 R; C2 ?! |+ g
    5bc731dcde3d8c51e5f3bba59b0b1ce.jpg
    5 T/ w2 }4 P  e1 q* Q* s9 [ 418991675055db614e8eff6ff460584.jpg - }, @( Q/ j9 b) s
    bf863a2e6b248f76acdda37efefafe1.jpg
    回复 支持 反对

    使用道具 举报

    匿名
    发表于 2019-2-25 15:02 | 显示全部楼层 来自:江苏
    提示: 作者被禁止或删除 内容自动屏蔽
    回复 支持 反对

    使用道具 举报

    该用户从未签到

     楼主| 发表于 2019-2-28 12:14 | 显示全部楼层 来自:江苏
    微信图片_20190228121202.jpg + b: q. p2 b) [" |" w6 _
    微信图片_20190228121207.jpg 0 X% \. ?7 e& I; O6 x8 _
    墙皮全部铲得干干净净,开槽很规范标准,现场垃圾清运干净后,今天下午水电工来埋盒子。
    回复 支持 反对

    使用道具 举报

    该用户从未签到

     楼主| 发表于 2019-3-3 14:45 | 显示全部楼层 来自:江苏
    施工速度非常快,(水电现场照片我过会去拍)明天瓦工要进场,今天跟赵姐去了她和朋友的永兴瓷砖展厅选了一些样,我爸妈昨天从老家来看我也一起去挑选了几款。
    ) O* o  n1 T' b2 {# m! @! u3 j; { 微信图片_20190303143843.jpg 3 o- K2 a( c& E0 N, g2 A, t
    微信图片_20190303143854.jpg
    % S* r7 h* _$ R 微信图片_20190303143900.jpg
    2 C) @. L1 m% O% v) e 微信图片_20190303143908.jpg
    / J' b4 f9 I5 i; |9 I, R5 N我家全屋都是铺地砖,房间也铺砖,选了金相玉牌负离子爵士白全抛釉砖,这个砖有吸附甲醛作用,价格也不贵,
    7 K' S; T6 ]9 A! b- d1 h( d. D( R2 T墙面砖除了卫生间是仿大理石条纹的,其他都用了爵士白墙面瓷片,整体看起来干干净净。
    回复 支持 反对

    使用道具 举报

    该用户从未签到

     楼主| 发表于 2019-3-3 15:59 | 显示全部楼层 来自:江苏
    乐雅工地的水电做的很标准,看起来非常舒服。他们设计施工专人负责不外包充分体现出优势,每个人做自己擅长的就能集中体现优势。
    ( x9 [7 ^, y) }4 _1 t0 `$ t. R水电布线排管横平竖直非常标准,冷热水管都包了不同颜色保温膜区分,强弱电交界处铝箔纸包管仿干扰。防止线管被工具车碾压 用废水管做了保护。她们的汪工管理工地我非常放心
    8 U$ Z, q2 v& Q6 f$ Y$ F, W& a9 ^& t/ T 微信图片_20190303155410.jpg
    + n# c. F% q9 X 微信图片_20190303155416.jpg
    / y; `& Q  V# U; Q8 E 微信图片_20190303155419.jpg 8 F1 L  }. A, f  h# U5 h: L
    微信图片_20190303155423.jpg 5 D4 f7 n# d0 R# O
    微信图片_20190303155426.jpg , m# ^% B% b2 B
    微信图片_20190303155431.jpg
    3 s6 b& r, r: `# C& D 微信图片_20190303155435.jpg 0 D8 t7 V- ?; \5 e) D
    微信图片_20190303155438.jpg . ^- `) h8 I4 \; [9 y
    微信图片_20190303155442.jpg 0 K; b* W& {' t7 l9 w
    微信图片_20190303155446.jpg
    回复 支持 反对

    使用道具 举报

    该用户从未签到

     楼主| 发表于 2019-3-4 12:37 | 显示全部楼层 来自:江苏
    2a14f8381581840f202c2446c062ffb.jpg ' g2 N0 S: ~1 H1 t4 J5 Q# h$ K
    25b4502691819208522aa290320d0e5.jpg
    ' I3 R& b: P0 S& u" ~% l  U 752b255fabcc4de671097006537f2ec.jpg
    7 |$ ?! O( r* Q& w5 f! p cddd2e2c4d750b6efb6c745ed6531f6.jpg 8 t* z: K* l% a5 e7 y% q
    d54bce62cd93999bf228f91f4c12e5f.jpg
    . I9 E6 O9 q  r' z$ \/ ?下水管包静音完工了。乐雅设计的静音管用的双层包裹,好像就他们一家这么做的,内层是金色的隔音毡,外层是隔音棉,最大程度杜绝下水管水流冲击噪声。这些材料南通市场上买不到,他们都是从外地采购回来的。
    # R8 Y) N4 A6 t' R1 k4 G fa5991cc95300f9bb6551941d718a1c.jpg
    ! t& _$ f2 u+ D+ w4 Q cc06ed68dc23c3be59aec337ab6c360.jpg . `+ B( S. u  P7 @4 f- A0 H
    7b5365263c3e2e19fecb1e8f3a15b8b.jpg ( H9 u! b7 Q8 E0 e
    这个就是传说中的试水压,是日丰管公司派人过来试的,具体怎么才算合格我也不太清楚,待会我百度一下。日丰是个老品牌了,市场上出现很多新牌子有的特别贵加了所谓很多黑科技还是进口的,我觉得还是传统品牌好,市场普及这么多年没有坏口碑,乐雅设计一直用的日丰管,是日丰的忠实粉丝,因为他们汪工二十年前进入这个行业就一直在用,这么多年一直质量杠杠的,而且市场占有率高性价比高,是百姓最好的选择。没听说谁用了进口管子家里人喝水长命百岁,该生病还是会生病,也就是图个面子而已,我们工薪族还是追求性价比的。
    回复 支持 反对

    使用道具 举报

    该用户从未签到

     楼主| 发表于 2019-3-7 11:06 | 显示全部楼层 来自:江苏
    前天下班去工地看了看发现卫生间下水管外面很一大滩水渍
    ! g9 S5 y5 z$ K& u, ? 微信图片_20190307110224.jpg
    ) u# p: p* g7 i0 _& ?5 D4 ?汪工昨天大早去拆开静音棉发现管子往外渗污水。: Z7 d" N6 |* t
    微信图片_20190307110230.jpg
    + R2 X% I4 _7 F. q3 K- [ 微信图片_20190307110233.jpg
    ' P* O, {5 L. m3 H4 \. y0 a& f这个应该属于物业维修范围,我于是找到物业缴纳了维修费用物业派人来修理了一下。物业换了新管告诉我不要包消音棉因为接头处没有螺纹,靠箍子和胶固定有外力容易松动再次渗水。哎,这房子的质量!不知道商品房是不是也有这种问题。
    回复 支持 反对

    使用道具 举报

    该用户从未签到

    发表于 2019-3-11 09:07 | 显示全部楼层 来自:江苏 移动
    恭喜楼主在新年开启装家的旅程,祝一路顺遂,早日入住!
    - s4 n; V* }5 S  Z/ U% @原木手作,南通原木文化发展有限公司的独立品牌,3 B. E8 U/ l8 [8 u) N# q9 N# l
    通城首家专业木艺DIY实验室,体验式原木家具定制的倡导者,
    7 t/ x- p$ m* U' l* o在这里,让您感受不一样的原木家具定制,从源头开始,
    ' ]2 R. f$ ^$ I( I3 i见证自己的家具用了什么样的木材和木蜡油,. S2 a( A6 I. T) s; W+ l2 K
    让材料造假和以次充好见鬼去吧,让环保和健康不再是您担心的问题,. r7 V$ e7 {+ ?! |' M/ ?
    天然原木,真材实料,极致环保,是我们的标准也是我们的理念,
    * H# A: _9 C( v/ g1 f7 O100%公开,透明,让原木家具回归本该属于他的自然属性!
    - T- u, l2 {9 I5 D& G- c% d联系电话:17016138999(同微信)18751307698
    回复 支持 反对

    使用道具 举报

    该用户从未签到

    发表于 2019-3-11 09:25 来自手机WAP | 显示全部楼层 来自:江苏
    原木手作 发表于 2019-3-11 09:07( j  k% N& M3 z% `& r8 f9 h
    恭喜楼主在新年开启装家的旅程,祝一路顺遂,早日入住!
    . u# Z& R4 ~% n9 y4 J原木手作,南通原木文化发展有限公司的独立品牌, ...

    6 w* Y8 P! \1 z0 U# F; r" N不好意思,他家家具也被我公司包了
    回复 支持 反对

    使用道具 举报

    该用户从未签到

     楼主| 发表于 2019-3-16 09:39 | 显示全部楼层 来自:江苏
    四天前瓦工刘师傅进场施工,我家全屋地砖,都是用的乐雅设计自己代理的地砖品牌,性价比很高,所有花色同样价格,挑选余地很大。我地砖选的是四十多元江西砖,刘师傅说坚硬度和平整度很好,比一些一线大品牌活动款的砖质量好的多。乐雅设计主材产地质地非常明确,四十多的就不是广东生产的地砖,虽然砖的销售公司注册在广东佛山,所以很多商家含糊其辞都说是广东砖,其实价格四五十的都是注册地广东,生产在外省。正宗广东生产的砖价格很高的,乐雅设计有正宗佛山产通体大理石砖就是六十多一片,非常奢华,这个价格比起其他公司的报价也真是良心价了。刘师傅也是帮龙庭锦苑贴砖的师傅,所以手艺我很放心。
    回复 支持 1 反对 0

    使用道具 举报

    该用户从未签到

    发表于 2019-3-18 19:47 来自手机WAP | 显示全部楼层 来自:江苏
    楼主能给个材料和报价清单不,邮箱842026955@qq.com
    回复 支持 反对

    使用道具 举报

    该用户从未签到

     楼主| 发表于 2019-3-18 21:45 | 显示全部楼层 来自:广东
    奥利奥o 发表于 2019-3-18 19:47! b3 g: S# l; `# n8 B
    楼主能给个材料和报价清单不,邮箱842026955@qq.com
    ( q5 i! x/ R6 n- O* ]% ]) I% q
    发了 请查收你的邮箱。3 d- ?4 _0 a0 b: B
    回复 支持 反对

    使用道具 举报

    该用户从未签到

     楼主| 发表于 2019-3-24 17:11 | 显示全部楼层 来自:江苏
    几天前,汪工带来一个南通本地瓦工。汪工说这个瓦工找他好几次,说是以前在上海做的,现在回家乡了,想到乐雅来干活,但是汪工说新工人不可能马上上工地,哪怕他手艺好也要先测试一下。我家全屋铺砖面积大所以让这个师傅先来我工地铺几块砖砌点墙看看。这个师傅开着很好的小汽车,和汪工的旧电瓶车形成鲜明对比。但是汪工只让他干了半天就请他走了。汪工说一个有经验的老瓦工不会屁大的事情不断打电话给项目经理,这个瓦工砌墙连事先让出多少距离给台盆,贴完砖最后余留多少空间给台盆都不会算,贴的几块墙地砖全部空鼓。刘师傅说这个瓦工看起来不是当工人的模样,以前估计是个包工头,现在没活自己撸起袖子当工人挣钱。到乐雅设计硬装部做工人还真必须有两把刷子,汪工的火眼金睛质量抓的很严格。汪工说一般意义上来讲主动上门找活的工人都不是手艺好的,手艺好的工人基本上被各个装修公司全年都包了,这个也是为什么乐雅设计一直用老工人不随便用新工人的缘故。但是前天刘师傅突然病了,昨天本来说好回工地的,但是医生说他要动个小手术,一时半会我工地就要耽误,不过刘师傅非常负责,让他的朋友---也是他的邻居、小学同学兼工友来我家替他干,这个师傅今天上午很早来到工地,干活速度很快,我还担心这个师傅手艺不好呢,汪工说这个师傅和刘师傅还有吴师傅都是小学同学,也是邻居,大家一起学的瓦工,当年一起去东北打工,手艺一流根本别担心,他们是乐雅设计最好的工人。我爸妈最近从东北过来帮我一起照看工地,我妈爱管闲事,总是去工地指手画脚。这不,硬是让瓦工把地砖又是这么摆又是那么摆着铺,最后弄得四不像还是按照瓦工师傅的排布铺贴了。我们东北的房子装修干区湿区高度是一样的,但是汪工将干区做的高一点,湿区低一点,我妈又啰嗦,一定按照东北老家方式做,汪工劝半天不听,赵姐说要按照东北做法可以但我妈必须写保证书,以后出问题不关她们事,她们事按照规范施工,东北的工人和我们南通工人工艺不同但她们必须保证我家质量,在我从中调和下,我妈终于认同了汪工的做法。0 Q7 o1 m; D* H3 t
    微信图片_20190324165204.jpg - |$ S, J" \9 F9 _  B) K; v
    1 c9 ]/ i6 I9 V& f
    微信图片_20190324165216.jpg / }9 C% P: @' f2 r: B

    $ {; f: p. l8 J0 }$ Y- @% d! M  K) o 微信图片_20190324165221.jpg ' g+ H: }' A% o0 L7 U; }/ d' K9 T

    3 R7 Q1 g) @9 a! G 微信图片_20190324165234.jpg
    回复 支持 反对

    使用道具 举报

    该用户从未签到

     楼主| 发表于 2019-3-30 13:03 | 显示全部楼层 来自:江苏
    最近一直加班没有时间更贴,墙地砖已经贴好,今天约了赵姐选木门和集成吊顶,还有橱柜定制的款式颜色。
    回复 支持 反对

    使用道具 举报

    该用户从未签到

    发表于 2019-4-3 07:48 来自手机客户端 | 显示全部楼层 来自:江苏
    楼主,能不能给个材料和报价清单,邮箱570045129@qq.com
    回复 支持 反对

    使用道具 举报

    该用户从未签到

     楼主| 发表于 2019-4-3 11:41 | 显示全部楼层 来自:江苏
    不咋的 发表于 2019-4-3 07:48
    2 _6 x; q3 i) a/ m楼主,能不能给个材料和报价清单,邮箱570045129@qq.com

    : w& [2 k0 x4 d0 T- V! e- ?半包清单发了 查下邮箱。根据你家预算和他们谈设计,每户不同 仅供参考6 y, F% R) W) l% F; e% m& [
    回复 支持 反对

    使用道具 举报

    该用户从未签到

    发表于 2019-4-3 23:23 来自手机WAP | 显示全部楼层 来自:江苏
    大黑喵 发表于 2019-04-03 11:41' g# b, u& v$ a5 Q! t, h% J
    半包清单发了 查下邮箱。根据你家预算和他们谈设计,每户不同 仅供参考
    0 ^$ k) W2 c  Z  r; f% _. B1 Q
    谢谢楼主
    回复 支持 反对

    使用道具 举报

    匿名
    发表于 2019-4-15 10:33 | 显示全部楼层 来自:江苏
    提示: 作者被禁止或删除 内容自动屏蔽
    回复 支持 反对

    使用道具 举报

    该用户从未签到

     楼主| 发表于 2019-4-18 11:48 | 显示全部楼层 来自:江苏
    **** 作者被禁止或删除 内容自动屏蔽 ****
    + h0 ]% E+ W. H7 ^6 w  E! p% Z
    明细发了,请查收
    回复 支持 反对

    使用道具 举报

    您需要登录后才可以回帖 登录 | 注册

    本版积分规则

    手机版|无图版|站务联系 | 商务合作 | 平台公约

    信息产业部备案:苏ICP备05014191号-1 经营性ICP许可证:苏B2-20110445 苏公网安备 32060202000307号 © 2001-2019 0513.org All Right Reserved.

    投诉争议 技术支持:第一互联 GMT+8, 2025-12-13 19:51 , Processed in 0.326717 second(s), 20 queries , MemCache On. 站点统计

    快速回复 返回顶部 返回列表