濠滨论坛

点击扫描二维码

查看: 35941|回复: 0

中海碧林湾丨96平米现代简约墅级整装,奇思妙想让简约不简单

[复制链接]

该用户从未签到

发表于 2018-12-15 10:47 | 显示全部楼层 |阅读模式 来自:江苏
1490983e28535a875dc485e3529347b5.jpg
2 _1 U1 s4 E# i) o( V; L
忙碌的工作和生活的压力
城市的污染与喧嚣
让我们心身俱疲
于是越发依恋家的温暖
46e8463a83efd126c311aeff91aa8e27.jpg
「中海碧林湾」
96㎡ | 现代都市风格
12#06、07户型 三室两厅
Design By 仝玉强
—2018—
( @+ x! o* ?' K
本案设计师结合年轻夫妇的喜好及需求
选择现代简约风作为本案的设计方向
为业主营造一个温馨的家居空间

+ L4 P+ v( b- r* ~) Y$ k

现代简约风是当下年轻人热捧的主流风格,

本案设计中,

运用设计的手法、将色彩、照明、原材料简化到最少的程度,

整个氛围让人感受到的是轻松和愉悦。


9 E8 V. x$ j2 F5 h, Z

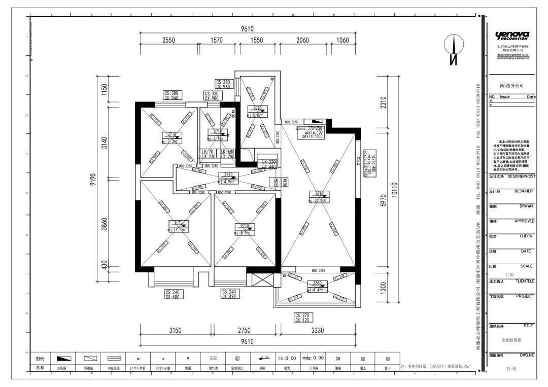
【原始结构图】
户型较小算方正,功能规划合理。
058e0de01b7141b3134322a3f02660ab.jpg

* t3 G0 F; l; Z2 ~" E2 L. k
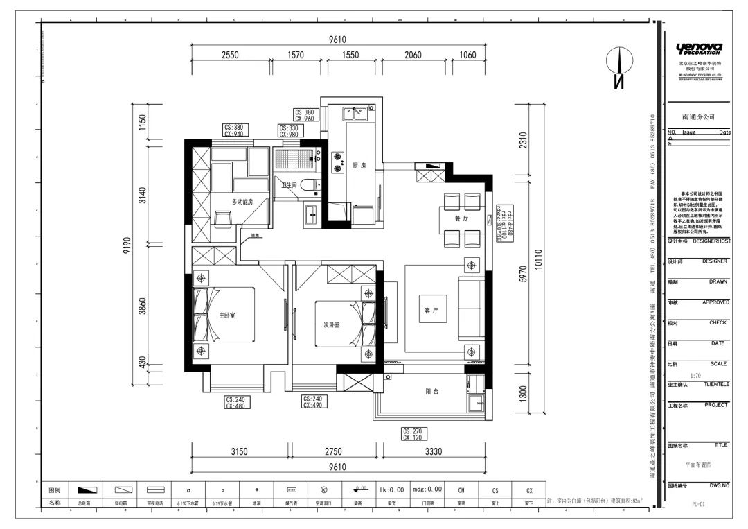
【平面设计构想】
: g  |2 m/ Z" m) I
不更改户型结构,在满足其具体功能的同时,用灯光、色彩、材质变化进行装饰上的设计创作。
c94a2bff51f524010a03b49f1c621d11.jpg
- j3 ^" H/ X/ ?5 ^2 J5 h6 g
♫♪  ♫♪  ♫♪  ♫♪  ♫♪
7 }! d/ c) A( |0 x6 w: |
3e62639ce3e93884b0400217aaf3dcee.jpg
整个空间留白很多
白色的全抛釉砖、白色的茶几、白色的移门
搭配上稳重感十足的灰和俏皮感满分的
呈现给我们赏心悦目的视觉感受
61bfa1616f470a3bccca51bec3bb25b4.jpg
一个造型美观大方的入户储物空间(欧派橱柜)
既是玄关,又兼具实用的功能,
让主人的生活空间井井有条
c934e58ce0a63f7755c9e827508757aa.jpg
; x) ]' u1 ?% x" ^
因为户型结构原因
餐厅的采光稍稍有些不足
吸顶灯与艺术吊灯的综合运用
营造了一个趣味的三维空间
这样的就餐环境
% F) X2 D& a4 S2 y" ]7 s' D7 ^
是不是很吸引您呢
04bbe112f233038bc1a860a681dd71f9.jpg
" x4 I' C& d! u% r* f
石材与皮革材质的搭配
让黑白撞色的餐桌、有了很强的时尚感
营造更有态度的生活艺术氛围
25c3c964e1ecefc70fb91ddea5b2d1d9.jpg

. i' o5 B' r3 l
利用艺术壁挂和原木装饰柜进行软装搭配
增添了住宅的摩登现代感
丰富的空间层次让餐厅生动了起来
f0730d0656be5c4078b35f936c3b8099.jpg
浅灰色的墙布
同色系棉麻布艺沙发
强化了空间的现代时尚感
新颖的竹木护墙电视背景
契合了业主回归自然的初衷
清新·舒适·时尚
291972bf40eb3b54d000577b001a3c3e.jpg
会客区域也很细心
抽象的现代画与北欧风沙发相得益彰
局部再辅以藏青色、黄色等“皇家色彩”
" `5 _$ \7 D/ n5 g% z" ~
温馨·个性又不失华贵
3 W% M" @6 ~" _& Y/ v0 P+ N
4f4a96be8f5930509ec79813f417ad8f.jpg
; f( _. r# m( E
窗帘深灰色的运用
让生动的室内空间
多了一分沉着
也提升整个空间的艺术性: K( j  [4 Q- r+ V. x
低调而高端

+ d" ?- M- P# a/ G, V' r3 |- [3 a) [
配色tips :
黑白灰和原木色的搭配
1 i, _* j- [  W) T
既保留了简约风格的轻简时尚
又保留了原木色的清新自然
黄色的温暖搭配黑白灰的高级
在不失档次的同时兼具温馨和舒适

$ `6 w# [  E% T/ s$ E
本案是业之峰墅级整装的在中海碧林湾众多案例中的一个缩影,业之峰南通公司设计师与施工人员一起,力求探寻业主日常生活的潜在需求及内心钟爱,以业之峰墅级整装的泛家装服务内涵,用标准化与个性化兼顾正本清源,以让业主放心、省心为最终目标,满足业主对家的美好畅想!
0 i5 k! t1 M2 {8 v- H$ R6 H
【本案主材配置】

' g( y1 _# B( `1 z
$ S( ^# ~1 b) P% s. B  j
橱柜-----------------欧派
' y$ s$ X- Q- q. {$ y7 G
衣柜-----------------欧派
卫浴-----------------科勒
地砖--------------诺贝尔
地板-----------------圣象
木门-----------------日门
吊顶-----------------宝兰
家具-----------------欧派

5 s) B" c2 h9 ~+ v+ G6 R
后记:
因客户工作忙碌,妻子也正处孕期不便监工
整个装修都由设计师和项目经理全权负责
在此感谢业主对业之峰装饰的肯定与信任
为南通业主提供更高端的环保装修
是业之峰每一个员工的责任
  I1 F' P$ h% h. G
d602a815651e997907074f2b38ca7502.jpg

7 z" j# H! q: g& Q( u南通0
您需要登录后才可以回帖 登录 | 注册

本版积分规则

手机版|无图版|站务联系 | 商务合作 | 平台公约

信息产业部备案:苏ICP备05014191号-1 经营性ICP许可证:苏B2-20110445 苏公网安备 32060202000307号 © 2001-2019 0513.org All Right Reserved.

投诉争议 技术支持:第一互联 GMT+8, 2025-12-26 00:38 , Processed in 0.177328 second(s), 14 queries , MemCache On. 站点统计

快速回复 返回顶部 返回列表