濠滨论坛

点击扫描二维码

查看: 3954|回复: 0

【装修案例 2】76㎡浪漫北欧风三居,开启五口之家的幸福生活!

[复制链接]

该用户从未签到

发表于 2018-12-15 09:50 | 显示全部楼层 |阅读模式 来自:江苏
% H( v- a9 s# w* s" a3 p7 T. N
8 ]* U$ J+ P* E
这是一套面积为76平米的北欧风格小三居,一家五口,业主要求房子的装修要考虑父母居住的舒适度还有孩子学习生活的私人空间,以及日常收纳的需求。设计师根据业主需求对户型进行了功能的优化调整。
$ a# m: }1 V/ R4 ]! `" o
1.jpg
简约的北欧风格设计,色彩搭配年轻浪漫,通过精致的细节,营造出温馨舒适且有品质感的生活空间。
2.jpg
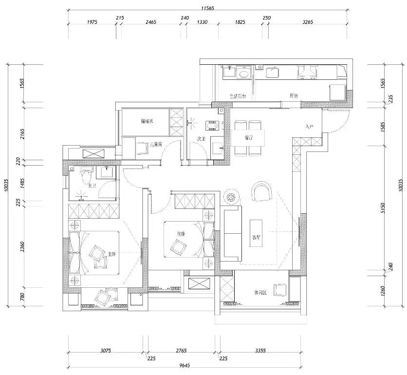
▲原始户型图
3.jpg
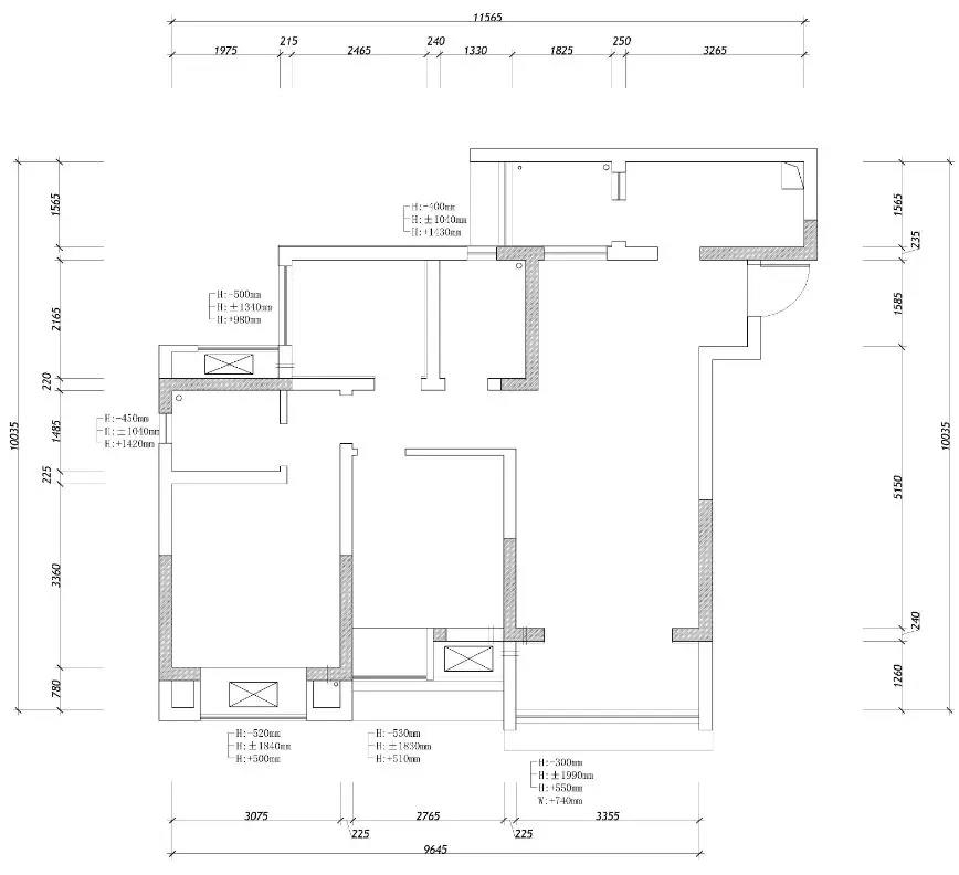
▲平面布局图
. ^  m  e9 m5 Y- P( V# [5 e( n
|  客厅  |
4.jpg
将阳台空间纳入客厅,做成了地台,客厅看上去更宽敞,阳台休闲实用两不误。
5.jpg
阳台一侧打造成收纳柜,另一侧是个阅读区。墨蓝色窗帘搭配粉色懒人沙发,让色彩有了对比和层次。
6.jpg
定制电视柜挑空设计,底下的空间可以放置扫地机器人,且无卫生死角。
7.jpg
沙发背景墙可以说是客厅最大的亮点,选择了温暖又恬静的珊瑚色,搭配灰色布艺沙发,色彩层次丰富。
8.jpg
丝绒、金属、木纹、皮革、灯光,每个材质的加入,都让这个空间的耐看度和精致度得到提升。
: C; f/ n# S' O& v( i

9 L+ S2 `! ~/ H: ?1 Q' E
. C+ J+ e' a1 J( ]; ^4 q; |
|  餐厅  |
9.jpg
从客厅看餐厅,简洁的餐厅,选择了不同材质和造型的餐椅,小小的变化,让小空间不会过于呆板。
10.jpg
网红的泡泡灯,简洁有质感,满足功能性的同时,添加了设计感  ,玻璃质感加上灯光温度折射出朦胧美。
11.jpg
餐厅对面定制柜,右侧是做为入户鞋柜使用,左侧开放式的柜子,做为餐边柜或书架使用都是不错的选择。
' G9 }6 z. v: o# _
|  厨房  |
12.jpg
厨房用的灰色墙砖,既简洁大方又耐脏。操作台做了高低台面的设计,洗菜刷碗再也不用弯腰了。
# e0 p1 F( N$ h) J
|  主卧  |
13.jpg
% Y& e. I) T: M, B7 e
主卧的设计强调了都市感,有一丝华丽却又不张扬。
14.jpg
清新淡雅的色调,安静优雅,比较容易营造舒适的睡眠环境。金色衣柜拉手、壁灯、吊灯,得升了卧室空间的品质感。

$ O. e# B# L2 c  y9 b
|  次卧  |
15.jpg
次卧为父母准备的房间,简单纯粹清净,绿色为基调,木质采用白橡为主,引入了天然清新的气质。
( w7 @# P0 a9 V  R
|  儿童房  |
16.jpg
灰色调的儿童房,点缀蓝色和黄色,增添空间的活泼与活力。
墙面的三角形隔板搭配立体的长颈鹿墙饰,还有窗帘和床品的图案,以及一些小摆件,让儿童房充满了趣味性。
17.jpg
由于面积较小,选择了定制榻榻米+书桌设计,增加更多储物空间,也让宝宝有独立的学习空间。

& |/ f2 k' M9 o$ ~" \
|  卫生间  |
18.jpg
这个小家有两个卫生间,风格一致,都是黑白与原木的简约搭配。

! m5 \' Q% q  Y" p! D2 U& k9 Z' ^

4 c" z& q3 h, H* a1 J, x- U4 b! `% d
! O7 R' i! ^2 z2 Z' y; v/ A+ y南通0
您需要登录后才可以回帖 登录 | 注册

本版积分规则

手机版|无图版|站务联系 | 商务合作 | 平台公约

信息产业部备案:苏ICP备05014191号-1 经营性ICP许可证:苏B2-20110445 苏公网安备 32060202000307号 © 2001-2019 0513.org All Right Reserved.

投诉争议 技术支持:第一互联 GMT+8, 2025-12-26 00:38 , Processed in 0.235601 second(s), 12 queries , MemCache On. 站点统计

快速回复 返回顶部 返回列表