濠滨论坛

点击扫描二维码

查看: 7039|回复: 0

【红峰装饰---------皇家花园 100平 新中式

[复制链接]

该用户从未签到

发表于 2018-12-10 11:31 | 显示全部楼层 |阅读模式 来自:江苏
【本期作品推荐】
. ^! q, N8 Y: O6 O2 N4 u

+ f1 B! e  k& O3 ^1 @( S
作品地址:皇家花园

7 N/ c! k; Y; n/ |- U
作品面积:100平

* c8 Y$ a9 K* E8 u( u/ v% a& ^2 Y, |* `
作品风格:新中式

0 b5 U  P. }, _6 s+ R/ W  \  o% K- p  l) \$ N& V) A+ B, Q6 G
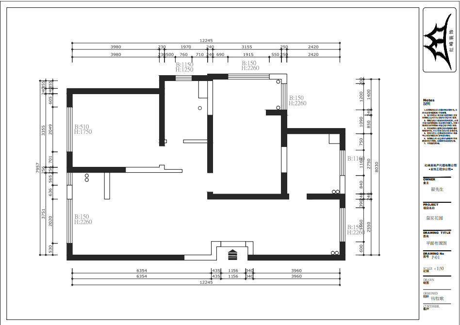
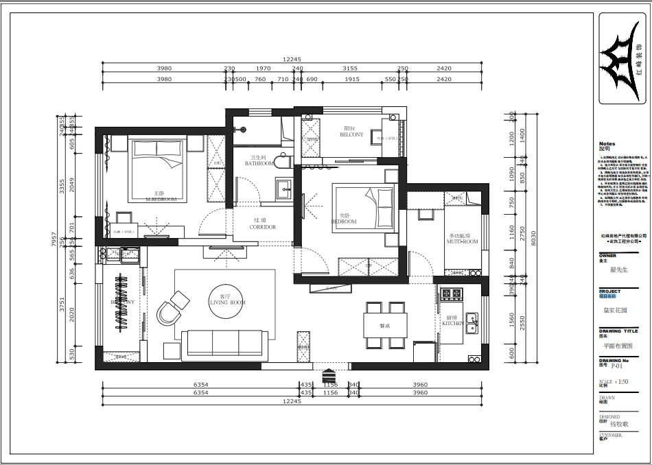
平面图
! P0 F% S9 S/ m! N. _1 v0 O
▼▼▼
▼▼
10fbb2aa4b70f3ca39335f717da80ea.png

: W/ u) C- z  x1 g: ~0 S
e9c16e4d258170ba54d68fdae3633f2.png
0 I; W" O1 _' K4 t
效果图
▼▼▼
▼▼
图片1.png

, }' s# v6 W8 X7 F* }
图片2.png

3 n! M$ b0 U* j- a; d
图片3.png

3 X7 B& h6 v8 A1 \( l4 ]( z) z
图片4.png

' W7 `: d  M8 p: d$ J- Y; E
设计师介绍
▼▼▼
▼▼
姓名:钱牧歌
. b% S& B( t7 |) Q% J
从业时间:4
- _3 {9 f$ _: D5 ?# U- R% A
擅长风格:现代、新中式、简欧、美式、北欧,
3 b& B& U& T$ `, ]
作品:星怡花园  帝奥世伦铭郡  中港城  学田苑  万濠山庄等

4 y$ _# D1 ]1 ~4 X
设计感悟:设计源于不断地学习,从生活中感受设计,从设计中享受生活!
6 N* ^4 L5 d7 ]# x- y# \* o: ]

; ~( H& D6 \& F
) W( T) \5 N5 u2 \; o3 _0 b9 P' h: w1 [; L
. P3 ~9 {2 s5 F; k8 c$ s

  k6 a+ O. o& v# U! D
4 I6 Q; C0 s  a  ~( K( m* o南通0
您需要登录后才可以回帖 登录 | 注册

本版积分规则

手机版|无图版|站务联系 | 商务合作 | 平台公约

信息产业部备案:苏ICP备05014191号-1 经营性ICP许可证:苏B2-20110445 苏公网安备 32060202000307号 © 2001-2019 0513.org All Right Reserved.

投诉争议 技术支持:第一互联 GMT+8, 2025-12-26 07:37 , Processed in 0.159569 second(s), 14 queries , MemCache On. 站点统计

快速回复 返回顶部 返回列表