濠滨论坛

点击扫描二维码

查看: 6201|回复: 0

实景走一波|紫东南苑128㎡北欧风格

[复制链接]

该用户从未签到

发表于 2018-11-30 17:09 | 显示全部楼层 |阅读模式 来自:江苏
) t8 D5 W) Q6 ~& [9 R9 u
1 ?2 }: }1 c0 h: t# O( F7 T& C- \3 X
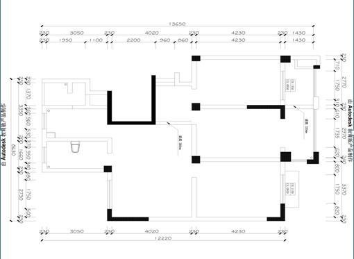
装修地址:紫东南苑
* o7 d- }5 Y' F  o装修方式:全包
& _, `. x- d( [; s% @: v+ R* w装修公司:轻舟装饰先看下原始结构图,原户型厨房,客餐厅面积都不大,没有足够的储物空间。该业主是三口之家,有个四岁的小宝宝,对生活品质有一定的要求。
& r; h# ~# ~! i* U- ~
QQ截图20181130163706.jpg
5 p! ^$ R) N! }: M0 i2 c4 l
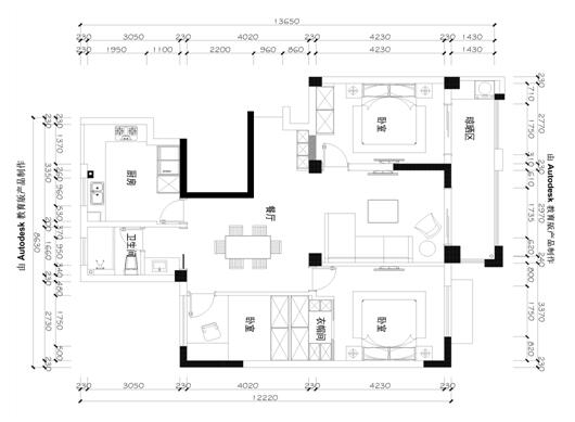
& c! X* j" A5 K7 l# Y/ U本案设计师将厨房隔壁空间打通做厨房,增加操作空间的同时使厨房更宽敞。外卫使用干湿分离让家里生活更加便捷,使用方便。把进户门左边房门移到另一侧,增加鞋柜,将右边中间房间与餐厅打通做客厅,将原客厅与餐厅隔开做卧室,使客厅与餐厅空间更宽敞布局更合理。
  J" Q1 k2 w$ ~
3 V  P+ _8 e, j5 A% L2 `" l QQ截图20181130163715.jpg : ?; o' e; L# w' C& o! S7 a
完工实景拍摄,淡淡的北欧风给人很舒服的感觉~. O. t8 F, _% O, y8 N
2 h7 a9 S# ^4 A" C4 F; c* w
1-1.jpg 6 k$ Z+ z- K  }5 V' w
QQ截图20181130162531 - 副本.jpg
* @0 M7 V, I7 R+ b# m* Y QQ截图20181130162557.jpg " V; r8 ^2 e( _" ~! u. T: i9 \; p
QQ截图20181130162619.jpg * m8 `; D. ]+ T( ^: |7 i, Q
QQ截图20181130162646.jpg QQ截图20181130162654.jpg QQ截图20181130162635.jpg QQ截图20181130162609.jpg QQ截图20181130162543 - 副本.jpg   L; I8 H+ N$ _
南通0
您需要登录后才可以回帖 登录 | 注册

本版积分规则

手机版|无图版|站务联系 | 商务合作 | 平台公约

信息产业部备案:苏ICP备05014191号-1 经营性ICP许可证:苏B2-20110445 苏公网安备 32060202000307号 © 2001-2019 0513.org All Right Reserved.

投诉争议 技术支持:第一互联 GMT+8, 2025-12-26 02:17 , Processed in 0.164990 second(s), 12 queries , MemCache On. 站点统计

快速回复 返回顶部 返回列表