濠滨论坛

点击扫描二维码

查看: 6569|回复: 0

紫东南苑|北欧风格|淡淡的灰色调感觉很舒服

[复制链接]

该用户从未签到

发表于 2018-11-29 14:31 | 显示全部楼层 |阅读模式 来自:江苏
7 w8 A, x6 A/ a/ }( b
▎ 作品档案
# b/ n  P0 y5 A3 `! ^1 b, S. Z楼盘地址:紫东南苑
" K6 T  {* S. t4 _4 R. k& K7 f建筑面积:  128m2
8 N6 T4 X, l! K' c装修风格:简约北欧风格+ e7 u2 F( X/ ~8 i' Z" M1 q, K: v
设  计 师:张强
6 N$ _$ J; R3 Y0 |0 J1 ^' v) [% @& I% _/ Y; [
▎ 设计背景
, Q$ L) ]# `- \( ^9 p这套房子是三口之家居住。有个四岁的小宝宝,对生活品质有一定的要求,讲究生活情趣,对以后的生活抱有较大憧憬。# e( s6 Y% b, y/ a, z' A

+ Q" j( u4 O7 T6 f/ \1 I+ S) m▎ 设计需求' j* C/ t* o! E. O3 q# g
①:需要充分的储物空间。
) w  u) e- B3 g" s& _②:只保留一个卫生间且卫生间要干湿分区,需要两个卧室一个书房,实用、美观。
( i9 K3 X+ m; w' h$ U) v, h③:设计方面运用更多现代元素,简约明朗,个性又精致。& [, _( n" q/ H/ |( o/ q$ U$ x
④:地面砖颜色要求深色。
: Q9 U  @( ~/ l  f9 t⑤:客厅采用无主灯设计。
; M* m; v6 d! J1 B! [2 c$ Z! B  L, W1 E. X; O6 e5 F$ p
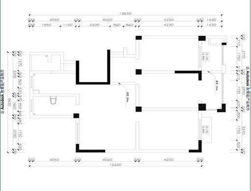
▼ 原始户型图
! I3 o; i) I6 d. j0 w$ N5 v8 Q; T QQ截图20181129141611.jpg
$ [: {- t7 Q1 q6 y6 w# \0 g( y* H▎ 户型分析
: _% I1 ?' H* w; F①:原厨房空间不大。8 Y% e$ u  E  x- v9 d3 j, E
②:原房型客餐厅不大。
0 b" e, r+ v4 S1 r4 k( r; s③:原房型门厅没有储物空间。
4 R  Y, b; D# J% ~+ y  b. V④:储藏空间满足不了客户需求。8 d/ v' i" l- }5 L8 h2 j2 t1 d

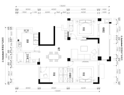
. W/ h  y# K$ q8 k  Z▼ 平面布局图
  ?7 Z% ?- a  W QQ截图20181129141623.jpg + p; o! }+ W: U0 {/ z
1 r5 A+ F2 n: \6 I
▎ 改造备注
% c1 a0 `& k! c# ]①:将厨房隔壁空间打通做厨房,增加操作空间的同时使厨房更宽敞。/ s  ^% M$ X* S# K$ o9 G8 W
②:外卫使用干湿分离让家里生活更加便捷,使用方便。
# y0 T; F2 p) \# X5 H③:把进户门左边房门移到另一侧,增加鞋柜,。" Q- K; K3 f* G& q% e$ K0 g  K
④:将右边中间房间与餐厅打通做客厅,将原客厅与餐厅隔开做卧室,使客厅与餐厅空间更宽敞布局更合理。
' i) n  ~- l1 o0 i) O8 d! I$ a* ?: n! _0 s/ L' W
▼效果图
  f: Y& Q  f9 O5 u5 l QQ截图20181129110952.jpg
$ f) q3 M8 X2 _# F- n+ r2 ^ QQ截图20181129111011.jpg
6 A9 v' p0 k6 `: p& [8 V QQ截图20181129111021.jpg    , ?3 |) j/ o1 U$ h
▎ 设计亮点1 H8 E7 }( h" C" E- S/ B5 Z) z
本方案是围绕简约北欧风格为主题。北欧风格,简洁、干练,让家中呈现一种自然的舒适、干净之美。简约风格中通常线条简单,造型简单,富含设计或哲学意味但不夸张。色彩多为单色,灰色、银色、米黄色等原色,无印花、无图腾的正片色彩带来另一种低调的宁静感,沉稳而内敛。符合现代人的生活品位。全面考虑,在总体布局上方面尽量满足业主生活的需求,浅色墙面和深色地面相呼应,加入北欧风格色调进行融合,来让整个空间更年轻耐看。创造一个温馨,健康的家庭环境。 ! `. }9 E$ B, i0 _* _
* h- i$ Q$ A3 z4 S# z% C7 B7 ?

; \5 h3 A$ w, s4 y0 l+ N, ?2 B: u3 L5 p( C' M, P; G: u
南通0
您需要登录后才可以回帖 登录 | 注册

本版积分规则

手机版|无图版|站务联系 | 商务合作 | 平台公约

信息产业部备案:苏ICP备05014191号-1 经营性ICP许可证:苏B2-20110445 苏公网安备 32060202000307号 © 2001-2019 0513.org All Right Reserved.

投诉争议 技术支持:第一互联 GMT+8, 2025-12-26 02:12 , Processed in 0.188982 second(s), 13 queries , MemCache On. 站点统计

快速回复 返回顶部 返回列表