濠滨论坛

点击扫描二维码

查看: 8169|回复: 0

红峰装饰【龙庭景苑】130㎡ 北欧风格

[复制链接]

该用户从未签到

发表于 2018-11-28 15:30 | 显示全部楼层 |阅读模式 来自:江苏
! {$ E- S- q, M7 c8 c1 B+ S% V; [1 R9 Q4 \2 [; q9 ~
【红峰装饰案例分享

! T7 I9 {7 u9 h9 }7 f
本案亮点: 北欧风格强调室内空间宽敞、内外通透,最大限度引入自然光。
7 l, x  u$ y, @4 `& @6 G+ u
小区:龙庭景苑         面积:130平米
风格:北欧风格         预算:15-20万
6 n2 A/ J% w! ?5 l, [

. u9 p: z  h9 P9 R, f
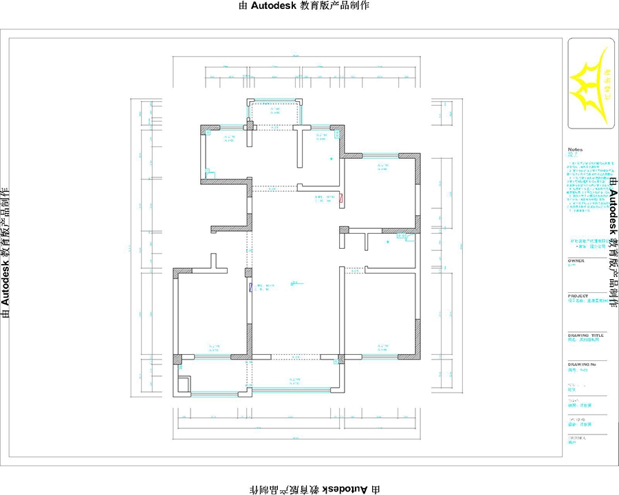
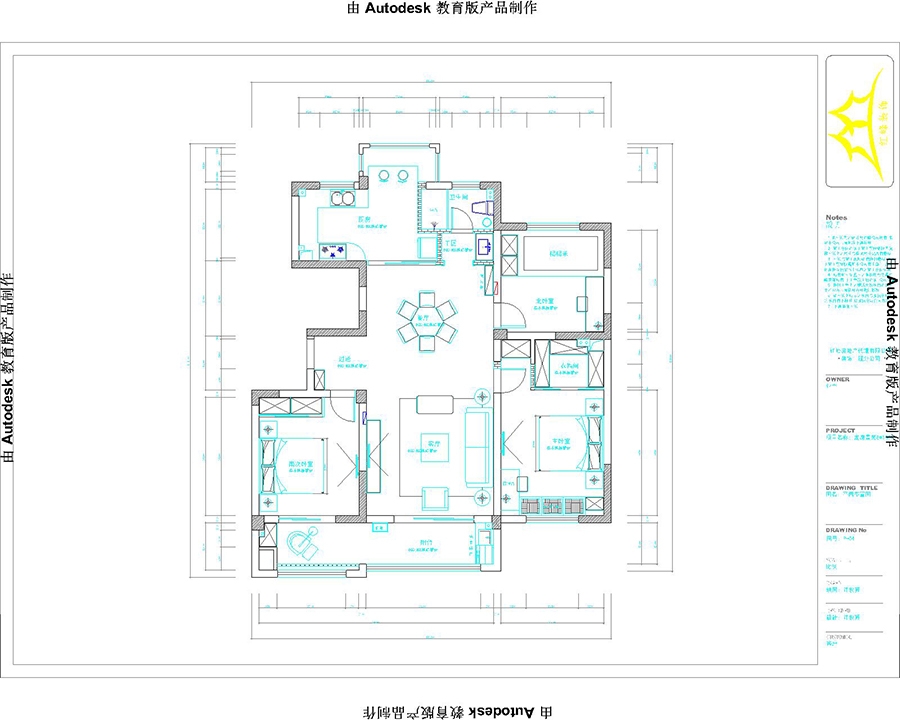
【本案平面布局图
" u& s" |2 }+ v  }" `
1.jpg

( ^) |8 g+ c9 I" e* C/ L; U" e3 f, l
2.jpg

4 [3 l; e- g3 l. P& T( P& x# a8 o9 D' c$ u  e3 p8 o  P5 ], O% s0 a( B) j) q
1 @6 p. E* h: M6 {" M0 r
【本案效果图

9 z+ u' l: Y% }6 W; \" \9 Y
. b1 _5 m5 Q( [& b4 g% I
3.jpg
# y- M" h( `) ^9 X. r* K
% Y7 o3 S& u1 W" p) _: Z
4.jpg

) P3 L3 `7 k2 {8 k1 X
: i" y3 Q  l4 @: y) z; X0 {, s5 N7 \
【本案设计师
4 E! ]9 ?" g+ I1 b$ V) _% i
11111111_副本.jpg
许俊贤 家装设计师
生活是创意的来源,创意源于文化,创意源于自己
! H2 g4 D: k: G$ M% `6 h! i+ D
' E4 x: ?* A2 C4 T. ~+ n
红峰装饰服务热线:0513-81029960
南通0
您需要登录后才可以回帖 登录 | 注册

本版积分规则

手机版|无图版|站务联系 | 商务合作 | 平台公约

信息产业部备案:苏ICP备05014191号-1 经营性ICP许可证:苏B2-20110445 苏公网安备 32060202000307号 © 2001-2019 0513.org All Right Reserved.

投诉争议 技术支持:第一互联 GMT+8, 2025-12-26 02:17 , Processed in 0.167532 second(s), 13 queries , MemCache On. 站点统计

快速回复 返回顶部 返回列表