濠滨论坛

点击扫描二维码

查看: 35559|回复: 14

NO.2【2019年濠滨装修日记大赛】+【华强城】+【现代】+【22号装饰】

[复制链接]

该用户从未签到

发表于 2018-11-22 18:06 | 显示全部楼层 |阅读模式 来自:江苏
3 i  e3 `' w$ K2 {. ~. h

) @0 p5 y2 \, Z/ |9 q% j房型:2室1厅1厨1卫
8 C: O$ m' |) H/ k9 o/ C建筑面积:75平方9 u$ T% S# M/ S- O7 d# D
装修预算:10万6 w4 r+ @9 y7 a
装修方式:半包
' O) l8 S1 Q$ B: q+ }+ ]+ Z装潢公司:南通22號装饰
2 k6 i% N; v/ ]- _" F! M( b3 a设计师:邰港华
: O) j/ ^8 b6 }, `" y* ]( y
监理:张正0 f: _/ N: Z$ q: |6 f
项目经理:胥浩
) ?; d' ]; q) p' l. ?' @/ S# N开工日期:2018年11月25日
  |; P; q1 ]$ F1 n7 J& T3 }/ e楼盘地址:华强城

; K- P  Y/ w2 k0 `8 n+ I
# d4 Y' g7 p! Z. s$ E      去年初买的房子,买给家里老人住 。本人工作在上海,只能托管给装修公司  三四月份就开始在平台看装修,后来找了设计师,拖拖拉拉直到今年11月才正式开始" k5 `  k* A1 }. `$ i
  相对来说我家的户型还算方正,所以我们基本不改变房子结构。 开工那天来公布详细3 `1 R; a/ c: ?& R7 ]% J9 y

: Q" K9 \& L2 c; r# D
- H! D8 c2 o# `9 c& x

: |& P3 i3 g; {, |1 e  t* B$ ~
. A; o4 l5 E3 o* f% p+ _- x

8 Z, M) z+ H* q* @- H! [南通0

该用户从未签到

 楼主| 发表于 2018-11-23 09:44 来自手机客户端 | 显示全部楼层 来自:安徽
希望周日是个好天气
回复 支持 反对

使用道具 举报

该用户从未签到

 楼主| 发表于 2018-11-26 15:07 | 显示全部楼层 来自:江苏
今天有空 来更新下
回复 支持 反对

使用道具 举报

该用户从未签到

 楼主| 发表于 2018-11-26 15:13 | 显示全部楼层 来自:江苏
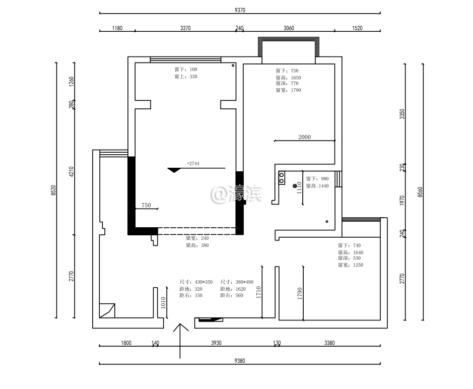
下面来说说房子的情况,因为前面没有想到过要写装修日记,所以前面的开工、拆墙等工序我没有拍照,现在装修进行到了水电开槽阶段,我就从这个阶段开始写起吧 先把方案发下
4caa1130cefbe9b54d1dd34140d3f8e.png
d366d674443d77134b47acdfe61baf6.png
回复 支持 反对

使用道具 举报

该用户从未签到

 楼主| 发表于 2018-11-26 15:15 | 显示全部楼层 来自:江苏
现在进行的就是改水改电工程,原来工程遗留下的水路,没有太大的改变,我们一般不建议卫生间改动马桶的位置,因为那样改动,多加了一截管道,容易堵漏,当时候卫生间会有异味,所以坚持原来工程上遗留的位置
回复 支持 反对

使用道具 举报

该用户从未签到

 楼主| 发表于 2018-11-29 15:20 | 显示全部楼层 来自:江苏
再来几张水电验收的图,反正我是觉得很棒,横平竖直的
8 N4 J  O0 L4 M7 j  N+ b: o4 P( Y
5e7c0a2dcd4b7553136f210d27ebf01.jpg
8153d33d07d1c5549171658dcfce3f2.jpg
c29eab5af1edc48801279021d748df7.jpg
f896af13c46cacc4f4fa3ced4043da6 (1).jpg
回复 支持 反对

使用道具 举报

该用户从未签到

 楼主| 发表于 2018-11-29 17:27 来自手机WAP | 显示全部楼层 来自:安徽
验收合格,接下来就是等水管的压力测试了
回复 支持 反对

使用道具 举报

匿名
发表于 2018-11-30 13:45 | 显示全部楼层 来自:江苏
提示: 作者被禁止或删除 内容自动屏蔽
回复 支持 反对

使用道具 举报

匿名
发表于 2018-12-1 14:29 | 显示全部楼层 来自:江苏
提示: 作者被禁止或删除 内容自动屏蔽
回复 支持 反对

使用道具 举报

该用户从未签到

发表于 2018-12-1 15:53 | 显示全部楼层 来自:江苏
**** 作者被禁止或删除 内容自动屏蔽 ****

. i+ h: I4 ?* `7 S; }兄弟,你的回复太彪悍了
回复 支持 反对

使用道具 举报

匿名
发表于 2018-12-1 22:09 | 显示全部楼层 来自:江苏
提示: 作者被禁止或删除 内容自动屏蔽
回复 支持 反对

使用道具 举报

该用户从未签到

 楼主| 发表于 2018-12-1 22:13 来自手机WAP | 显示全部楼层 来自:安徽
**** 作者被禁止或删除 内容自动屏蔽 ****
) [. }' i( ^+ o8 Q( _- p
具体怎么增。有劳你说说?
回复 支持 反对

使用道具 举报

该用户从未签到

 楼主| 发表于 2018-12-1 22:14 来自手机WAP | 显示全部楼层 来自:安徽
**** 作者被禁止或删除 内容自动屏蔽 ****

; `& A! m) e" E% M1 ]7 _9 Z5 f你也是这家装修的?
回复 支持 反对

使用道具 举报

匿名
发表于 2018-12-2 11:43 | 显示全部楼层 来自:江苏
提示: 作者被禁止或删除 内容自动屏蔽
回复 支持 反对

使用道具 举报

匿名
发表于 2018-12-3 16:56 | 显示全部楼层 来自:江苏
提示: 作者被禁止或删除 内容自动屏蔽
回复 支持 反对

使用道具 举报

您需要登录后才可以回帖 登录 | 注册

本版积分规则

手机版|无图版|站务联系 | 商务合作 | 平台公约

信息产业部备案:苏ICP备05014191号-1 经营性ICP许可证:苏B2-20110445 苏公网安备 32060202000307号 © 2001-2019 0513.org All Right Reserved.

投诉争议 技术支持:第一互联 GMT+8, 2025-12-16 15:05 , Processed in 0.203449 second(s), 25 queries , MemCache On. 站点统计

快速回复 返回顶部 返回列表