- 阅读权限
- 50
- 精华
- 最后登录
- 1970-1-1
- 在线时间
- 小时
- 主题
- 好友
- 相册
- 分享
- 日志
- 记录
- UID
- 214707
- 帖子
- 0
TA的每日心情 | 开心 2015-8-10 16:17 |
|---|
签到天数: 3 天 [LV.2]偶尔看看I
|

楼主 |
发表于 2018-11-25 23:24
|
显示全部楼层
来自:江苏
【装修进度】2018.11.24 星期六9 X3 k3 Q/ ^8 m+ y5 y2 D- F
装修一个月,感觉没有多少进展,于是我和周经理进行了交涉,希望能抓紧进度,赶在天寒之前可以进行贴砖作业。于是乎,水电作业三天就结束了。。。这速度就惊人了。
3 ] v. n7 m j- B. @" V
周六下午,装修公司安排了两个帅小伙来给我进行水电验收啦!' }5 r8 `$ Y/ u4 H
开出了四个问题点:* y' H! Z6 ?' e7 M) X5 v: S
(1)弱电箱没有分类标签, u5 a$ @) H6 K Z% R: q
$ D9 g, @, c! E) B1 W1 k1 h/ J (2)次卧的电线借用了中央空调的布线,应该自己独立布线
# B2 \' O5 \. X% W# F" R
, y- ~2 r. R& z0 ^: L
(3)有三个大功率电器没有独立安排16A的插座* ^8 M1 E4 e. t$ f2 j/ Y
(4)有一根线管没有用卡扣固定
4 S, B+ h' u3 S( w! [ (5)水压测试发现有一个堵头有点漏水
: p6 r( R+ z6 t* q4 [6 t
/ x: O- h+ p+ _! r" s: e7 N
2 n0 e. Z } j5 k4 B3 s5 t( I' S5 ?8 }' d B6 w6 g: m
以上,监理都要求做了整改。因为堵头有漏水现象,我不放心,又给我重新安排了一次测试,结果是没有问题的,毕竟盛典水电这部分是包的,可以放心。+ A( M8 h: Q6 M5 ?5 e6 r
" k& j) x% y+ d$ t1 w
4 G6 X7 f! T6 } \" Z5 y 另外我自己也发现了一些个小问题。% s/ o: f4 y3 ]0 G3 w4 m
(1)线头处理,有的很规范,有的就疏忽了,这个我倒觉得问题也不大
- g7 d' b/ J2 ?8 E! k7 z; H+ M
9 y. N) U9 ]( [$ p7 X* y8 b
1 z, r! ]5 y; J1 N6 ^( X6 t! E' b5 K: H
' } y% K7 H5 V/ _/ C# c
(2)接地线,据说是小区原本有的,但是就不能给我换一换吗,看着就感觉不灵啊1 \. t, Q( U6 g
" ]- c7 |* H6 y- m9 D/ a3 k(3)监理说这个是规范操作,插座和水管靠这么近真的没问题吗?
% `$ Y) H# k1 J, p& j
9 r5 w. h7 d, U& s' b5 W+ q9 a
(4)关于砖的品质,这也是我最不放心的地方。反复问了专修公司,说是没有问题。
( M; M/ I. ~) K. e% {( K但是我总感觉凡是产品就应该有品质标准,这么多裂痕以及烧过火的砖真的能合格吗?
7 R* d) o0 k+ w# @5 X会不会以后墙体出现裂缝呢?: N% K5 w) H' x! ]; E9 C, O2 b+ ?; l
3 b% W. U" Z( [5 X- R
$ p; i* s% A O) N( Q
; B0 w: V( r( Q
以上几条,还望哪位大神帮忙指点一二,助我答疑解惑(尤其是砖)。& U5 R- E: D9 |; D+ d( G' j4 G0 p5 {
小女子特备冬日温暖牌围脖一条,送给答疑最靠谱的坛友。 e b, `+ p( B2 M
好人温暖一冬
8 ~8 t5 P7 L. L9 ^( ]0 A
5 F. t& A. F* u
/ M: a6 G1 S% h6 J& X, j( J# \
# J+ {2 q* F# Q( a( a' m% j, U# j) ]
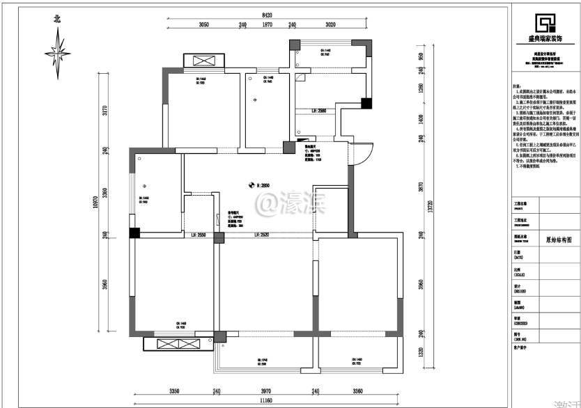
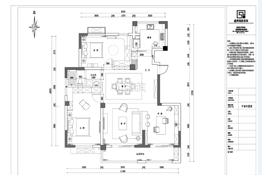
明天计划写采购主材,先附上我家的效果图。' f5 }( t# n3 Y$ T
' A2 W# D' ]0 `% j( i0 } |
7 s, h& H3 u4 o
. E' @3 T; W1 P8 |! e, a
|
-
-
|