- 阅读权限
- 200
- 精华
- 最后登录
- 1970-1-1
- 在线时间
- 小时
- 主题
- 好友
- 相册
- 分享
- 日志
- 记录
- UID
- 924808
- 帖子
- 0
该用户从未签到
|

楼主 |
发表于 2018-11-21 14:37
|
显示全部楼层
来自:江苏
* a/ p0 k% N4 m" q2 Z: y' S+ t8 p6 O8 [; p: ?% |% j, w( @" I
本期看点
9 \* ?! ]4 Z2 }, z
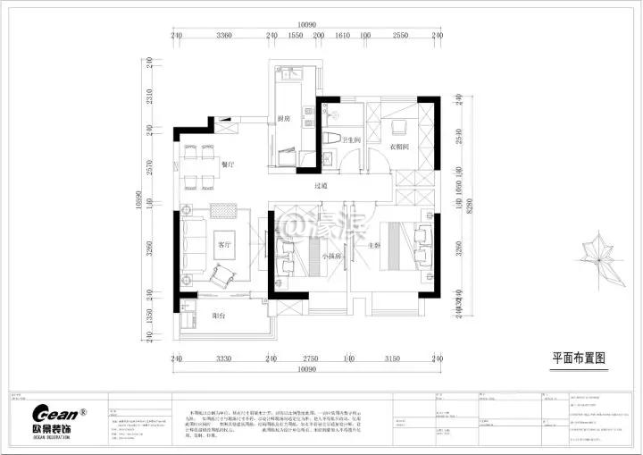
- L' {/ _) g# b* p欧景装饰 - 中海碧林湾
4 N4 D. t7 I* S6 K! C: T面积:125平米* X$ \0 W* o R1 t1 i' S) S: e P
风格:简约欧式4 s1 L! S1 ]: l2 l' T8 G' l
装修阶段:水电完成9 G b3 h+ t& g- g
装修看点:
% i% H6 t' m! U6 G4 ~2 @6 g1.本户型结构方正,空间的利用率很高,改造少。$ w. [; A# Z6 x8 Q
2.地面开槽,大弧弯排管,方便穿线,弹线固定顶面管道,水管保温处理。
% w2 e+ h) }: Q" f6 H9 `3.3D放样,将家具喷刷在墙地面,直观的看清布局。8 F/ Y- A d5 K* t- W u# c
4.简约、质朴的设计风格是众多人群所喜爱的,简单、自然的生活空间能让人身心舒畅,宁静和安逸。& H, f! h# |* ], D
$ |. k2 i3 B# `7 y* W3 f
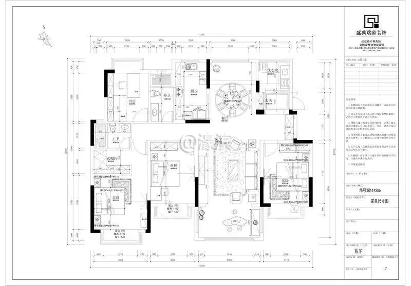
# w- [6 r2 `" H6 Y3 ~. u/ w1 \8 e盛典瑞家装饰 - 华强城2 D# O9 d0 A# k7 _$ H* h! ]% F5 J
面积:158平
# \+ t. \9 @' ^风格:美式$ H$ j, X" M: O" y
装修阶段:木瓦工完工
- i: H7 t; Q x. H7 y装修看点:4 N. a8 X* s7 w- k, g" x
1、瓦工墙压地工艺,防止渗漏、视觉美观;
% c. R% m, W) y2、规范开孔、内丝弯出墙;
- i% _" L5 s5 M7 ^9 h+ Z3、木工“7”型工艺,防止拐角处开裂;
+ o5 h- S5 B5 o$ W6 D/ Z3 u4、木工弹线精细直观,最大程度减少施工图和现场误差造成的损失。
( m0 K- t' ?9 l9 T6 \
- ~0 Y0 `* e; n4 b8 D _( m) K* W
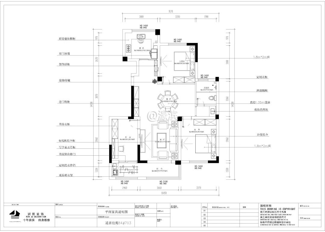
( d# @; I9 [: b) W5 F! N 润居装饰 - 通富佳园
) I; `; y A5 f$ t$ D4 P面积:120平米
7 @, H, _; p& _风格:现代简约
- f6 |7 t. Z1 t装修阶段:即将完工
2 ^, ^0 T$ x, O- k装修看点:7 { M5 X7 ^ L8 o5 \* M
1.该房型结构比较零散,重新规划后房型更加大气;
9 ], E! e# [& g. u7 O2.现代简约风格,色系保持温馨,室内添加全屋定制,增加了收纳功能;
% J+ e1 _, d& [/ v8 t, r3.书房的整体设计让小朋友学习更加舒服。1 H7 [: f3 P5 [* o
- [, ^& q* e8 c# t! m7 }: X ; H8 A, ~8 u/ o& V2 [
|
|