濠滨论坛

点击扫描二维码

查看: 4135|回复: 0

好来居♦2018工地日记♦吴军『绿地新都会』120㎡(开工大吉)

[复制链接]

该用户从未签到

发表于 2018-11-16 14:20 | 显示全部楼层 |阅读模式 来自:江苏
1.jpg 【楼盘名称】:绿地新都会
0 O7 L5 w  i1 A! V【建筑面积】:120㎡ 3 k) f. N8 _3 X5 G
【装修方式】:半包 3 n: r% C4 Y) b/ _4 }
【设计风格】:现代风格
+ H; g5 S% q/ r2 j【设计师】:吴军! o4 @! h4 c, t; w3 H
【项目经理】:康明. N4 H& W$ i9 m9 d
【开工日期】:2018年11月13日 9 S2 J7 k# N. D! g
【施工单位】:好来居装饰红宝石国际设计中心% H1 T- B9 F, `  C- R! E/ Q
2.jpg / G: q1 S  F0 ~/ D% X; V6 y
3.jpg ) z1 [) f  k5 L6 |" F
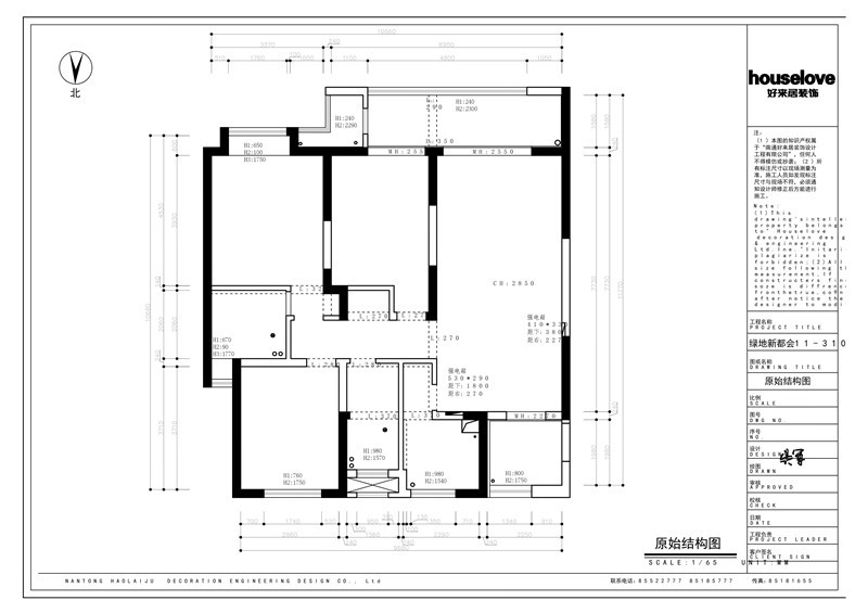
原始结构图:* z# y9 |# s7 A9 w% J8 F
4.jpg - k' M! O4 P& D' o3 p
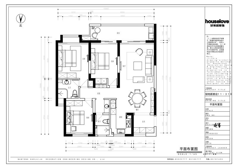
平面布置图:
3 L( }$ q, N, B) t 5.jpg
6 m3 x4 g( j& Q( ]* D7 Y; a8 l4 D1 j
南通0
您需要登录后才可以回帖 登录 | 注册

本版积分规则

手机版|无图版|站务联系 | 商务合作 | 平台公约

信息产业部备案:苏ICP备05014191号-1 经营性ICP许可证:苏B2-20110445 苏公网安备 32060202000307号 © 2001-2019 0513.org All Right Reserved.

投诉争议 技术支持:第一互联 GMT+8, 2025-12-26 00:37 , Processed in 0.168701 second(s), 13 queries , MemCache On. 站点统计

快速回复 返回顶部 返回列表