濠滨论坛

点击扫描二维码

查看: 6656|回复: 0

南通-幸福怡居 美式

[复制链接]

该用户从未签到

发表于 2018-11-14 12:00 | 显示全部楼层 |阅读模式 来自:江苏
微信图片_20181114111120.jpg
Feeling of home家的感觉
阳光轻嬉着微风,掀开窗帘的一角
一家人相伴围坐,聊着生活点滴
袅袅茶烟升起,冲淡了时间,稀释了疲惫
夕阳透过窗帘,给房间镀上了金边
......
家的感觉,便是这样。
◎内容来源:筑鹿空间设计

: E/ L: S, m1 P+ _2 I' p; X+ ]
微信图片_20181114111143.jpg
【项目地址】:南通·幸福怡居
【户型面积】:145㎡
【合计造价】:35万
【户型风格】:美式
【硬装设计】:筑鹿空间设计   周立波
【软装设计】:L&B软装中心   王    晔
【空间拍摄】:杨   森

! ]8 w# K; ?7 s  f9 l; W) y) N
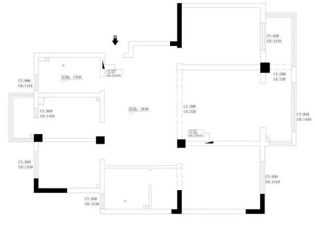
微信图片_20181114111149.jpg
平面布置图▲
微信图片_20181114111157.jpg

( V" }# g& [- g- W+ g9 c8 z% ?1 o
平面布置图▲
6 \5 }- Q# o: j
设计理念:
    业主特别喜欢旅行,她希望自己的家是世界上最舒适最放松的地方,足以卸去外界的疲惫。偏爱美式风格的简约温馨,喜欢舒阔的空间,对于空间规划崇尚开放自由,所以设计师采用全敞开式的餐厅,尽量减少室内空间的分隔,来减少压迫感。以大地色为基础色调,搭配白色的整体木作,让空间看起来更轻松!
/ _9 R1 _; ~/ L2 c" [! T3 Y  V
微信图片_20181114111209.png
- living room-
客厅
1 {6 s% O# R1 \8 w" j
微信图片_20181114111216.jpg
一进门就能感受到浓浓的美式风情,自在,随意的生活方式,没有太多造作的修饰与约束,不经意之中也成就了另外一种休闲式的浪漫。
微信图片_20181114111223.jpg
整体色调比较稳重,采用实木色的家具作为基地色,但是大胆的明黄色花瓶点缀,浅色的软装家具中和了沉重感,多种元素的融合使客厅丰富了起来。
微信图片_20181114111230.jpg
一书一世界,一草一天堂。宁静悠然的氛围,一切都那么的淡雅。
- j  L; m+ w7 r& Z$ D
微信图片_20181114111242.jpg
微信图片_20181114111235.jpg
5 y2 B" x2 s  [. l  t

; ]" G; u  [4 e+ G9 V" s4 O
- restaurant -
餐厅
微信图片_20181114111301.jpg

0 l; c9 v1 b: Z$ v
餐厅与客厅选择了同一色调的家具,虽然没有做区域划分,但不显得突兀。
微信图片_20181114111307.jpg
微信图片_20181114111314.jpg
实木的餐桌椅增加了生活的质感,角落里的餐柜同时满足了美观与收纳
8 N' A$ r! D9 Q  T
微信图片_20181114111321.jpg

, g! ]$ e  r; Q5 f& i7 O1 D( v. b: m! e
- bedroom -
卧室
微信图片_20181114111342.jpg
4 c, s( K; N+ w
干净利落的卧室,抽象面具的摆件。午后,望着窗外的风景,坐在椅子上,看上一本书,静静地感悟人生。

1 T+ M, ?0 F0 U8 e, _: }
$ P7 v1 H2 H+ G4 Q9 v
微信图片_20181114111348.jpg
微信图片_20181114111355.jpg

; j* |' E2 b( C0 W* R" K* a
- bathroom -
卫生间

% w& J+ i7 d. C" |) V
微信图片_20181114111413.jpg
洗漱台的台面用料选择的是大理石,整体打理方便,浴池特地留出余地,供洗漱时的休闲娱乐使用。
0 f0 a# L# B, l% t# n2 g% h
|每一次倾心打造,只为不凡的你|
- }9 x1 Z+ [# R* l4 G9 D( J  D
-END-

. ?' x7 ~- F1 I# Z2 f* i0 Q" H+ J! c  \* H1 }" Z
南通0
您需要登录后才可以回帖 登录 | 注册

本版积分规则

手机版|无图版|站务联系 | 商务合作 | 平台公约

信息产业部备案:苏ICP备05014191号-1 经营性ICP许可证:苏B2-20110445 苏公网安备 32060202000307号 © 2001-2019 0513.org All Right Reserved.

投诉争议 技术支持:第一互联 GMT+8, 2025-12-26 09:24 , Processed in 1.131316 second(s), 15 queries , MemCache On. 站点统计

快速回复 返回顶部 返回列表