濠滨论坛

点击扫描二维码

查看: 4196|回复: 0

好来居♦2018工地日记♦王雷『华强城』145㎡(开工大吉)

[复制链接]

该用户从未签到

发表于 2018-11-6 10:14 | 显示全部楼层 |阅读模式 来自:江苏
+ o$ }5 N& G$ G' e! J
1.jpg ; @# I2 M1 S' Q0 C
【楼盘名称】:华强城* a$ ?; c) s0 T! C$ t
【建筑面积】:145㎡ 0 j0 u, \0 m4 f% r  ^2 s
【装修方式】:半包
8 x6 L5 T( [5 U3 P1 F( Z【设计风格】:现代风格
8 Y: Y4 K% U% F. x6 K【设计师】:王雷
/ v( E- l% b' N  O【项目经理】:夏海军
. C% O, `  ]$ x2 J3 X【开工日期】:2018年11月5日 . J! O& {/ Y+ e4 B; x9 y" n
【施工单位】:好来居装饰红宝石国际设计中心
/ H* \4 t' f7 S' B' Y 2.jpg
- i% f: z2 u: y& U! q 3.jpg # a  H) G# I, x0 K: m5 Q6 c
原始结构图:* B0 x1 b" o1 X/ d# K: ~
4.jpg $ y, x7 ^2 F# P, `$ T, l7 W* m
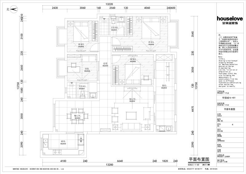
平面布置图:
# c/ C0 k3 ~; S 5.jpg 1 I$ ^0 `/ r: O) W
南通0
您需要登录后才可以回帖 登录 | 注册

本版积分规则

手机版|无图版|站务联系 | 商务合作 | 平台公约

信息产业部备案:苏ICP备05014191号-1 经营性ICP许可证:苏B2-20110445 苏公网安备 32060202000307号 © 2001-2019 0513.org All Right Reserved.

投诉争议 技术支持:第一互联 GMT+8, 2025-12-26 02:17 , Processed in 0.173784 second(s), 13 queries , MemCache On. 站点统计

快速回复 返回顶部 返回列表