濠滨论坛

点击扫描二维码

查看: 246647|回复: 70

NO.71【2018年濠滨装修日记大赛】+【南辰濠郡】+【现代风】+【印象水仙】

[复制链接]

该用户从未签到

发表于 2018-10-24 09:44 | 显示全部楼层 |阅读模式 来自:江苏
6 P6 M& g( Q0 V- _+ f* b1 `. P+ \) p3 V% f
" q' v8 J; p* G4 j
/ K3 |8 G. f9 @, w/ Y6 T
基本信息栏:
: Q: P# u5 W& E1 G* Y; z
; q# V# L  u5 k. |1 `2 G房型:三室二厅一卫. B# f) X- W! M* Z+ A( U' D
建筑面积:108㎡
' m7 K/ e. a4 f2 c/ g2 z8 _% {: c' ^装修总预算:20万左右, c# n. H# {6 z" ?! N
包工方式:半包( S& H8 {% i0 U* D0 V$ X, _* G
装潢公司:印象水仙室内设计
; S: t% r7 \) |. ^6 ?/ d- y# q9 q: C  u设计师:方工
8 R7 L# e' h  D5 C. R* p* ~/ N- q9 Q( R$ B% E" _. [
2 C" V) r$ ?" j( J
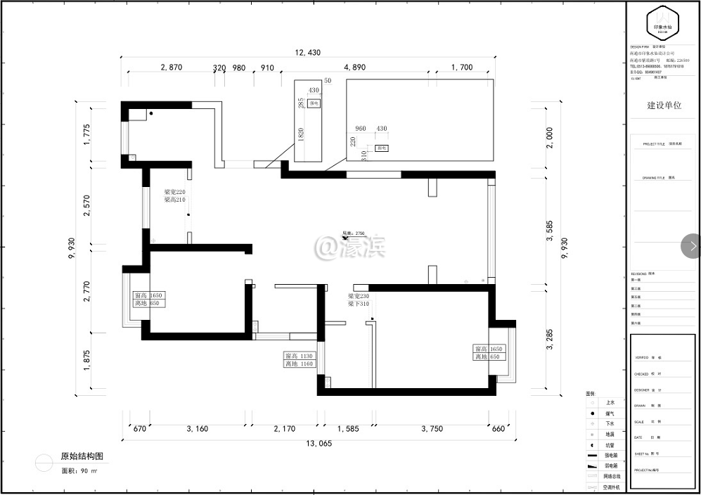
原始结构图:
5 c/ h; s4 M% o8 H4 Z6 A; A5 y

: \0 ~4 W, W5 B! m0 n% d 01.png 5 m& m2 o* K" n/ c

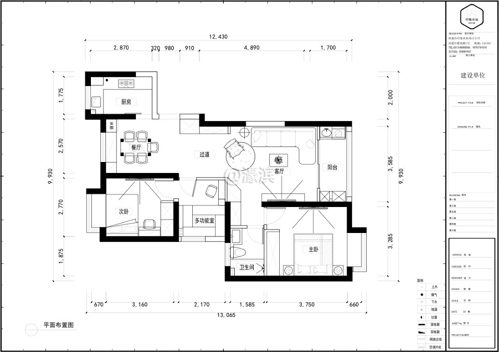
( F' T7 ^" C. A  b6 n9 _  e平面布置图:
' U. x: H$ w' J- w" k8 k6 N6 ]8 C$ L9 ~4 l9 a& C" a
02.png
5 R0 Y5 |/ v- f( `  g+ h, ~4 k% S: H' [2 b9 w
大家好,我之前一直潜水看大家更新的装修帖子,学到了不少经验,虽然比不上专业的,但起码在找装饰公司的道路上,我想我没有走弯路。从今天开始,我有时间就来更新更新家里的装修进度,这样一来最大的好处就是大家跟我一起监督。我跟我老公平时不在南通市区这边,目前是在通州那边,工作也比较忙,工地上的事情,我想把后期的进度写出来,大家一起帮忙监工喽。
: O9 P1 U; x7 z1 ?0 W! E' A1 n/ k3 p# E1 o4 h5 h6 q3 |
% g9 V4 l  A7 y# O5 J* r0 c
南通0

该用户从未签到

 楼主| 发表于 2018-10-24 09:49 | 显示全部楼层 来自:江苏
关于装修公司一说,我们家定的是印象水仙设计,说来还挺有缘的,我是朋友介绍过去的,后来跟接待的进进和设计师方工聊天过程中都特别的投缘,他们人都特别的亲切,让我第一感觉特别好。后来慢慢了解,把我跟我老公特别纠结风格一说给敲定了,想想以前上网搜的一大堆图片全部是徒劳,看了他们公司设计完工案例才有了心动的感觉。这才有了接下来的合作。
; o0 P% [" J! q9 p$ Q
! Z$ g+ D! H- P& w( ^4 d  g写的不专业,大家凑合凑合看看吧,希望得到大家的支持。我后期有时间自己拍照片,设计师或者项目经理给我发照片,会慢慢更新出来的。目前家里在做水电。  W5 ^3 _( V+ ^" W# s& Y% e

+ X1 E: T% D$ M9 m" I
" W* z0 Q1 Y- V2 V. v 04.jpg
9 y  z0 R* Q1 a- p6 {8 `: U
3 l' }$ h) @* }7 ]  [+ i0 {+ v 03.jpg ' y) a. G. i! B) h2 X! N, h; N( ?
回复 支持 1 反对 0

使用道具 举报

匿名
发表于 2018-10-24 13:26 | 显示全部楼层 来自:江苏
提示: 作者被禁止或删除 内容自动屏蔽
回复 支持 反对

使用道具 举报

匿名
发表于 2018-10-24 17:01 | 显示全部楼层 来自:江苏
提示: 作者被禁止或删除 内容自动屏蔽
回复 支持 反对

使用道具 举报

匿名
发表于 2018-10-25 15:16 | 显示全部楼层 来自:江苏
提示: 作者被禁止或删除 内容自动屏蔽
回复 支持 1 反对 0

使用道具 举报

该用户从未签到

 楼主| 发表于 2018-10-26 13:49 来自手机WAP | 显示全部楼层 来自:江苏
smileflyliu 发表于 2018-10-25 15:167 `; n: a& e; k' y8 E
房子称重墙还蛮多的,还要拆吗

' J8 @  s& \4 C$ B9 W- c. k0 S承重墙不能拆掉的
回复 支持 反对

使用道具 举报

该用户从未签到

 楼主| 发表于 2018-10-26 13:50 来自手机WAP | 显示全部楼层 来自:江苏
拆墙中!
( y; [1 g$ C. N  K% _6 X& b& o' ?! C
保护做的不错。
( {" x* G/ Y6 l7 s, U/ x; N8 b. F% a# a3 j
20181026134942
20181026134947
20181026134953
20181026134958
20181026135002
回复 支持 反对

使用道具 举报

该用户从未签到

 楼主| 发表于 2018-10-27 11:00 来自手机WAP | 显示全部楼层 来自:江苏
墙固地固刷好,在做水电。
20181027105925
20181027105933
20181027105943
20181027105950
回复 支持 1 反对 0

使用道具 举报

匿名
发表于 2018-10-27 16:51 | 显示全部楼层 来自:江苏
提示: 作者被禁止或删除 内容自动屏蔽
回复 支持 反对

使用道具 举报

匿名
发表于 2018-10-27 16:54 | 显示全部楼层 来自:江苏
提示: 作者被禁止或删除 内容自动屏蔽
回复 支持 3 反对 0

使用道具 举报

匿名
发表于 2018-10-30 15:49 | 显示全部楼层 来自:江苏
提示: 作者被禁止或删除 内容自动屏蔽
回复 支持 反对

使用道具 举报

该用户从未签到

发表于 2018-11-1 22:27 来自手机WAP | 显示全部楼层 来自:江苏
你们家设计费怎么收的
回复 支持 1 反对 0

使用道具 举报

该用户从未签到

发表于 2018-11-2 11:32 | 显示全部楼层 来自:江苏
       工地做到这样很难得了
回复 支持 1 反对 0

使用道具 举报

该用户从未签到

 楼主| 发表于 2018-11-4 15:25 来自手机WAP | 显示全部楼层 来自:江苏
淘遍通城 发表于 2018-11-2 11:32
8 r$ t; `( Q$ ~9 C6 G# H- j工地做到这样很难得了

, J4 [" ]) C4 p; {( y- {真的啊,心里舒坦了
回复 支持 反对

使用道具 举报

该用户从未签到

 楼主| 发表于 2018-11-4 15:25 来自手机WAP | 显示全部楼层 来自:江苏
houlong 发表于 2018-11-1 22:27, r  [' i; T5 [3 {  U4 Z
你们家设计费怎么收的
0 V, `: s- J. R/ l* P0 ]6 u
我们家设计费6000元
回复 支持 1 反对 0

使用道具 举报

该用户从未签到

 楼主| 发表于 2018-11-4 15:26 来自手机WAP | 显示全部楼层 来自:江苏
qqq28 发表于 2018-10-27 16:54
9 |! ~, m& B0 M( ]" v1 `/ I5 u你们家是半包还是全包的?工地看着不错
# ~, L7 W5 G7 U) V
肯定选半包的啊
回复 支持 1 反对 0

使用道具 举报

该用户从未签到

发表于 2018-11-5 15:42 来自手机WAP | 显示全部楼层 来自:江苏
恭喜 楼主多分享
回复 支持 反对

使用道具 举报

该用户从未签到

发表于 2018-11-6 21:26 来自手机WAP | 显示全部楼层 来自:江苏
工地看着很舒服
回复 支持 反对

使用道具 举报

该用户从未签到

发表于 2018-11-8 08:31 来自手机WAP | 显示全部楼层 来自:江苏
达洛克 发表于 2018-10-24 09:49
/ Q- s& ~# }% H* G0 h2 t关于装修公司一说,我们家定的是印象水仙设计,说来还挺有缘的,我是朋友介绍过去的,后来跟接待的进进和设 ...

) D! B; R- F" Y  o6 ^开工仪式超隆重,哈哈
回复 支持 反对

使用道具 举报

该用户从未签到

发表于 2018-11-8 14:11 | 显示全部楼层 来自:江苏
18661146818 发表于 2018-11-8 08:31
+ L) h7 _; z0 N+ ]7 W( A0 R$ m开工仪式超隆重,哈哈

: O: l2 V5 V, ]+ k/ K开工就是要热闹点,喜气的日子
+ h2 Z7 E7 W* Q* d: `
回复 支持 反对

使用道具 举报

匿名
发表于 2018-11-9 10:07 来自手机WAP | 显示全部楼层 来自:江苏
提示: 作者被禁止或删除 内容自动屏蔽
回复 支持 1 反对 0

使用道具 举报

该用户从未签到

 楼主| 发表于 2018-11-10 10:20 来自手机WAP | 显示全部楼层 来自:江苏
疯狂的汽车 发表于 2018-11-9 10:07, W9 M& v1 u: J! ~( Y
这是怎么计算设计费的啊?感觉比外面公司的价格贵一点。外面好多免费设计呢!

7 g% D! Z# y7 }* l: {/ n8 P0 |按量房后的外墙面积计算的。我们家量房下来90平,不足100平,按照100平计算,60元一平;一共6000元。跟朋友家设计对比起来,这个钱我感觉花的挺值的!
回复 支持 反对

使用道具 举报

该用户从未签到

 楼主| 发表于 2018-11-10 10:22 来自手机WAP | 显示全部楼层 来自:江苏
到了封阳台,时间紧迫,他们公司销售跑工地也挺勤快,及时发动态给我看,!
20181110102050
20181110102055
20181110102127
回复 支持 反对

使用道具 举报

该用户从未签到

发表于 2018-11-12 11:29 来自手机WAP | 显示全部楼层 来自:江苏
达洛克 发表于 2018-10-27 11:00' Q7 Z, O6 E! w2 U( A+ v: M
墙固地固刷好,在做水电。

- {2 {7 m/ a4 |  ~% e0 @楼层不错
回复 支持 反对

使用道具 举报

您需要登录后才可以回帖 登录 | 注册

本版积分规则

手机版|无图版|站务联系 | 商务合作 | 平台公约

信息产业部备案:苏ICP备05014191号-1 经营性ICP许可证:苏B2-20110445 苏公网安备 32060202000307号 © 2001-2019 0513.org All Right Reserved.

投诉争议 技术支持:第一互联 GMT+8, 2025-12-16 21:39 , Processed in 0.953578 second(s), 16 queries , MemCache On. 站点统计

快速回复 返回顶部 返回列表