- 阅读权限
- 20
- 精华
- 最后登录
- 1970-1-1
- 在线时间
- 小时
- 主题
- 好友
- 相册
- 分享
- 日志
- 记录
- UID
- 908278
- 帖子
- 0
该用户从未签到
|
! p" R/ V" ~0 Z2 \$ ^8 v9 |& J- j" T- T: J0 n* B* g* ]
基本信息栏:+ ~8 M& G+ a4 _7 i* Y
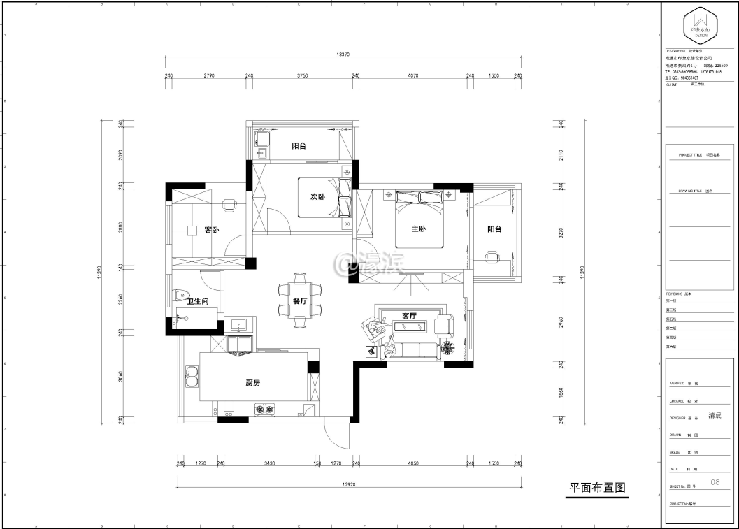
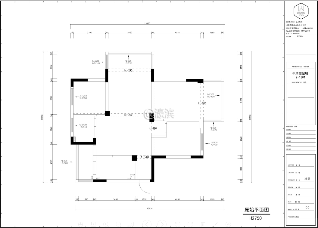
1 t7 W( S! \# [" T& g房型:三室两厅一卫7 }/ A+ @# \: a! t- d
建筑面积:110㎡
& l2 t% Z U$ M/ l, R装修预算:25万
8 `4 s6 P* F+ R' q5 r5 S- C包工方式:半包' U) G, e, a- {- S7 i9 }6 H
装潢公司:印象水仙室内设计
9 Q( \8 A l. j' t设计师:陈晨1 N; ~/ I% L2 z D3 }
开工日期:2018年10月17日4 N, a) }/ b" R
楼盘地址:中港翡翠城! y5 N% m' h, k% {- e) m
4 \9 y) Y4 ~2 F很幸运的我们前几年就把房子买了,刚开始买的时候房价还没有怎么的贵,现在房价真的是越来越贵了 。当时房子买好了之后也就简单的装修了一下,这几年手头上比较宽松了,就想着把房子好好的再装修下。) G$ _- s4 o ~; S. a
4 V4 R# V" L* ^# i: h& X, x0 u) z
房子要大搞装修,首先最累的是东西的收拾,每周休息都报到,真的是身心疲累呀,终于收拾好东西后就开始选装修公司了。每天逛论坛取经,周末跑建材市场....................(此处省去120个字)做了几个月的准备工作,终于确定了。
5 D/ ?' e3 z4 j
* R' n( t2 D% g0 t# l8 X5 H& ^, G8 ^10月17日,特地看了黄历挑了一个好日子家里开工了,还是很开心的。
J8 U8 M0 [, m
+ l0 d" D/ d( K1 d+ D+ p. G) \
* N- i0 H, F2 d9 l5 j: k
! O1 Y6 F! E5 @; Y; [* L# h8 w
- S, h# c7 ~: t, k7 J
) s* ~, ~) \3 \) q+ G* ?7 o: e; O" U
直达电梯:
' ?" {2 w. e2 y' ^ W1. 原始图和平面图
. n2 [1 T0 y1 C& m( T% M4 b0 s2. 拆墙
, d% x$ W; I! P- @
. C4 i1 k3 _' u7 o5 T, u
( J+ B R+ \+ L9 F9 X# b南通0 |
|