濠滨论坛

点击扫描二维码

查看: 4492|回复: 0

木色高端定制(上)-混搭风

[复制链接]

该用户从未签到

发表于 2018-10-15 10:24 | 显示全部楼层 |阅读模式 来自:江苏
* S- Z+ ?7 ^7 \+ C) I

7 I, Q$ y" Q. F0 w% L) T
微信图片_20181012134150.jpg

7 I" I) A9 P5 ?" B( V7 i2 q/ H
微信图片_20181012103737.jpg
) i7 n8 O) ?. @& _! Y/ p2 U5 m
“所有的创意早在数百年前就已被讨论过数次,更重要的是时代性,当下的时空才是创意思维真正的载体。因而当今的创新不在于概念上的原创,更重要的是多元整合。”

5 d; j$ [! C+ q; r
                                        ——邵唯晏
3 T0 _& g1 Z. Q% N/ t8 P2 V
172248173472518599.jpg
【项目地址】:南通·木色高端定制

6 s. I* G; c" W2 p
【户型面积】:690㎡
. y2 O: C" m9 F9 `! ~/ s$ f- w
【合计造价】:240万

7 t$ S2 P* f9 k+ x& O0 B6 \- h
【户型风格】:混搭

; x% `! z! R2 C+ W5 b- g
【设计主创】:筑鹿空间设计   匡立体

; }9 K% C! Z8 f% ^" ]" y
【软装设计】:L&B软装中心   刘一漫

2 p; Y5 D9 M8 K3 }
【空间拍摄】:杨   森
4 S! V& ~6 v* A0 z; \* D) _
微信图片_20181012103800.jpg
7 }3 v' k) Z( v! j( v2 c) `% E5 d
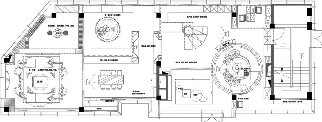
平面布置图▲

% }1 ~: m: Y3 u' w$ g
设计理念:
     本套案例位于左岸意库园区内,和业主并非第一次合作,【木色】是一个现代简约风格的全屋定制橱柜品牌。我们根据业主的需求,以更好的突出产品和对于空间利用的最大化呈现更多的产品为主。设计理念秉承的是简约而不简单,沉稳而不失独特的味道,整个空间利用灯光线条和结合高科技的效果来突出橱柜的工艺之精湛,营造出一个时尚高品质空间,激起客户的购买欲望,达到销售目的。

8 |' w! {" Z2 a! ~( S* c! d
- Space one-
空间一

' z  N  h' I3 p+ D

# h) {/ `1 |; V: t+ n8 `
神秘的深黑搭配素雅的高级灰,带来庄重且强烈的仪式感。从商业角度考虑,门口运用大面积的落地窗敞开,又有迎八方客的寓意。
# z0 W" V: A! @1 G! _: {
微信图片_20181012103822.jpg
* B% K$ ]8 A0 C6 \
封闭墙体的南向精心布置了一个开口,唯一一个俯瞰外界的窗口,让阳光在沙龙区来一场美丽的邂逅。阳光的变化是极其丰富的造型语言,朝夕变化、四季更迭,在沙龙区谈古论今话英雄、说天地,感受风起云涌、星空变化。无论外界如何喧嚣,进入这里“偏安”一隅,就宛如置身全新世界。
  e: i& l* l) U& g% \
微信图片_20181012103827.jpg

3 N, a$ y( a) F, a& O  R( p5 P+ k
微信图片_20181012103831.jpg

$ W7 C& t4 h" w6 M- T$ V
微信图片_20181012103835.jpg
& u( L# U7 ]+ S* \2 t8 `9 d) x: V

' ~, U( C3 H  }, W$ }. D; f* ?
; x( d0 x. K2 T* Y! M4 _4 r3 X

: o% a! r7 r& d4 @. l

/ M. x* Q3 D  W: _

, k  x# W/ Q) _" A; \
6 ^7 ?6 Z- N! S& `
- Space two -
) V; K/ ]( N) K; ^
空间二

0 o) A2 v' U- s0 b
微信图片_20181012103933.jpg
4 E! _! w" O& f" s8 h; k% {
     此空间原来较低,空间比较压抑。设计师订制了优化方案,跳空楼层,制造出入口初极狭,而后豁然开朗的空间层次。这种局部促动、空间极度压缩后又突然释放的手法,层层递进,颇有古人‘犹抱琵琶半遮面’的美感。

2 T* c4 S' H8 x- e* q
微信图片_20181012103938.jpg

6 ?( u  H- ~1 p4 F0 \
陈设架从楼顶延伸下来,丰富了空间的视觉体验,也勾起来者对空间的无限猜想。同时,暖色系打破黑白灰的素净,拉近人与空间的距离。陈设架上摆放着整齐的红酒杯,无形中传达当下人的生活态度,展现优雅的生活形态。

  a, k2 n" U7 J5 W8 t

; o9 @; U8 ^$ r' _" v1 B% f+ T
微信图片_20181012103948.jpg
9 T, Y- B& M6 B. Z1 ~
微信图片_20181012103938.jpg
* `( P5 D; s$ |  `
开放式厨房位于吧台的左端,由吧台体块延伸翻折拉伸而成。让客户扩展了视觉深度
0 C+ [  e) u( V. O6 F' l2 f1 I& G
微信图片_20181012103955.jpg

# ]* I1 d- D1 |) Z, g- S0 n
微信图片_20181012104002.jpg

& G5 T7 H) M8 B6 g6 w, ^

+ D2 x' h: ~8 F
' }3 o+ Z$ Z4 P% Y1 W8 p4 ?
- Space three -
, q5 M7 ~5 Z! d  T+ B7 @5 X
空间三
  Q, q+ W. m) \; y, ~/ U# d
微信图片_20181012104007.jpg
& o* E6 E( b# C# Q
光是设计中的重要题材,在展厅中设计师同样不遗余力的发挥其奇妙魅力。

8 ^; k0 h, A- E. n; H, Q6 r
微信图片_20181012104011.jpg

, ?% N9 m9 s2 c( @
林开新坦言:“设计是在解决问题,不仅是解决商业行为问题,还有人的体验问题。在浮躁的市场背景下,融合西方严谨与东方气韵的生活理念植入产品中,倡导当下的人回归舒适的生活方式。” 谈及作品最成功部分,林开新莞尔一笑,“当成果交付,业主不单把作品视作商业用途,还是个人生活的重要部分,带给他们交际、体验与趣味性,足矣。”
) h8 G0 Q  b3 D! h7 ~8 V$ g

7 X9 U, Y$ y/ \$ o6 w! z
0 n% x( J4 U  \& z+ J3 Q1 p
|每一次倾心打造,只为不凡的你|

$ d* Z8 Y6 n* l

( d4 p( W  Y: n( h2 G3 E
# _5 Z7 F( C' O1 x$ m
-END-

+ d: S) @7 o0 f9 Z% K) O' t9 }& g

5 [8 n/ p- Z8 A" g
3 i2 \; `9 B- u7 s& |$ J$ D3 X% _& b! ]  ^0 l' L

5 t* ~8 ~# n" h; J1 B0 j0 }, W- z7 M" y; ]! Q. d0 R$ W6 Y

- j, B( V" X' Q南通0
微信图片_20181012103944.jpg
您需要登录后才可以回帖 登录 | 注册

本版积分规则

手机版|无图版|站务联系 | 商务合作 | 平台公约

信息产业部备案:苏ICP备05014191号-1 经营性ICP许可证:苏B2-20110445 苏公网安备 32060202000307号 © 2001-2019 0513.org All Right Reserved.

投诉争议 技术支持:第一互联 GMT+8, 2025-12-26 02:18 , Processed in 0.173048 second(s), 12 queries , MemCache On. 站点统计

快速回复 返回顶部 返回列表