濠滨论坛

点击扫描二维码

查看: 13637|回复: 7

【临江家园】在此开贴,陆续跟新户型研发,小区动态等~

[复制链接]

该用户从未签到

发表于 2018-10-13 16:02 | 显示全部楼层 |阅读模式 来自:江苏
临江家园已经拿房3个多月的时间了,也有很多业主到公司咨询,
3 b; y5 I/ O$ `4 x' Y/ G
160310js23ie1i66i6sige.jpg

  [+ L# p* L6 N, W2 y
↓为了让更多的临江家园的业主可以享受到网络时代多带来的便捷,小编在濠滨

9 X* s+ A# q8 v1 y. h
上开贴,由专门负责临江家园的楼盘主管进行不断的更新,更新的内容包括:
/ v2 X' e# {. u& ~/ j: g

1:临江家园施工进度                                                                              

2:临江家园全户型锦华研发案例(含100m2、123m2、127m2、140m2)     

3:临江家园周边生活攻略更新                                                                  

    4:关于临江家园业主可以参加的相关活动更新(如样板房参观,家装节参观等)


) R. q3 T8 ?1 o9 A1 Q

160301tw8nwepu08pnjznk.jpg

恭喜临江家园业主拿房大吉

160247rlu8xvlxozz4ijc7.jpg

8 S/ S1 a) p( ^/ i$ P; W; e

本期先来一个

临江家园127m2

每个房子都会存在一些优缺点,所以我们通过设计来将优点放大,缺点带来的问题进行合理的规避和整理。

微信图片_20181013150722.jpg

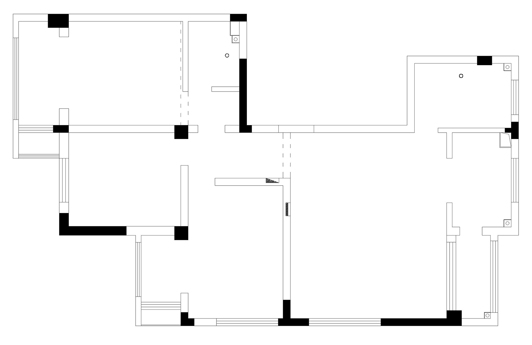
户型设计优点:户型整体还是挺规整的,面积利用率高,承重墙较少,便于后期改动

户型设计难点:餐桌的位置难放,厨房小,东边的小房间不规则。

5 h; g! w6 n( {, k. y

▼127m2户型平面方案:

微信图片_20181013150709.jpg

将厨房进行扩大,把餐桌的位置规划到厨房里面,这样客厅的空间就比较的完整。

东边的房间考虑成一个独立的书房(现在的人都想有一个的独立的书房,有个个人的空间)

阳台因为户型的原因,所以就规划到卧室里面。

3 w  \* `5 c. a9 K- U& E. ~

▼127m2户型效果图:

微信图片_20181013155431.jpg

- [0 c$ F. ?) F! h

微信图片_20181013155437.jpg


) @/ [. j+ n. N, K, i! a1 c  u) q

更多设计案例咨询临江家园楼盘主管——小丰

微信图片_20181013150717.jpg

微信扫一扫▲

小编电话:15806286711

更多临江家园的更新,敬请期待!


% F$ x7 s. {4 x7 T6 V
1 m6 D( r& U. @& ?1 a9 v


, t" d/ |0 x7 T! ^


4 }* k+ c* k+ {/ R1 n& {
+ H6 S$ ?" u# f4 [& G南通0
匿名
发表于 2018-10-14 09:29 | 显示全部楼层 来自:江苏
提示: 作者被禁止或删除 内容自动屏蔽
回复 支持 反对

使用道具 举报

该用户从未签到

发表于 2018-10-14 12:33 来自手机WAP | 显示全部楼层 来自:江苏
猴年马月的事了,现在才发帖,我家都装完了
回复 支持 反对

使用道具 举报

该用户从未签到

发表于 2018-10-14 13:58 | 显示全部楼层 来自:江苏
别插嘴 发表于 2018-10-14 12:33' X, e4 ]3 w& W/ V; z; U% m
猴年马月的事了,现在才发帖,我家都装完了
' s: @5 g. p1 ~/ m' a+ A8 \+ J
之前已经发帖服务一波了。这是第二期$ J, p5 F& A0 A7 i3 z9 a) ~
回复 支持 反对

使用道具 举报

该用户从未签到

 楼主| 发表于 2018-10-18 14:12 | 显示全部楼层 来自:江苏
**** 作者被禁止或删除 内容自动屏蔽 ****

; t$ l7 J' J' ?# U+ s有的,我们17号楼、19号楼、20号楼、14号楼都有再见工地,您可以扫我上方的二维码加我个微信,咱们约个时间带您去看看
2 ?' c3 j, D6 w( f
回复 支持 反对

使用道具 举报

该用户从未签到

 楼主| 发表于 2018-10-19 15:30 | 显示全部楼层 来自:江苏
1 i( J* {# ?2 W3 J1 P( {6 t' R( Y8 A3 \' ~& c
第二波来了▼

! G# F& p. n& g0 f9 O
临江家园140m2
+ }6 g' j7 g# W- ^' X9 P/ u" g, P! F
: N5 w9 r0 @8 H1 u7 ]9 f) v

- |  @  W) ~" |3 q
微信图片_20181019150244.jpg
' p/ V& c- M: k# L7 G

* ^) e9 Q2 p% I8 \; R
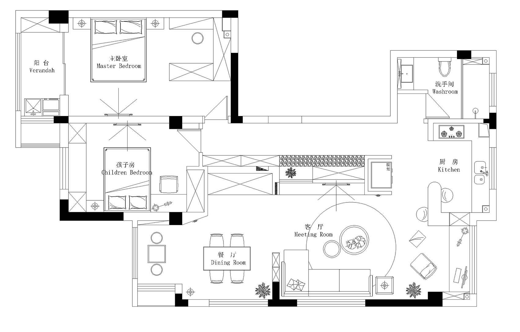
户型优缺点:整个户型的话不是那么的工整,西边的卧室小,而且不规整,客餐厅比较的中规中矩,

' q4 V7 Z9 n6 {- F# g' `: F" D
厨房不大,承重墙少,面积利用率还是挺高的。

" B  ]2 p* K7 \
( K5 V% }( u- k& g
▼140m2户型平面方案:

" a2 H5 ^8 Y7 |" h2 y* I
. I: C& {$ r  a
微信图片_20181019150234.jpg
! T& n- K% Y3 s* I/ X/ L9 p+ n, c
  `4 J. F7 ?. a7 o' t
把北边的阳台扩出去,容纳到客餐厅的空间里,西边的房间外面的空间归纳到房间里面,南边女儿房

( o( d3 f# j2 A8 _
空间扩大了,保证正常的格局,生活阳台因为户型的原因,只能放在主卧里面(临江所有户型都这样)。
' C. r( }$ c1 x+ ~7 i# B7 C

# r+ o. Q8 h5 D# k% s1 q, a, v' c7 E* U8 G% p9 _$ y. C8 L
▼客厅软装图
; W+ f9 K+ F# _, S+ {
% A* v8 ^7 F: r. @" K% `) R9 B

2 A- X# s9 R  {( n* U
微信图片_20181019150249.jpg

; |) e8 b( }# Z0 i: y8 T3 [/ N3 n6 c. y) M# p. F! x# `2 _
▼餐厅软装图
& R! B7 o3 p0 z
" t0 W4 Y+ {+ H( O% ~

4 [, z4 S: w% L3 w5 N+ d; t
微信图片_20181019150228.jpg

/ ]3 k+ I+ [/ k( p" A, E" _& D( H% M
6 o' x8 ^6 I# ]5 E6 ]
▼主卧软装图

' b, s) D" z& w, G

9 P" n3 Y/ f# M) P, J- \/ M) e

% t) D1 h) ?6 Y8 Z1 a1 |
微信图片_20181019150255.jpg
% }. h5 [' j9 k2 F% C

/ T; j# \% G( `) w
▼次卧软装图
" K3 P/ Y2 q" |

+ t7 U' J" Q7 H/ }' G

8 O) J3 d( {$ Q: x' a; H2 t
微信图片_20181019150239.jpg

3 }( Y3 W9 b* L8 [; a9 g# z3 x; l/ w5 j; E5 y2 c5 c' o# ]
本案材质以简单素色为主,客厅大面积地砖和墙面装饰背景以爵士白为主,
. h! S& u! @; E# n: Q( I+ R& u
过道吊顶及过道顶头的墙面以马赛克定做图案效果,其余墙面以浅色墙布饰面,

* M% i& _% s+ n/ O( h, n. i
后期软装(装饰画及工艺品)局部跳色,缓解整体颜色单调的缺点。
8 L- L" o* [7 V! U
7 s1 J7 n3 w" f1 E; I% }

, H2 O! ]* C: i  c$ C7 I. ], p/ b
更多设计案例咨询临江家园楼盘主管——小丰
- q% W/ Y0 o+ o8 X5 D0 }% N' h" r
微信图片_20181013150717.jpg

2 P* p! h- W, a1 K2 W2 H2 u. L; L% a$ x' C2 F' I" H3 L

微信扫一扫▲

小编电话:15806286711

更多临江家园的更新,敬请期待!


( L/ s4 \1 g) j# H% l. z/ Q- f

5 m! a, S7 J0 y+ T3 k7 d9 b5 i8 v+ M) O# s8 q% h- P

. H, X+ [2 ]: l& p8 g
4 f3 @6 |0 I+ _2 _5 W4 g" Y2 S( W: G2 r0 p1 ~1 p9 M" m! ]
回复 支持 反对

使用道具 举报

该用户从未签到

 楼主| 发表于 2018-11-1 15:19 | 显示全部楼层 来自:江苏
第三波来了▼

6 w% Z' j- @+ N# a0 V, z
5 z/ _. q; K7 }. ?. u$ u

1 u' h! F0 ?# o9 U% N) c
临江家园100m2

, O' g+ o; y1 F8 z5 c3 m# L5 F

1 K( H2 Y9 e2 R0 ]& g1 ]: o

2 J9 p' S5 o7 v+ ^5 a5 b
微信图片_20181101143808.jpg
" L! S5 [; I3 O9 j( u# L
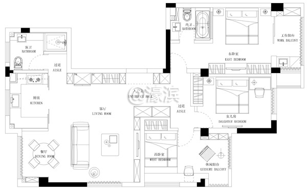
户型优缺点:厨房的空间有点小,就两个房间,主卧还是比较的规整,次卧的话就比较的局促
8 D  g" t$ C' ?) }" a& I" e
卫生间一长条型的,整个客厅的空间还是规整。

# c1 s7 F; y$ f; j
& B7 h7 B  U1 u# e
▼100m2户型平面方案

9 ~6 ~! ~1 e/ o; I' L& W- G2 S
1 _" Z5 h4 U- B! s, R4 x
微信图片_20181101143818.jpg

4 ~# o) ^' Z, I: K3 {! Y, L
厨房外面扩出去,规划到室内来,卫生间这块的话也扩出去,放一个浴缸正好,次卧因为业主的需求,设计成一个佛龛兼书房的作用
& y; l4 Z* z0 S' c
主卧就中规中矩。
7 Y9 Q2 A6 j  x5 l' j8 k/ r
3 f# Z. E+ i  C5 F* B
▼客厅软装图

* @) Y! q6 u( W% K
! X/ o9 K6 b, C" K' k" Z

& l# S) _0 A" x
微信图片_20181101143833.jpg
, N, I6 E3 W/ u7 g! _9 d, F% t' k; e
6 e- }) d# x% @. Q* I( f

; i( Y* e$ e6 o8 W( S! k
▼餐厅软装图
* D7 e6 x) X: J% P7 T

- [2 Y5 d$ f! h' R; A8 z  n

( [, t) Z3 K& |+ n
微信图片_20181101143828.jpg

2 `9 O/ r& l; u$ o( H' J( u6 {

$ q4 A! l; x0 L- y- p+ U: y8 |, O

, d6 E' F0 @, K) Z$ G6 d' G
▼卧室软装图
; B$ N9 [# O0 L

  H) }! i4 E4 l" k$ m
: m- a+ ^2 X+ X
微信图片_20181101143823.jpg

2 ~- G, w0 l, c  `8 H0 j9 J
7 V2 A1 s6 A- ]% q+ p! v3 h  W
更多设计案例咨询临江家园楼盘主管——小丰
/ I- R7 [9 @7 V8 d9 v2 y% r
微信图片_20181013150717.jpg

6 C7 q1 C1 L% X. {& \' L0 D- y, k" f7 k8 W9 E) C8 ]  Z, x2 I
微信扫一扫▲

1 N  ^! u* v, B( F0 s, P+ K/ e
小编电话:15806286711

% {; W7 ~/ y2 i" d. W+ K$ |  ~7 q
更多临江家园的更新,敬请期待!

. n, Q4 w' {6 n- B8 I3 c$ X6 Y
4 S3 B* r) n3 G3 W0 j& I. L, {* V
回复 支持 反对

使用道具 举报

该用户从未签到

 楼主| 发表于 2018-11-27 10:44 | 显示全部楼层 来自:江苏
跟王老师去临江业主家里沟通方案
4 o7 H9 I. |0 v# }/ R) B2 V
微信图片_20181127102516.jpg

8 Z$ s* ^3 {: l' V
现场业主跟设计师如火如荼的进行方案上的交流,业主跟设计师提出自己的一些想法,跟自己家人生活上的一些习惯,

* I+ u- `1 s9 m/ c2 ^' U. C5 L
跟设计师进行一次次的碰撞,最后确定业主满意的方案。
: Y6 a* x3 V2 S
1.jpg
2 s1 F! x" w; ~( \
业主是临江19号楼01户型的,面积140m2,这是业主家的户型图

# i. X. O, s4 E' I- \
3.jpg

' N+ z! P. ^6 Q+ E1 W
这是设计师按照业主的生活习惯,为业主家里设计的平面方案。

+ t3 a0 ]  b' W
业主还是一个比较时髦的人,思想上比较的开放,能够接受年轻人的一些思想整个过程还是比较的顺利,

- X; ^  e1 m  Z
跟业主聊得也是比较的愉快。

1 ^4 X8 N+ d( L9 j* r
业主也说过在外人那里听来,锦华给他的感觉就是贵,但是实际跟我们接触
8 j$ ?( K' u2 X+ C: t: G
了解下来装修这个事情真的是要看公司的,也不是每个公司都跟锦华一样,东西好,设计好,保障也好,房子
+ F7 p0 v/ G) ~- E, ~" |/ u
是自己住的,住的比较的舒服、安全、自在、有保障为什么不选择锦华呢?
1 g2 C0 F$ u# |; f1 P
感谢业主对我们锦华的信任

1 j% y( z: L5 ]
也欢迎广大的临江业主朋友咨询我,了解【锦华装饰】
# \! S' Q. {  v
我们的宗旨是找锦华,装放心的家!
- S7 t" p& i% X0 \
" H1 z  x/ b: b
回复 支持 反对

使用道具 举报

您需要登录后才可以回帖 登录 | 注册

本版积分规则

手机版|无图版|站务联系 | 商务合作 | 平台公约

信息产业部备案:苏ICP备05014191号-1 经营性ICP许可证:苏B2-20110445 苏公网安备 32060202000307号 © 2001-2019 0513.org All Right Reserved.

投诉争议 技术支持:第一互联 GMT+8, 2025-12-26 07:36 , Processed in 0.237128 second(s), 19 queries , MemCache On. 站点统计

快速回复 返回顶部 返回列表