濠滨论坛

点击扫描二维码

查看: 11344|回复: 3

【万濠山庄】别墅施工案例|272㎡新中式、328㎡美式轻奢户型解析

[复制链接]

该用户从未签到

发表于 2018-9-9 11:14 | 显示全部楼层 |阅读模式 来自:江苏
8 o: c3 B  Q+ s; j% j! W
) t' b( k! s( z* m+ N
1.webp.jpg

) |( v4 `" R, k5 F) ~9 T! |# |
感叹号.gif . P6 K- G% ~( S
2.webp.jpg

+ y( R% H4 y; e4 Q
万濠山庄的别墅目前在动工的仅占小区的10%左右,目前锦华共签约别墅户型16户,在施工的为7户,土建和设计阶段的9户,为了让更多还未装修的业主在需要的时候有所参考,这一切针对户数最多的272㎡户型和328㎡户型做了期户型设计分享。
: P$ G6 }: b- Y  |# d
3.webp.jpg
▲别墅目前实际签约16户小区分布图
' p% @" C) O! J+ L
分割线.gif

+ G0 ~- U6 m2 B0 J* Q) d5 o
万濠山庄别墅73幢272㎡解析

. B7 Q# W8 [) x. K
设计风格:新中式风格
施工阶段:土建结束
设计师: 顾  霞
# U7 w* J- X' v# _
三大角度解析:
1、设计师风格说明
2、原始改造改动点对比
3、效果图新中式
; g5 J# R, Q: L& b) u
分割线.gif

4 \3 A. c2 ?; R% I7 w
& Z/ f) h2 a/ U( }) n# x9 d0 w

6 }1 A4 I8 g, L6 ~4 j  O
特别提醒:
以下针对272和328户型的改造方案为个性设计方案,不一定适合每一个同户型的业主需求,目前万濠山庄别墅的全套在建施工方案锦华装饰均已准备好,如果您即将考虑自家装修,我们会根据您的需求,给你提供最佳解决方案。

  z9 L& f. b9 |9 D# z0 }3 V9 o
% g, `6 b; S+ s( b  z
01
设计风格说明
_____
0 N7 i$ z2 \; m7 s1 b' p* c# y
本案别墅,为满足家庭成员不同喜好需求,在设计上以新中式为主,也同时为家庭成员单独设计了美式风格。整体上极力呈现空间雅致、安静的力量。
通过对传统文化的认识,将现代元素和传统元素结合在一起,打造舒适娴静的居住空间,让居住者能感受生活的美好,得到一份清心的享受.......
茶作为中国根深蒂固的文化,在此次设计中体现了其必要性,闲时于茶室静坐品茶,满室清雅。一层开阔的客餐厅厨房给人宽敞明亮的视觉感受,浅色地面与灰色背景的运用给人以沉稳之感,中式花格与软装饰品增强空间的典雅之感。在家具上,结合形式与舒适,加以中式的古朴韵味来装饰空间,有着满满的艺术气息。二层三层在精心优化的空间布局下,不仅空间宽敞舒畅,更是形成良好的空气通道,大大加强了空气的流通性。

$ o5 f' N  I+ `3 ^
2 W7 w5 r; i3 e; h) ]8 j. [
02
主要楼层
原始改造对比
____
  z8 g& x! r6 T" e( B! p
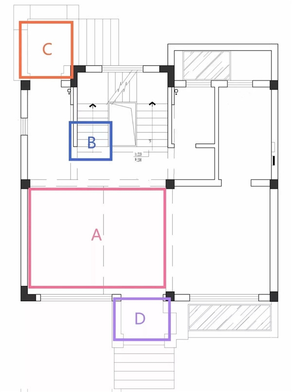
4.webp.jpg
▲ABCD为一楼四大改动点,A:客厅顶现浇、B:楼梯起始处改动、C:北进户门空间扩进来、D:更改入户门位置
6 v$ S2 W8 S& D8 G4 S; M
5.webp.jpg
▲A点一楼客厅顶上现浇实景图
2 @$ H: Q# e1 L4 i- w5 m4 n
6.webp.jpg
7.webp.jpg
▲B点楼梯起步处移位后实景图
% z& L! X% x. g5 n
8.webp.jpg
▲C点北入户门位置空间扩进一楼(此处做一楼的客卫)

! ~$ ^& r6 X" r  v+ `
9.webp.jpg
▲一楼大厅改动后的平面方案
4 z' a4 Q/ a8 t5 o

' t: k7 h* |2 A  o
272㎡户型全套方案文末添加微信客服,回复“万濠山庄”立即获得自家高清平面方案,更提供设计师上门咨询服务。
) l! C& ?/ w! [0 _% F5 `/ i
+ k9 s) {& M9 W; B6 t  ]; z; P
03
272㎡新中式风格
效果图
_____
1 q) P' x$ c) U* o# }! O# ^& b
10.webp.jpg
▲一楼客厅

3 T/ T# L  Z6 j# q! k" H' N' {) A8 Y
11.webp.jpg
▲一楼客厅
4 }6 n$ u3 C5 N0 `6 |$ w3 ]
12.webp.jpg
▲一楼客厅

' T: g. h5 S% d
13.webp.jpg
▲负一层地下室
# o  \( W! Z  q5 r( y! b/ v: Z7 ]
14.webp.jpg
▲负一层地下室

" w2 t$ x1 c. F3 B0 i5 e' y. a
滚被子 阿狸.gif

0 ^- O# H4 y. D+ K# T+ Q7 f: R
万濠山庄别墅30幢328㎡解析
设计风格:美式轻奢风格
施工阶段:土建结束
设计师: 顾  霞
15.webp.jpg

  J9 F9 o% M9 L5 U$ o
三大角度解析:
1、设计师风格说明
2、原始改造改动点对比
3、效果图:美式轻奢
! c. Z' ]2 ?" A, C: v
分割线.gif

: z7 S5 s( @: ^( k6 P; b
01
设计风格说明
_____
7 Y9 m) k, J; a( |
生活因设计而改变,每个人对生活都有自己的追求,如何在把握舒适的前提下去刻画细致的生活,思考什么是家?
工作一天休息的港湾,偶尔亲戚朋友聚餐一起做饭看电影,某时需要轻松的时刻,美式咖啡搭牛奶.....
将这一切安排在家中,熟悉又自在。设计中将休闲放松的区域放在地下室,便于家庭成员间的互动。一层宽敞的客厅,开阔明亮,皮质的沙发,搭配布艺的贵妃榻,华丽而不张扬。沙发背景金属线条隔断,分割空间的同时,提升空间质感,使客餐厅内外通透。重新划分的空间,使二层三层有了独立的起居室和较大的衣帽间,而这几乎成了每个女业主最喜爱的地方。只有感悟生活的点点滴滴,才能做好对家的设计。
4 x4 O9 H8 ?3 p% d
02
主要楼层
原始改造对比
____
  u# J' r) F# {# W( J% a
16.webp.jpg
▲ABC为一楼三大改动点,A:卫生间墙体改动,避免进户时正对着门 B:客厅实墙敲除 C:玄关,厨房墙体改动

! @+ h+ u  x0 l% W
17.webp.jpg
18.webp.jpg
▲A点处墙体改动,避免了进户,门相冲的问题。
5 }( n  W+ ], Z
20.webp.jpg
▲B点处墙体敲除

7 I. y1 Q: s) k0 f
21.webp.jpg
▲一楼改动后平面方案
9 T( ^+ @  b2 N! T+ w

" ?5 A4 G& l+ _2 A
328㎡户型全套方案文末添加微信客服,回复“万濠山庄”立即获得自家高清平面方案,更提供设计师上门咨询服务。

" w6 `/ W5 y- y) e
2 P* Y7 v0 H/ L3 u4 t5 {9 ~
03
328㎡美式轻奢风格
效果图
_____
. X2 o7 f6 m- f* e# A
22.webp.jpg
▲一楼客厅
3 p+ O2 R# N1 ]& G
23.webp.jpg
▲一楼客厅
+ Q3 e5 t4 e, ^; i% j: R
24.webp.jpg
▲一楼餐厅
6 Q; c; s6 t- L8 M* C* H8 k0 D; x
更多万濠山庄的在建施工方案添加客服微信咨询,同时我们提供上门咨询服务,万濠山庄在建7户施工工地,供你参观。
+ h4 ^9 G2 v# u. D. q. D

; Q+ u$ t5 g, B6 [( \. o7 G
25.webp.jpg
▲万濠山庄别墅工地实拍图

/ N( H  i$ E; i) N8 ]2 U
分割线.gif
8 q, c  T+ b! Q! @: N

5 L# P  V0 B6 A% ^; u; j/ `
获取万濠山庄别墅户型方案,设计师上门咨询等服务,添加客服微信

- j% S7 o+ B& H/ i. {
思思微信.jpg
电话:13821605387
) n: F6 a7 k. T* L
# g% |9 U" m- P3 c$ v

8 v' _; b0 [+ c/ k' ~& s- q1 a9 Q

* j1 D! ~- c0 c
( L  T' P4 Z2 U9 J! p% J+ f
, ?5 P% n8 U( r* t! c$ j2 Y6 j

. Y0 P) a0 ~2 U# U# R) g9 B! [$ k& e
' s- K( z# a" \
$ F1 e& E* R* r- Z+ Y$ }
南通0
匿名
发表于 2018-9-13 08:58 | 显示全部楼层 来自:江苏
提示: 作者被禁止或删除 内容自动屏蔽
回复 支持 反对

使用道具 举报

该用户从未签到

 楼主| 发表于 2018-9-15 10:29 | 显示全部楼层 来自:江苏
**** 作者被禁止或删除 内容自动屏蔽 ****

3 M( p& o! ~: T: M4 P! u. R: S我们是文明人,这个叫占有率NO·1
+ y! W2 w" c9 J
回复 支持 反对

使用道具 举报

匿名
发表于 2018-9-19 14:11 | 显示全部楼层 来自:江苏
提示: 作者被禁止或删除 内容自动屏蔽
回复 支持 反对

使用道具 举报

您需要登录后才可以回帖 登录 | 注册

本版积分规则

手机版|无图版|站务联系 | 商务合作 | 平台公约

信息产业部备案:苏ICP备05014191号-1 经营性ICP许可证:苏B2-20110445 苏公网安备 32060202000307号 © 2001-2019 0513.org All Right Reserved.

投诉争议 技术支持:第一互联 GMT+8, 2025-12-26 00:37 , Processed in 0.295765 second(s), 17 queries , MemCache On. 站点统计

快速回复 返回顶部 返回列表