濠滨论坛

点击扫描二维码

查看: 4032|回复: 0

好来居♦2018工地日记♦吴亚龙『华强城 』105㎡(开工大吉)

[复制链接]

该用户从未签到

发表于 2018-8-28 17:45 | 显示全部楼层 |阅读模式 来自:江苏
2.2.jpg , _4 K  C0 P; q  e, ^' R
【楼盘名称】:华强城
+ E) x0 J! w2 G9 s2 j【建筑面积】:105㎡" ~1 z' K8 @, ?8 p/ U: C5 L  z6 o
【装修方式】:半包8 |* U# A7 y) Q
【设计风格】:现代风格
0 Z. C( s/ G3 d0 R0 v" y【设计师】:吴亚龙5 l& U  G$ c6 I' s# m( {/ H& Y$ n
【项目经理】:陆良初
( B0 W3 @5 k( R3 c6 A" B1 R; [【开工日期】:2018年8月28日7 H# L" Q& h! Y# |6 u- p- R! o. R
【施工单位】:好来居装饰红宝石国际设计中心2 F3 W2 m; [4 Q" X; q
3.jpg
, _8 |3 V2 A( J5 c0 `; l  r) A9 D 4.jpg
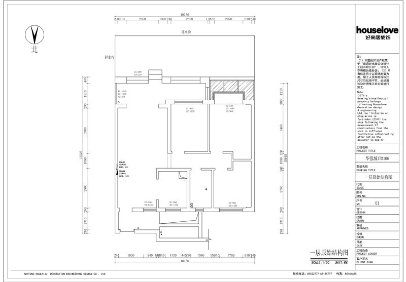
; A9 I* \( L* |" z6 C5 M% O1 |原始结构图:; Q) ~) {+ {; O( M4 D: B6 i' ]. m9 B
1.jpg + f- |7 H& a6 a! j8 ]* X

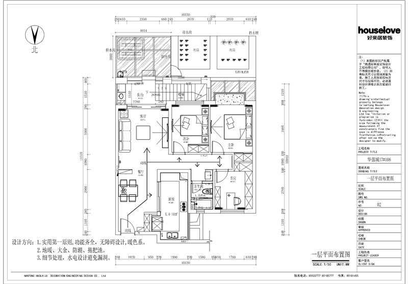
4 g. S/ N- `! P  }平面布置图:7 s7 P# b, y7 c( O# V& l+ ]- W
2.jpg 9 V9 R4 x. d8 _" D: Z
效果图:
( r1 N2 I" i$ u0 h! l4 m+ a 微信图片_20180828170743.jpg / t0 d" G+ x: K, A, u
3 k8 N: ^7 Q: s' A) n3 Z" ^
南通0
您需要登录后才可以回帖 登录 | 注册

本版积分规则

手机版|无图版|站务联系 | 商务合作 | 平台公约

信息产业部备案:苏ICP备05014191号-1 经营性ICP许可证:苏B2-20110445 苏公网安备 32060202000307号 © 2001-2019 0513.org All Right Reserved.

投诉争议 技术支持:第一互联 GMT+8, 2025-12-25 19:10 , Processed in 0.161317 second(s), 11 queries , MemCache On. 站点统计

快速回复 返回顶部 返回列表