濠滨论坛

点击扫描二维码

查看: 81931|回复: 33

No.58【2018年濠滨装修日记大赛】+【四季绿苑】+【新中式】+【大宅装饰】

[复制链接]

该用户从未签到

发表于 2018-8-25 08:35 | 显示全部楼层 |阅读模式 来自:江苏
# b* D; o. B! o7 U1 N) ]9 g' f. n6 l) V, a' A' e7 H# |
' y  r; Y4 ~  ^! W/ Z* n
我家在四季绿苑有套房子,之前一直租给别人住,今年打算装修一下给家里老人住,来记录一下整个装修过程。; B( v! q8 Z+ p( \8 v
! M0 k' B) o+ `) n8 B8 M
基本信息栏:
& F: j' g$ s( }$ e6 ]' p房型:三室两厅两卫
6 |7 N  [5 @6 |6 [建筑面积:130㎡  I% @6 P6 l- u  k: \6 R/ p
装修总预算:暂定30万,后期再看
; n, A- V; B. {- z包工方式:半包# m. Z( D$ R- W7 w% R4 A
装潢公司:大宅装饰
) l4 W3 ?5 W: Y7 w7 ^7 m4 @设计师:秦玮
. O5 A% ]! j' }% G% V$ f开工日期:2018年8月9日
8 m0 J0 b6 b; \$ ^楼盘地址:四季绿苑, u4 p, o, ?* l' D
1 h% c0 h8 [9 ^& _, B6 l
原始结构图:4 J# i% C2 n5 r, ?% x1 i; a
07d669d42ed75dbc9b2ee68cada59a6.png 1 c2 `: R3 T; p* d+ ~. r

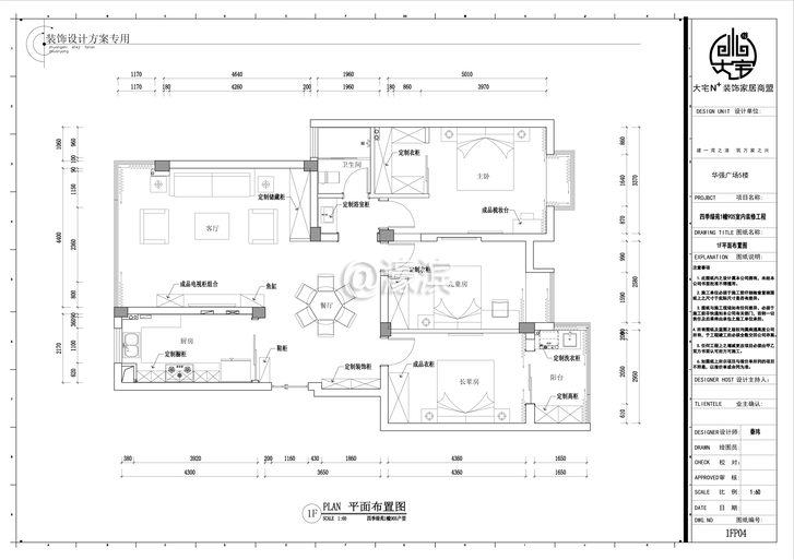
0 z3 Y7 q) }1 e* i8 Y平面布置图:* j) ^/ u, \1 z: r
a2823f2a8d7668f823c579ce396ccda.png
* t! y. g/ ~2 h. s; n; G
1 |: C$ K! `( z: H' [( c) q# q; _直达电梯:" n7 A0 ~+ x% F4 n$ a  ~# B) I  l
1. 开工大吉, ?; E  u4 |& o7 ?8 |: `
2. 开始敲墙9 \4 O% x6 L+ u7 ?* I
3. 刷墙固地固
$ g, l  `- b, |$ A4. 厨房水电图
% d* |" q  \0 Z# F3 h5. 空调安装前的准备
  Z6 w$ k9 J9 f1 V: q# x, B4 U" w3 s6. 水电定位
, ], P5 W0 W3 X. G5 A7. 墙面开槽完工,等待安装空调
/ w* F- w6 |5 Z; K. M% j- D1 N8. 电工开始施工
# T; b$ }* Z' D# C& z4 V) d9. 线路施工完工
$ _* N# l& [% ^' b! h10. 水电施工中# ^# x4 w- E* Z) T
11. 木工材料进场
+ S' M0 l9 r9 N+ e12. 客厅吊顶施工& v4 A/ a3 w4 h4 f
13. 铺贴面砖
% ^6 }+ ^* F) h" G+ V& y) `
  i) h2 E) e1 j0 `! h) f% X! Q
1 \' v' [& A( N' U: |2 H! l1 R8 }; v2 E; f1 B
南通0

该用户从未签到

 楼主| 发表于 2018-8-25 08:52 | 显示全部楼层 来自:江苏
/ |9 k: z, ?: F8 z( N4 j
  O9 F2 p: T  v' z2 u# A<开工大吉>4 L- J9 _7 k/ V8 K: u
8月9日,下午1点58分,开工大吉!6 I& l1 ]. v; ]0 ~
911576322623121369.jpg 7 @# w  C( M8 ]# t; f: U5 ]
帅哥设计师摆的“8”很标准啊6 i$ V& m0 y% @

. e" ~7 [3 Z# o0 u% K 778159732271768874.jpg
8 N8 y  s3 j* ^* ^
# Y5 b& a5 d7 x8 K% E( ~ 827603446811591684.jpg 2 X) j& |1 q% T
地面、大门保护很到位,手动点赞。
, N$ B- `2 d5 V/ R, U% L+ O: F) f/ i3 ?& x& p  H5 t. p6 d
4107482847631124.jpg
6 y! U; V( j' C  G% A" ^/ I( Y) ^
528385482837028365.jpg
) w. U# A+ C5 A, p2 T) M2 j1 T0 W. P" D& S& i
174601255363640238.jpg " c0 j2 O5 _5 X2 s" ^) j
哈哈,看我爸这敲墙的姿势是不是很霸气
$ W4 U% K1 f2 V( g3 G: J/ d! I4 J2 \/ S# @
460213710376432389.jpg
# M* V  B# v% y* p- u
. A/ F) x5 s  @* { 78946680542206502.jpg
6 u* u+ w0 S! c% C期待~5 f3 @7 Y" S) k( h( N
回复 支持 反对

使用道具 举报

该用户从未签到

 楼主| 发表于 2018-8-25 09:14 | 显示全部楼层 来自:江苏
<开始敲墙>8月14日,抽空去工地看了下,开始敲墙了,明天继续2 @5 ^! k9 T1 Z0 {

6 y+ m1 I! v8 ?: r1 S 41877173542781938.jpg % X: y. m2 v. Q3 t1 [. _# R2 {6 @, w
7 g1 v  s9 v) p
189365122419075961.jpg , N( B8 V! Z  w% [
* b8 y" E6 {  V8 K( Y5 b
516229770814946369.jpg ( g3 O$ W2 k6 T& T

$ i# D: T1 O$ v. O 631783282266220687.jpg
3 o' ?( |! i) G! g9 @+ n0 \9 V7 x
回复 支持 反对

使用道具 举报

该用户从未签到

 楼主| 发表于 2018-8-25 09:33 | 显示全部楼层 来自:江苏
<刷墙固地固>
9 I9 ?; g1 E) o# }2 s, i: u8月24日,墙固地固粉刷完毕
" U4 J* O+ y/ W  W8 f) W/ ]/ s3 J 四季绿苑.jpg 2 l: x1 C. {' p$ r* N+ Y
回复 支持 反对

使用道具 举报

该用户从未签到

发表于 2018-8-25 11:21 | 显示全部楼层 来自:江苏
     恭喜楼主,开工大吉哦!
回复 支持 反对

使用道具 举报

发表于 2018-8-26 09:43 来自手机微信 | 显示全部楼层 来自:江苏
提示: 作者被禁止或删除 内容自动屏蔽
回复 支持 反对

使用道具 举报

发表于 2018-8-26 10:25 来自手机微信 | 显示全部楼层 来自:江苏
提示: 作者被禁止或删除 内容自动屏蔽
回复 支持 反对

使用道具 举报

该用户从未签到

发表于 2018-8-27 10:04 | 显示全部楼层 来自:江苏
恭喜楼主,开工大吉,工地干干净净,不错
回复 支持 反对

使用道具 举报

该用户从未签到

 楼主| 发表于 2018-8-28 14:00 | 显示全部楼层 来自:江苏
<砌墙>
  P2 j3 H! e# j今天砌墙,水电的具体位置准备和项目经理再讨论一下! ?7 Z8 M6 ?- [9 U$ K: b: n
回复 支持 反对

使用道具 举报

匿名
发表于 2018-8-28 14:58 | 显示全部楼层 来自:江苏
提示: 作者被禁止或删除 内容自动屏蔽
回复 支持 反对

使用道具 举报

该用户从未签到

 楼主| 发表于 2018-8-30 08:45 | 显示全部楼层 来自:江苏
<厨房水电图># V4 u5 N- C* z3 R
8月30日,这两天在砌墙,水电的具体位置和大家商量一下
0 [. U8 H. T6 |% i, e* J  p; c6 q 207565044718474452.jpg
; @$ _. l+ B+ ^% Y6 K/ I. V' h; p" O) [3 e6 ]# X
226446080985452784.jpg
4 b( t8 S! |! h( A0 s
; a: a8 K$ S; J 313444912096353989.jpg
- }& G! r  S9 e! P
. Z; t1 E" U! \( i* R 703442071888751042.jpg
3 |/ H4 E  |; D; N3 ^+ c
1 |1 ^  K2 {) R 759804911864896341.jpg
7 V& g# y; i: K- C6 y厨房水电图
& m( [) |- D7 {4 m8 I
回复 支持 反对

使用道具 举报

匿名
发表于 2018-8-30 10:25 | 显示全部楼层 来自:江苏
提示: 作者被禁止或删除 内容自动屏蔽
回复 支持 反对

使用道具 举报

该用户从未签到

 楼主| 发表于 2018-8-30 13:31 | 显示全部楼层 来自:江苏
**** 作者被禁止或删除 内容自动屏蔽 ****

  C) e3 u* |- q5 Q3 d' G' W蒸箱是嵌入式的,后面预留了插座
2 i8 K: q0 S3 G. G+ Z
回复 支持 反对

使用道具 举报

该用户从未签到

发表于 2018-8-30 20:22 | 显示全部楼层 来自:江苏
恭喜~
0 l# {* f" `6 {恭喜楼主,开工大吉!
回复 支持 反对

使用道具 举报

匿名
发表于 2018-8-31 09:29 | 显示全部楼层 来自:江苏
提示: 作者被禁止或删除 内容自动屏蔽
回复 支持 反对

使用道具 举报

该用户从未签到

 楼主| 发表于 2018-8-31 13:58 | 显示全部楼层 来自:江苏
: @5 |7 C1 L2 o+ ^; \3 b! o& |

; F7 |' U, n. e, B0 n<空调安装前的准备>8月31日,瓦工今天砌墙粉刷结束,并且项目经理向我汇报了下个星期的工作安排,优秀
: F& S' }: v6 q3 U* {$ N  K下星期一和星期二开槽,星期三现场清理,星期四安排空调安装
$ o2 N$ \( F7 Z  F3 v/ e" v7 \. ]4 ^ 四季绿苑 (1).jpg
9 z2 u. Y9 I: Z+ |1 t- q
# |5 k, F8 B) {  _$ g# \* e 四季绿苑 (2).jpg 6 ?% p9 ~! Q- j
3 n/ p7 G4 q- Q  t5 _9 c/ |
四季绿苑 (3).jpg - D% J% K1 p8 _3 L. [; U+ W8 t/ {
* W; s/ S4 t4 ]$ ^6 o0 v: o
四季绿苑 (4).jpg 0 ?! n6 S: r5 p) f

) G1 o. \9 |' A7 p  {* s* A8 G 四季绿苑 (5).jpg # A! b  b" }+ Y# x/ N: o7 q& \! _
回复 支持 反对

使用道具 举报

该用户从未签到

 楼主| 发表于 2018-9-2 16:57 | 显示全部楼层 来自:江苏
<水电定位>* ^- G7 W8 ?  b) u! D' h6 }* _: }
9月1日,下午3点约好做水电定位,顺便拍了干净的工地照。8 Z# I" `( a) D  U8 G/ S) {: K1 o
四季绿苑 (1)_副本.jpg ! Z5 F7 D) {6 k5 S4 o
四季绿苑 (2)_副本.jpg
9 U% Z1 F$ b* `  Y& A1 T' @) S# y( Y- j  a; u7 w3 k( ^# j$ y' d
四季绿苑 (3)_副本.jpg " b( k* u1 w2 d" e
( x6 v* W7 ^- H* a
四季绿苑 (4)_副本.jpg 5 f& D8 j0 N3 a7 ^
7 d7 k' ?6 q- L; c% z
四季绿苑 (5)_副本.jpg . I% O  w; K, Z

. [* H8 B5 k1 x" M" {- S 四季绿苑 (6)_副本.jpg - b+ p; i* T) f9 H; H

; u% _' B5 e! u; E8 Z 四季绿苑 (7)_副本.jpg
4 B9 c5 D8 H% q1 O' ^. j7 P3 r1 k6 H& `+ ^- x- e, Y6 E
四季绿苑 (8)_副本.jpg
, Z8 ?" t2 L+ q' J
' V: q2 K% b+ p8 s  @ 四季绿苑 (9)_副本.jpg 1 U, t! ~: h9 J- ]
, ?, `) E1 K6 A$ w
回复 支持 反对

使用道具 举报

该用户从未签到

 楼主| 发表于 2018-9-4 14:21 | 显示全部楼层 来自:江苏
<墙面开槽完工,等待安装空调>5 n. j7 c8 i6 e2 L: s6 S
9月4日,收到朱工发来的图片,墙面开槽已经完工,接下来就等安装空调。
+ u, G9 ~0 _+ D% T; W 四季绿苑 (2).jpg
" P2 V/ R' o8 y5 c/ @
$ m3 n) T0 c) o( B% F. q& U 四季绿苑 (3).jpg
- t. s4 a, F' u8 v2 A9 `. v
% V2 ^. a- u  I* {4 R9 y1 p! b 四季绿苑 (1).jpg
4 L7 V+ ~4 }, }% T) i3 ?, \9 @* C: I* {, k% l4 w
四季绿苑 (5).jpg / V% Y' G+ J6 ^& c

* o0 \; C+ k8 A 四季绿苑 (6).jpg
& m, g8 a. U8 A3 b2 a# q* o
: K' M0 K: N" B6 H) s+ S+ l 四季绿苑 (4).jpg 9 h3 c% G- h8 @& m+ M
回复 支持 反对

使用道具 举报

匿名
发表于 2018-9-4 16:19 | 显示全部楼层 来自:江苏
提示: 作者被禁止或删除 内容自动屏蔽
回复 支持 反对

使用道具 举报

该用户从未签到

 楼主| 发表于 2018-9-6 14:24 | 显示全部楼层 来自:江苏
昨天晚上通知王经理今天空调师傅7点半到现场开孔,让他安排人员到位. n# ]) A% Y; D+ Y. m/ k
回复 支持 反对

使用道具 举报

该用户从未签到

 楼主| 发表于 2018-9-8 15:00 | 显示全部楼层 来自:江苏
昨天空调已经基本完工,今天水电材料进场
回复 支持 反对

使用道具 举报

该用户从未签到

发表于 2018-9-8 16:01 | 显示全部楼层 来自:江苏
恭喜楼主,开工大吉
回复 支持 反对

使用道具 举报

该用户从未签到

 楼主| 发表于 2018-9-11 13:50 | 显示全部楼层 来自:江苏
<电工开始施工>" h3 W" k9 f+ @' B1 p0 G
9月11日,电工开始施工
/ y/ ~/ ~3 s( c0 `3 n4 n# g9 \ 四季绿苑 (1).jpg
9 _- X9 P" m/ b. S5 @5 P
6 o0 q* H! ]6 F( Q% q7 ` 四季绿苑 (2).jpg $ t! H; _& t2 p! \6 f" ]! o: R8 h

2 x" R: M* u4 V& F; I+ r7 z: p1 L 四季绿苑 (3).jpg 4 y6 L0 T1 {8 W1 n3 ]2 q7 Q
回复 支持 反对

使用道具 举报

该用户从未签到

 楼主| 发表于 2018-9-12 17:32 | 显示全部楼层 来自:江苏
<线路施工完工>9月12日,线路施工今天完工,明天施工水路。
# X- n/ H0 p* v7 N: D( g; V 四季绿苑 (1).jpg + O$ X/ i$ X4 b. e9 d* K4 W
' ?2 ^9 ^6 G! j4 O
四季绿苑 (2).jpg , o; e) w- I0 X1 u

9 A( }+ Q7 j4 B5 g 四季绿苑 (3).jpg
" e" i# W: N& v4 Z: O3 ~* S( U" Y; Z& u  {, X" o) y( t
四季绿苑 (4).jpg
" }3 l; k" M! x: f5 z2 \* w
  g3 o! D8 d! P3 I$ G; T 四季绿苑 (5).jpg 9 S& z6 ^8 d" q  ~" k" l7 i
回复 支持 反对

使用道具 举报

您需要登录后才可以回帖 登录 | 注册

本版积分规则

手机版|无图版|站务联系 | 商务合作 | 平台公约

信息产业部备案:苏ICP备05014191号-1 经营性ICP许可证:苏B2-20110445 苏公网安备 32060202000307号 © 2001-2019 0513.org All Right Reserved.

投诉争议 技术支持:第一互联 GMT+8, 2025-12-16 08:47 , Processed in 0.250142 second(s), 17 queries , MemCache On. 站点统计

快速回复 返回顶部 返回列表