濠滨论坛

点击扫描二维码

查看: 11085|回复: 5

2018实景作品 | 我抱着梦的翅膀飞,只为最后星辰在望,幸福可及

[复制链接]
  • TA的每日心情
    慵懒
    2014-6-28 08:44
  • 签到天数: 9 天

    [LV.3]偶尔看看II

    发表于 2018-8-24 15:57 | 显示全部楼层 |阅读模式 来自:江苏
    0 K2 v, j' J2 ?: l0 B2 U
    4 h  N" ]2 J2 m6 f
    我们不做装修
    我们是生活方式的设计者

    ' y) p& ^. W; V# B& ]
    5_副本.jpg

    9 S' {' E: B0 X/ D( [/ D, i
    我抱着梦的翅膀飞,
    昼夜交替,翻山越岭,不知疲倦;
    只为最后星辰在望,幸福可及。
    275156568728739618.jpg
    'ABOUT THE HOUSE'

    ; b- c, h# A5 }' A- a% v8 d0 L
    装修风格:美式风
    装修面积:122㎡
    装修户型:三室两厅一厨两卫

    , l7 G( F; b3 C" L; V; ?5 f' J* d; ~
    客户需求
    目前两夫妻居住,父母偶尔来住,设计师通过空间整合调整,大大增加了储物空间,在满足空间功能情况下,整体以暖色调为主,配合点冷色调的搭配,以整体颜色调达到平衡点。
    8 H9 _6 `  s% r) v; e3 v
    设计方案
    $ a- V9 d( v6 Q- x
    在本案的设计里,设计师运用轻美式小清新的设计手法,结合浪漫元素,缔造了富有个性魅力的舒适空间。同时更多的考虑到业主的喜爱,将空间色调与情感融合,房间中的每一个角落,每一处布置,每一处缝隙里面,都是用心将它们填满,真正地还原了生活应该有的腔调。

    0 s( N; T# c  R, N
    设计师与主家的合影
    / {0 l+ `7 a+ i' F4 X/ P
    14_副本.jpg
    $ A" \( l2 N: c$ M4 X$ {% ~
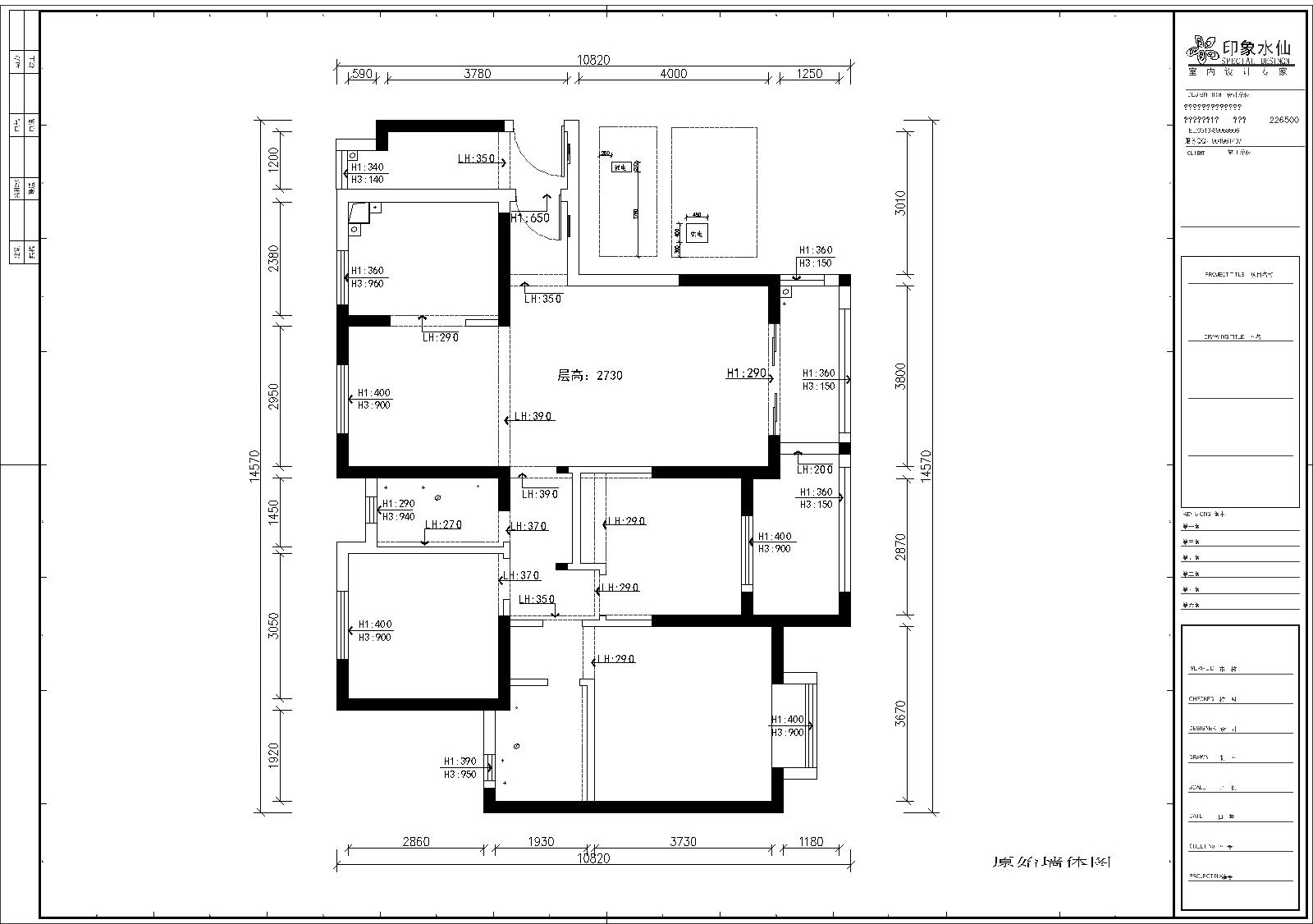
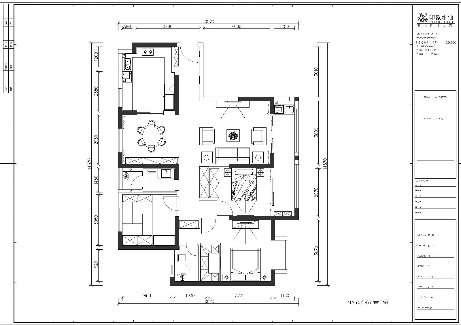
    设计方案(户型对比图)
    , K" w1 p$ E6 g9 D
    765825019538851179_看图王.jpg
    ! ~+ \1 t1 b3 h% d$ ^
    551548020304370828_看图王.jpg

    1 D: o( q! H6 c: R/ b  n) L' B
    客   厅

    3 b* x5 Z( o. q0 c2 w# h/ D
    1_副本.jpg
    ! `1 ?2 m, ?+ ^1 [* V  F& L
    7_副本.jpg
    + _8 D& u6 J4 b  z+ l; ^8 `" I& r1 O
    室内采光良好,设计师以浅绿色为基底,搭配亮色软装,营造出简洁又舒适的空间氛围。棕色的家具,米白色的沙发,亮色的软装,让客厅在沉稳之中透露着灵动与俏皮的气息。

    # e  s: v( P% ^1 x+ I: ~
    3_副本.jpg
    ; l5 y9 H0 I: q* T) h
    本案并没有过度装饰
    以美式的自由、浪漫为根基
    融入了主家的
    生活方式与思维理念
    : j6 D& z1 r* ]: I1 t+ j
    6_副本.jpg

    6 H. C( @: i8 X  p
    2_副本.jpg
    ! P: y  I) m7 n' V$ z
    餐   厅

    , k* `  I; @2 K1 X  _
    8_副本.jpg
    . G) b* s5 ?2 h5 Y, R2 y! U
    整个餐厅采光通透,设计师打破传统、刻板、僵硬的风格,以浅绿色的整体色调,搭配花色提拉帘点缀,色泽的深浅对比,彰显着空间层次感;搭配造型独特的吊灯,高贵典雅的气质迎面扑来。选择棕色餐桌,与浅绿色的对比,凸显着舒适与浪漫的观感。

    3 s  @; j  y/ U4 y
    过  道

    * ^/ O+ ]+ G/ x% @' z
    9_副本.jpg
    6 o+ W  R3 G* q6 l  M% ^  p. `* M
    原先乏味的过道通过装饰画的点缀,变得丰富且优雅,让空间变得更加灵动有趣。

    / [' T$ W0 x4 {( ^! E6 i6 X0 G* F1 ?
    厨  房
    4 O0 a/ S. b7 n8 [* R
    13_副本.jpg
    / a( x  Q' m# Y' p. r' ?; p* f! Y! y
    本案的厨房空间还是很宽敞的,丰富的橱柜满足了厨房的收纳需求,一侧小吧台的设计,满足了男女主人公共同的喜好,米黄色的仿古砖,藏蓝色的橱柜,让厨房的每一处都拥有着独特的美感。

    / [2 j/ O- [3 n8 {7 N$ H
    主  卧

    ! o+ I7 P+ b; }/ G4 C4 l
    11_副本.jpg
    ( p, m3 ?+ q, N9 @
    在卧室的设计上,首先以大量的米白色带入柔和温润的基调,并通过精致的灯具以及充满艺术感的背景挂画,增添室内的格调,在此基础上将屋主的想法,以简约美式的家具形式融于室内,将理念与设计相结合。
    & i$ a0 x6 ?1 b* {8 B
    次  卧

    $ C' M  h$ H( d3 d# m. e$ N
    10_副本.jpg
    8 B* S* n& R/ p& W; g  y8 u6 M
    卧室的设计遵循温馨随意的法则,大面积落地窗使得卧室采光充足,并以床为视觉中心,通过温润的木地板及木质家具彰显细腻与舒适,营造整个空间素雅舒服的氛围。

    2 e% h. W2 u. j
    卫 生 间
    ! q2 l- Z5 U+ q
    12_副本.jpg

    - q( J- u* p( U: H; A; o
    卫生间给人一种宽敞大气的感受,实木柜上使用了大理石做台面,整个空间的设计,体现出主人对生活的高品质追求。
    2 H9 [5 O6 n  w3 a. L" l7 [1 C; l  i1 S

    ( k; Z" L  Q% h- R南通0

    该用户从未签到

    发表于 2018-8-27 17:12 | 显示全部楼层 来自:江苏
    半包的吗???这家一共花了多少钱装修的?
    回复 支持 反对

    使用道具 举报

    该用户从未签到

    发表于 2018-8-27 17:12 | 显示全部楼层 来自:江苏
    挺好看的
    回复 支持 反对

    使用道具 举报

  • TA的每日心情
    慵懒
    2014-6-28 08:44
  • 签到天数: 9 天

    [LV.3]偶尔看看II

     楼主| 发表于 2018-8-27 17:17 | 显示全部楼层 来自:江苏
    向日葵的微笑HY 发表于 2018-8-27 17:12
    1 v! `* A8 i/ H8 h  G2 e- W半包的吗???这家一共花了多少钱装修的?

    1 ]% R! \+ x% I' E: @1 ^) w  L  C% _. F. Z半包的。
    * @; V; H1 t% p. j6 ~8 q4 c) c他们家一共花了28万左右,前两天也有业主问过,我让设计师问过业主了。
    : n: g8 Y7 c( h) }* L( k1 y
    回复 支持 反对

    使用道具 举报

    匿名
    发表于 2018-9-2 16:26 | 显示全部楼层 来自:江苏
    提示: 作者被禁止或删除 内容自动屏蔽
    回复 支持 反对

    使用道具 举报

  • TA的每日心情
    慵懒
    2014-6-28 08:44
  • 签到天数: 9 天

    [LV.3]偶尔看看II

     楼主| 发表于 2018-10-13 17:09 | 显示全部楼层 来自:江苏
    **** 作者被禁止或删除 内容自动屏蔽 ****

    % W; W3 b  ?2 D' U* g$ q% \
    • 这家业主特别喜欢这个色调的门板;您可以关注关注我们公司其他实景作品,总有您中意的( C. y+ F( m0 c1 c  ]2 f, @' M- k
    7 f. t  r+ t8 e/ z; ]! }" u
    回复 支持 反对

    使用道具 举报

    您需要登录后才可以回帖 登录 | 注册

    本版积分规则

    手机版|无图版|站务联系 | 商务合作 | 平台公约

    信息产业部备案:苏ICP备05014191号-1 经营性ICP许可证:苏B2-20110445 苏公网安备 32060202000307号 © 2001-2019 0513.org All Right Reserved.

    投诉争议 技术支持:第一互联 GMT+8, 2025-12-25 22:50 , Processed in 0.220535 second(s), 19 queries , MemCache On. 站点统计

    快速回复 返回顶部 返回列表