濠滨论坛

点击扫描二维码

查看: 4021|回复: 0

好来居♦2018工地日记♦戴新风『优山美地 』220㎡(开工大吉)

[复制链接]

该用户从未签到

发表于 2018-8-7 17:39 | 显示全部楼层 |阅读模式 来自:江苏
1 h) x1 z  t( h$ {. M9 C1 @  [8 }% I1 K7 }
1.jpg
【楼盘名称】:优山美地166-04
0 V/ c: G4 c: }【建筑面积】:220㎡
9 D% D! ^# \8 k$ }6 B! W! a【装修方式】:半包( ~& g. _# _- G8 y' |- p
【设计风格】:中式风格
4 N( s" T% _, v4 g3 r2 O【设计师】:戴新风
0 b1 v9 s0 T* t2 u" Z( w【项目经理】:纪光跃1 i9 D3 z, J# C; F# B+ e" `
【开工日期】:2018年8月7日
4 W: K7 N6 B7 n9 S1 T9 K8 a【施工单位】:好来居装饰红宝石国际设计中心5 X  N+ v* p! H4 l# N3 p7 V( n
一楼原始结构图▼
9 G# l  s! H; M; p6 K# p8 R
2.jpg

# I; q* G! r1 Q* ^
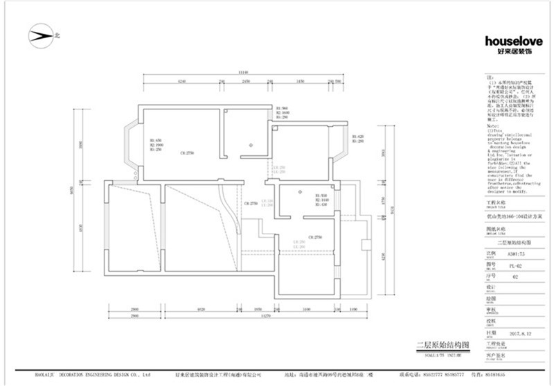
二楼原始结构图▼

9 _6 v$ b+ `  L& z7 I) p
3.jpg
  \3 w) }8 ^* q; ^
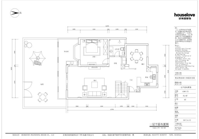
一楼平面布置图图▼
% S2 P$ e. x) Q4 ]2 [
4.jpg

8 N) h" B& Q. P* t; K
二楼平面布置图图▼
! z1 E, i9 p5 @3 ?4 ^' i
5.jpg
' {. ^' s: @9 D/ N5 b, s& ]6 K
效果图▼
- O# }9 o1 {% q9 [( l" X
6.jpg
7.jpg
8.jpg
9.jpg
南通0
您需要登录后才可以回帖 登录 | 注册

本版积分规则

手机版|无图版|站务联系 | 商务合作 | 平台公约

信息产业部备案:苏ICP备05014191号-1 经营性ICP许可证:苏B2-20110445 苏公网安备 32060202000307号 © 2001-2019 0513.org All Right Reserved.

投诉争议 技术支持:第一互联 GMT+8, 2025-12-25 22:50 , Processed in 0.158117 second(s), 13 queries , MemCache On. 站点统计

快速回复 返回顶部 返回列表