濠滨论坛

点击扫描二维码

查看: 9148|回复: 0

No.2【华强城四期设计定制服务月】——158m2洋房4大方案深度解析

[复制链接]

该用户从未签到

发表于 2018-8-4 16:54 | 显示全部楼层 |阅读模式 来自:江苏
6 w- l- a+ r7 [% n6 U* x# P7 T3 P' ?
* s6 ~$ }! i! V) V# g! O
本期分享 ▎ 158m2洋房方案锦集
7 p8 e  @  y& U
01.jpg

; A1 l4 L9 K$ }; g2 J0 N
▼方案一研发设计师

/ h' o( O; A# m2 a! e% P
01.jpg

& k4 u  b$ x7 {' u  w" G8 g
Designer ▎储星星

' X2 \: ]+ v* X0 v, l9 ]; H
▎本案设计理念
设计改变生活
细节决定品质
▼本案原始图
02.jpg
▼本案功能布局一
03.jpg
▎ 方案改造备注
❶门厅玄关作为通道连接的枢纽空间,衔接到客餐厅、过道,所以门厅的设计至关重要。将原墙拆除,用玻璃等通透材质作为玄关背景,更加通透。
❷现浇外拓的空间部分作为西厨来使用(早餐、冷餐、烧水、洗水果等)都可以在这个区域完成
❸利用北阳台的空间,把餐厅区域增加吧台配合西厨,整个空间更融会贯通,互动更好。顶上过低的横梁也可以作为餐厅吧台区间划分的节点,视觉效果更和谐。
❹利用原来墙体做成背靠背的衣帽柜,房间增加收纳功能,过道的柜子可以做成装饰柜做过道背景。
❺原卫生间偏小,东移30公分,扩大客卫空间,做成干湿分离,更方便使用。(细节处理:干湿分离可用半通透材质隔墙,增加采光)
❻套间设计:拆除规划在套间里的所有墙体,1.增加主卧空间。2.扩大卫生间空间。3.过道变宽。4.书房和衣帽间兼并使用。这样的套间设计更舒适和谐。
% E/ V  k. b* _7 r  ?- `1 K
▎ 细节处理
✦1.客厅较宽,电视背景墙两边加宽(可用石材、柜子、等材质)与餐厅的柱子保持平行,避免餐厅柱子的角对着客厅,客餐厅后期在立面上通过材质的修饰,风格上更美观协调。
✦2.沙发背景增加通透材质的隔断,和厨房的角平行,避免了厨房的角正对着客厅。
✦3.餐厅北阳台排污管的处理
利用窗帘盒的厚度把下水管包挡起来,后期窗帘盒两边做立面的延伸,通过木饰面作为装饰,在保持美观的同时把水管隐藏起来
; j+ E6 [6 _" I" x9 J& K2 p
▼餐厅参考图片
04.jpg
05.jpg
▼客厅参考图片
06.jpg
▼卫生间参考图片

7 B; T0 h& c/ f+ ~. }# r
07.jpg

$ T3 S# ?* v& \- i' z# B
▼方案二研发设计师
/ V' `1 Q) ]5 S! f: e% j
08.jpg

: f0 Y5 W5 O; q( O2 B# h

  e" P( Z& k# \* w9 X- I
# S; M/ C) J- r! X1 e
Designer ▎许芳丽
! A- Z# g- F' X, D
▎本案设计理念
从客户需求出发
为客户量身定制方案
▼本案功能布局二
09.jpg
▎ 业主定制需求
1.常住人口3个人,喜欢新中式风格
2.业主有养鱼的习惯,家里需要一个放鱼缸的区域
3.儿子喜欢泡澡,卫生间需要有一个浴缸
4.房间做成套房设计,业主比较喜欢双开门的感觉
5.景观阳台需要保留
6.儿子需要一个书房的空间
▎ 方案改造备注
❶利用现浇的外拓空间做半高鞋柜,为兼顾采光。(可以用花格屏风)
❷敲掉原墙,刚好嵌入式鱼缸。(满足业主的需求,风水上寓意好)
❸扩大门厅的门洞空间,使空间更宽敞。
❹洗衣房的门洞从北阳台处进门,避免从门厅开门,解决风水上的问题。
❺餐厅区域和北阳台区域因为58公分的横梁,还是要做区域划分,具体情况要等拿房后到现场决定。
❻满足业主的需求,浴缸放在客卫,客卫做成干湿分区,方便使用。
❼主卧做成套间形式,卧室、衣帽间、卫生间、书房,多功能区域。卧室区域增加吊轨门,空调效果更好,儿子也可以独立使用书房、不受影响。
❽套间的门洞扩大,借用客卫一点空间,完成业主喜欢双开门的想法。
方案二360全景效果图
10.jpg
▲长按识别图中二维码,看360度全景效果图

1 D3 t. r$ ^' r6 K6 E  a: y6 U; b
▼方案三研发设计师
11.jpg
Designer ▎葛 军

8 E3 a  _* p& l) P' e
▎本案设计理念

以“人”为出发点

创造适合人居的生活空间

▼本案功能布局三

12.jpg

▎ 业主定制背景4 q) z1 Z7 L; g% _
该房子主要是买给父母养老的,业主一般周末回来,小孩一岁多,需要两个洗衣机,单独洗宝宝的衣服。风格定位为传统的美式风格。设计方面需要考虑的周全一些,既要适合老人的居住习惯,又要考虑到业主周末回来居住时的舒适性,以及可以更人性化的照顾好小宝宝。
▎ 方案改造备注
❶利用现浇的外拓空间,做成洗衣房,放置两台洗衣机+洗衣机伴侣,顶面做电动晾衣架(具有烘干和紫外线消毒功能的晾衣架。)鞋柜处的原排水管直接切除,杜绝以后漏水的隐患,另外两个排水管用砖砌起来。洗衣机的开门,用玻璃材质,增加采光功能。
❷利用原墙体和窗户区域做成酒柜,中间承重墙区域用镜面处理(详见效果图)
❸把餐厅阳台处横梁加宽和酒柜镜面(承重墙)结合一体装饰,弱化横梁过低的视觉感受。

" e& m. T. Z, @% V: m8 J0 F
❹敲掉原墙,扩大门洞空间,改动配电箱的位置。总线长度够的情况下,改到旁边墙面,如果总线长度不够,1.全部换线(拿房后根据现场情况决定,会增加一定的成本)2.不换线的情况下,做成明盒放在旁边的衣柜立面。
▼餐厅效果图
13.jpg
▼餐客厅效果图
14.jpg
方案三360全景效果图
15.jpg
▲长按识别图中二维码,看360度全景效果图
: Z7 ^$ z* n+ x4 @7 D. W
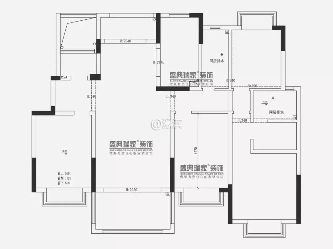
▼本案功能布局四
16.jpg
08.gif
▎下期推广预告
✦No.3 高层121m2多种方案深度解析
✦No.4【洋房业主关注的9大问题】解密
9 t5 y- i( u: x' W; I# W2 ^+ S
▎2期解析会预告
✦华强城四期设计服务定制月】——高层158m2/140m2/103m2深度解析会
) h4 L6 o/ E: e$ {( H4 v1 A% |5 Z
▎互动方式
华强城四期业主【免费定制自家户型设计方案/免费预约验房】预约联系:
杨杨【微信号:153-7062-3529】
花花【微信号:151-9086-7028】
葛烨【微信号:153-5872-3875】
小葱【微信号:158-6270-6528】
8 M/ J: V5 d6 w9 O* J( Y' Q
✦特别提醒:
▼参与定制获取自家户型设计方案
17.jpg
或直接点击下面链接参与定制。
https://www.wjx.top/m/26486506.aspx

) E/ x' C0 t- g

4 ^$ E# M8 D. S) W* l- e7 Q
" q  S1 M+ p/ D2 J6 y0 ]
- v1 l8 d+ a5 W: {: E0 X) I
南通0
您需要登录后才可以回帖 登录 | 注册

本版积分规则

手机版|无图版|站务联系 | 商务合作 | 平台公约

信息产业部备案:苏ICP备05014191号-1 经营性ICP许可证:苏B2-20110445 苏公网安备 32060202000307号 © 2001-2019 0513.org All Right Reserved.

投诉争议 技术支持:第一互联 GMT+8, 2025-12-25 22:50 , Processed in 0.185548 second(s), 12 queries , MemCache On. 站点统计

快速回复 返回顶部 返回列表