濠滨论坛

点击扫描二维码

查看: 9581|回复: 0

No.2【华强城四期设计定制服务月】——158m2洋房4大方案深度解析

[复制链接]

该用户从未签到

发表于 2018-8-3 10:46 | 显示全部楼层 |阅读模式 来自:江苏
: b# `$ f/ }- q9 c( u5 s2 n* k* z3 W; [: f2 v, c( p

本期分享 ▎ 158m2洋房方案锦集

) \! Q8 e/ b: v5 k* V
01.jpg ' P1 k+ f% s& P; P4 {- `5 |5 ]
, Z; K/ J0 }# X4 O( o9 s1 a6 E
▼方案一研发设计师6 E: r" D+ `2 Q% |7 r, b2 \
01.jpg
& K* Y, D+ J! @
0 a3 S  Z3 P, _
Designer ▎储星星

; h' `, m, p* s# h% e7 b
▎本案设计理念
设计改变生活
细节决定品质
. X! R% v. I& z1 P) Y8 E
▼本案原始图
02.jpg

7 i: ^2 O; ~" n▼本案功能布局一
  t$ O+ w+ W" d0 ^1 s1 f: s 03.jpg
* Q$ T. V: }8 w- D! N. n5 ~2 a

- ^& U  I  b) @: S( g
▎ 方案改造备注
❶门厅玄关作为通道连接的枢纽空间,衔接到客餐厅、过道,所以门厅的设计至关重要。将原墙拆除,用玻璃等通透材质作为玄关背景,更加通透。
❷现浇外拓的空间部分作为西厨来使用(早餐、冷餐、烧水、洗水果等)都可以在这个区域完成
❸利用北阳台的空间,把餐厅区域增加吧台配合西厨,整个空间更融会贯通,互动更好。顶上过低的横梁也可以作为餐厅吧台区间划分的节点,视觉效果更和谐。
❹利用原来墙体做成背靠背的衣帽柜,房间增加收纳功能,过道的柜子可以做成装饰柜做过道背景。
❺原卫生间偏小,东移30公分,扩大客卫空间,做成干湿分离,更方便使用。(细节处理:干湿分离可用半通透材质隔墙,增加采光)
❻套间设计:拆除规划在套间里的所有墙体,1.增加主卧空间。2.扩大卫生间空间。3.过道变宽。4.书房和衣帽间兼并使用。这样的套间设计更舒适和谐。
% l' C- n7 |( ^2 H$ ~) t8 B
▎ 细节处理
✦1.客厅较宽,电视背景墙两边加宽(可用石材、柜子、等材质)与餐厅的柱子保持平行,避免餐厅柱子的角对着客厅,客餐厅后期在立面上通过材质的修饰,风格上更美观协调。
✦2.沙发背景增加通透材质的隔断,和厨房的角平行,避免了厨房的角正对着客厅。
✦3.餐厅北阳台排污管的处理
利用窗帘盒的厚度把下水管包挡起来,后期窗帘盒两边做立面的延伸,通过木饰面作为装饰,在保持美观的同时把水管隐藏起来
$ ~& O4 n: r2 ~6 E
▼餐厅参考图片
04.jpg * b. a# i; }% F2 s+ N6 ]$ ^

4 k9 R* i. `2 U  P+ O 05.jpg 2 C+ Z7 ]6 M( }- I  L
▼客厅参考图片7 g, ^6 I% g( _! Y; y- \2 ^& D
06.jpg
5 R( x( u# P. o▼卫生间参考图片
( G3 R- k, X" x  z4 j9 c9 o" K  b4 k 07.jpg
) P6 {  \8 d4 p) d
( L, L5 a) f# C▼方案二研发设计师
6 t+ F6 p3 {8 V  _' m  q 08.jpg
- ]1 p* _! U; b. B+ I$ o: ?
/ \. D3 t4 L" W3 Y0 i. B) B# e4 v( G+ f6 s( H
Designer ▎许芳丽
5 X, m) C- Y9 v& F
▎本案设计理念
从客户需求出发
为客户量身定制方案
7 F6 E+ H  _& t2 n& b
▼本案功能布局二+ s. T( a5 D& c  G
09.jpg % c; l% W. h2 c( K, g
▎ 业主定制需求
1.常住人口3个人,喜欢新中式风格
2.业主有养鱼的习惯,家里需要一个放鱼缸的区域
3.儿子喜欢泡澡,卫生间需要有一个浴缸
4.房间做成套房设计,业主比较喜欢双开门的感觉
5.景观阳台需要保留
6.儿子需要一个书房的空间
; D/ \4 D" _/ c: Z- F0 b8 `2 Q4 w
▎ 方案改造备注
❶利用现浇的外拓空间做半高鞋柜,为兼顾采光。(可以用花格屏风)
❷敲掉原墙,刚好嵌入式鱼缸。(满足业主的需求,风水上寓意好)
❸扩大门厅的门洞空间,使空间更宽敞。
❹洗衣房的门洞从北阳台处进门,避免从门厅开门,解决风水上的问题。
❺餐厅区域和北阳台区域因为58公分的横梁,还是要做区域划分,具体情况要等拿房后到现场决定。
❻满足业主的需求,浴缸放在客卫,客卫做成干湿分区,方便使用。
❼主卧做成套间形式,卧室、衣帽间、卫生间、书房,多功能区域。卧室区域增加吊轨门,空调效果更好,儿子也可以独立使用书房、不受影响。
❽套间的门洞扩大,借用客卫一点空间,完成业主喜欢双开门的想法。

6 ~3 t0 H7 l/ F4 Y' Z9 I5 a* m
' `/ ]0 H: F2 P4 G% K1 u方案二360全景效果图
6 i) E! d  m# f2 x9 Z 10.jpg
6 Y1 [" [, j% b% a& I▲长按识别图中二维码,看360度全景效果图
1 H$ y' n" r& n4 k& H) x3 {+ R9 Q' @% f* v
8 j  c9 e5 Y9 Z
▼方案三研发设计师/ n- c/ @/ A1 t6 L3 y
11.jpg
2 P2 q: e) n2 F/ A4 M6 H
Designer ▎葛 军

+ X! b( u3 j& R
▎本案设计理念

以“人”为出发点

创造适合人居的生活空间

! V, G; V4 m0 l, }% S( C

▼本案功能布局三

12.jpg

▎ 业主定制背景( ~$ c! d5 y; o
该房子主要是买给父母养老的,业主一般周末回来,小孩一岁多,需要两个洗衣机,单独洗宝宝的衣服。风格定位为传统的美式风格。设计方面需要考虑的周全一些,既要适合老人的居住习惯,又要考虑到业主周末回来居住时的舒适性,以及可以更人性化的照顾好小宝宝。
▎ 方案改造备注
❶利用现浇的外拓空间,做成洗衣房,放置两台洗衣机+洗衣机伴侣,顶面做电动晾衣架(具有烘干和紫外线消毒功能的晾衣架。)鞋柜处的原排水管直接切除,杜绝以后漏水的隐患,另外两个排水管用砖砌起来。洗衣机的开门,用玻璃材质,增加采光功能。
❷利用原墙体和窗户区域做成酒柜,中间承重墙区域用镜面处理(详见效果图)
❸把餐厅阳台处横梁加宽和酒柜镜面(承重墙)结合一体装饰,弱化横梁过低的视觉感受。
❹敲掉原墙,扩大门洞空间,改动配电箱的位置。总线长度够的情况下,改到旁边墙面,如果总线长度不够,1.全部换线(拿房后根据现场情况决定,会增加一定的成本)2.不换线的情况下,做成明盒放在旁边的衣柜立面。
▼餐厅效果图
13.jpg
▼餐客厅效果
14.jpg

方案三360全景效果图

15.jpg


2 Z/ [- H* M* d/ h8 Q. v# \/ W$ G: i
▲长按识别图中二维码,看360度全景效果图
& T5 e6 Y$ P% v2 ~* y4 Y
/ H1 v2 }  }2 C% O) T! H! ^$ @
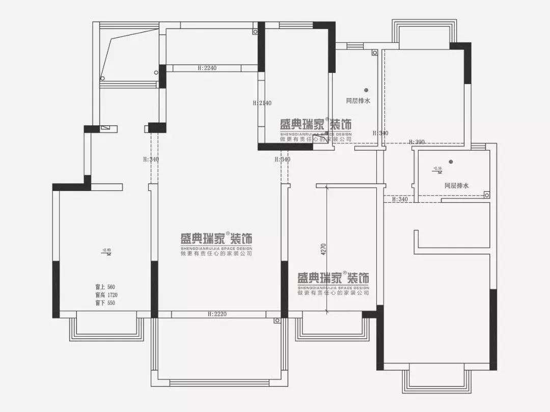
▼本案功能布局四

16.jpg

08.gif

▎下期推广预告

✦No.3 高层121m2多种方案深度解析
✦No.4【洋房业主关注的9大问题】解密
▎2期解析会预告
✦华强城四期设计服务定制月】——高层158m2/140m2/103m2深度解析会

( R, h0 i' t0 N
▎互动方式
华强城四期业主【免费定制自家户型设计方案/免费预约验房】预约联系:
杨杨【微信号:153-7062-3569】
花花【微信号:151-9086-7028】
葛烨【微信号:153-5872-3875】
小葱【微信号:158-6270-6528】
% w6 ^* i4 e- S6 q, R- ?5 ]

2 _/ `  }5 Z: i  b! e  e- A0 h# c/ n- a0 {. V* c
* `4 @9 o& m3 Z; J' W7 s/ E/ K

" f5 u$ e+ }  Y! \
0 }4 W5 }8 B2 t/ \' S  K8 j1 l
0 j( i6 l: C( K& c! t/ x; E
南通0
您需要登录后才可以回帖 登录 | 注册

本版积分规则

手机版|无图版|站务联系 | 商务合作 | 平台公约

信息产业部备案:苏ICP备05014191号-1 经营性ICP许可证:苏B2-20110445 苏公网安备 32060202000307号 © 2001-2019 0513.org All Right Reserved.

投诉争议 技术支持:第一互联 GMT+8, 2025-12-25 21:05 , Processed in 0.190258 second(s), 11 queries , MemCache On. 站点统计

快速回复 返回顶部 返回列表