濠滨论坛

点击扫描二维码

查看: 6342|回复: 0

【轻舟装饰】湖滨华庭157m2 | 欧式风格,舒适闲情

[复制链接]

该用户从未签到

发表于 2018-7-11 15:48 | 显示全部楼层 |阅读模式 来自:江苏
- D9 t& M6 [9 w  b6 k1 x& A$ }( I* d9 S
作品档案
楼盘地址:湖滨华庭
楼盘楼号:9-04户型
建筑面积:157m2
装修风格:欧式
计 师:陆华
设计背景
客户背景:业主这套房是买给父母住的,偶尔会过来陪伴一下父母,希望父母在这个空间里有一个舒适闲情的生活。
选择的理由:客户第一次来公司,简单聊了一下该户型的方案,把几个关键的调整和客户做了详细的沟通,然后给客户看了一下自己的往年案例,客户觉得不错,就把设计定下了。

- J( ^2 E3 Y+ b) f6 p0 y
设计需求
注重厨房设计
卧室保留三个,北侧的卧室需考虑观光。
③ :储藏空间要多,考虑到生活细节问题,储藏量要充足。

" _3 I% [2 e/ c& D5 \& O
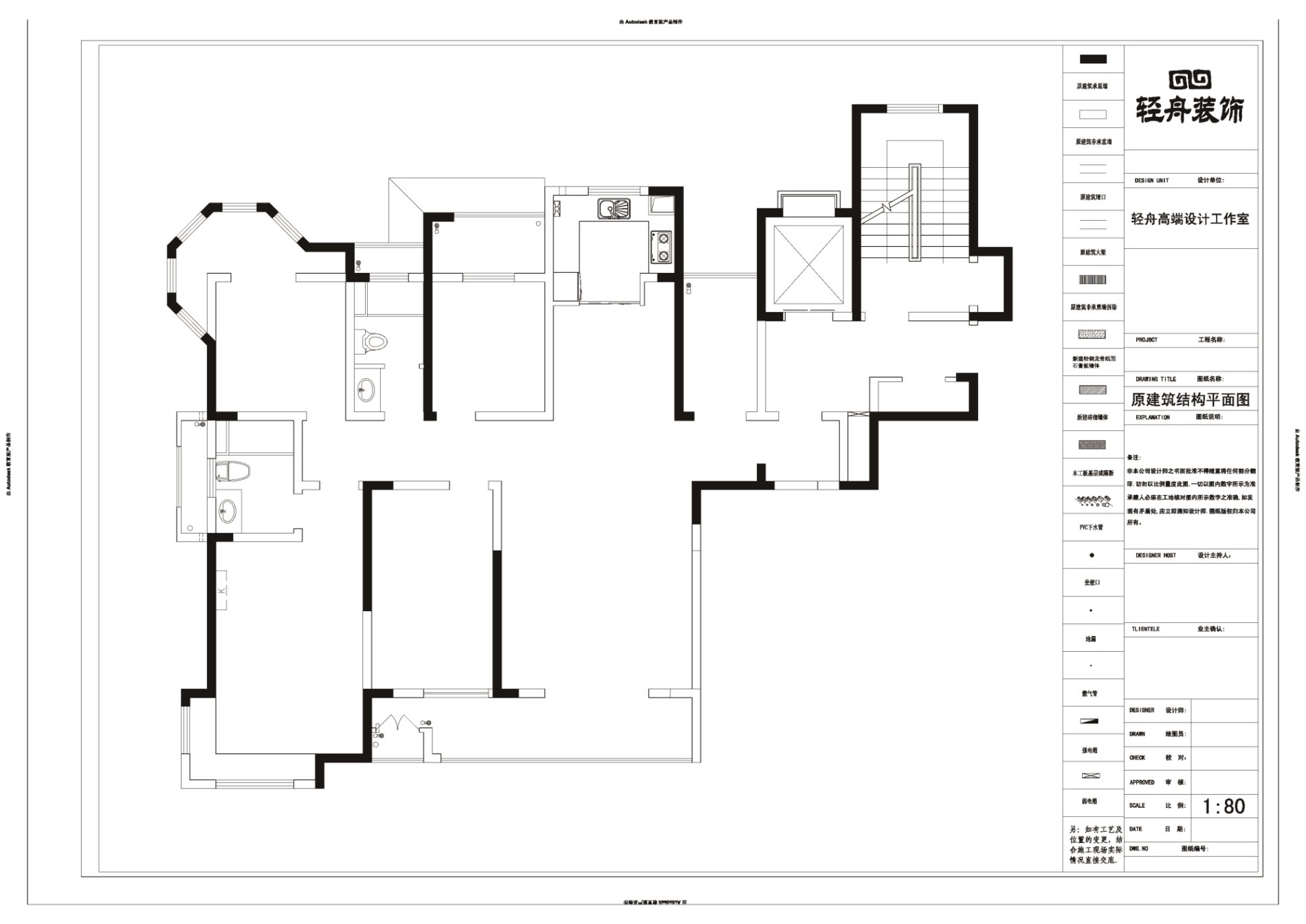
原始户型图
湖滨华庭前置9#原始框架-Model_副本.jpg
户型分析
厨房和餐厅的位置比例不协调
进门的空间特别小,不想浪费。

+ ~. ^  u3 b5 z5 H. {5 t8 t
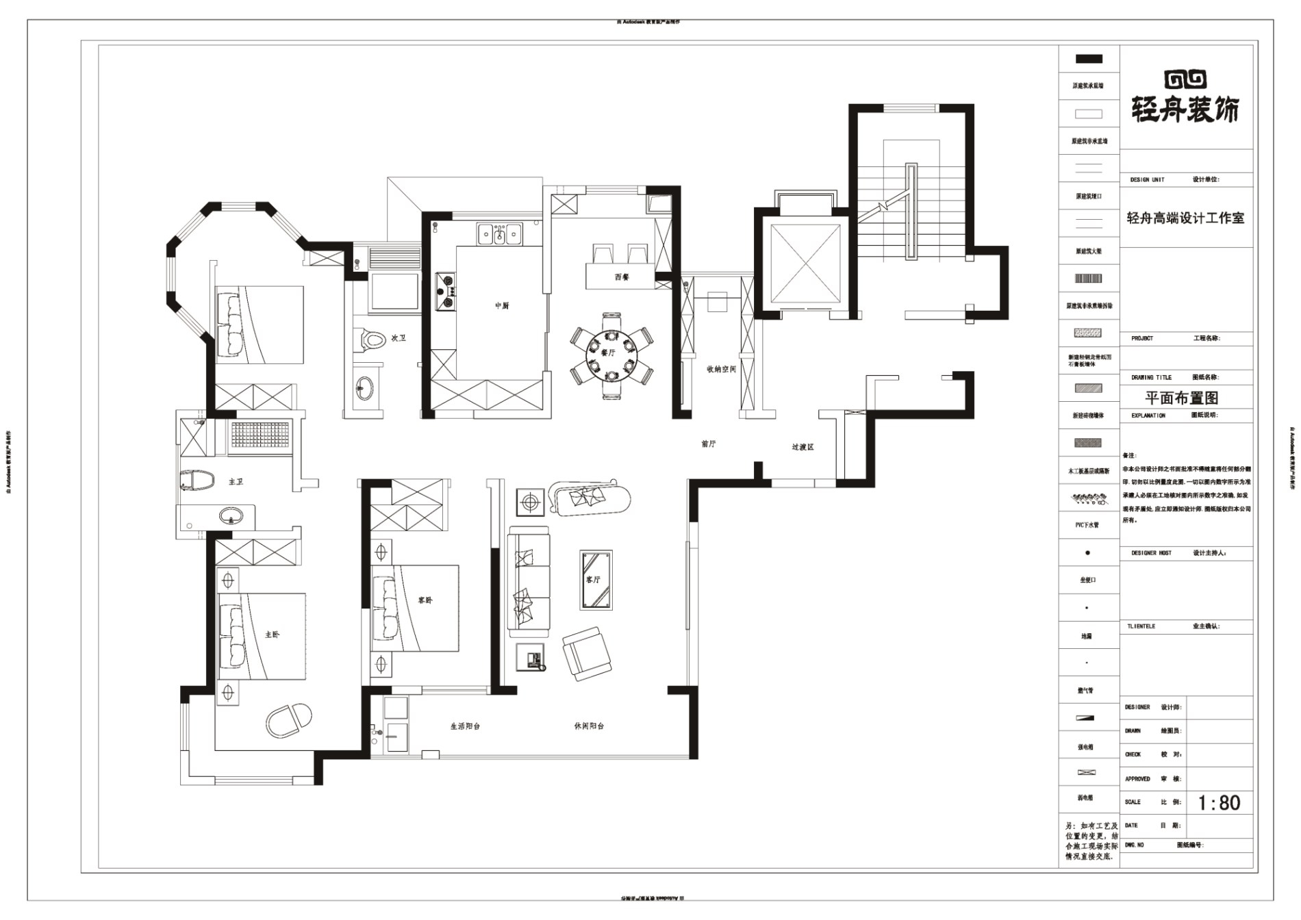
平面布局

3 f9 l$ `! v: B' y' ?
湖滨华庭前置9#平面布置-Model_副本.jpg
改造备注
进门考虑采光,不做门,做了收纳和换鞋区
将原有的厨房改到西侧卧室区,厨房的位置多出一个西厨的位置,让餐厅、客厅和西厨在一个南北通透的空间,使得空间更加的宽敞,明亮。
北侧卧室利用一个柜体的距离隔出一个小的观光阳台,满足了卧室和观光的功能。

# Q7 S- f" A" R4 Z' a# R2 y
效果图
卫生间_副本.jpg
主卧2_副本.jpg
主卧_副本.jpg

  v! z: e1 G2 F
互动方式
北京轻舟装饰有限公司(南通线下体验馆)
轻舟装饰官网:http://www.ntqzzs,cп/
装修咨询电话南通专线:0513-85335628 、13862964423(微信/手机号)
南通地址:南通市崇川区中江国际广场B座4栋3楼
通州地址:江苏省南通市通州区珠江路与西湖东路交汇口向南100米左右

; l4 }5 |* `5 A, w6 R1 S/ L
( K  a6 `' I6 E' M7 v+ s0 L1 i
南通0
您需要登录后才可以回帖 登录 | 注册

本版积分规则

手机版|无图版|站务联系 | 商务合作 | 平台公约

信息产业部备案:苏ICP备05014191号-1 经营性ICP许可证:苏B2-20110445 苏公网安备 32060202000307号 © 2001-2019 0513.org All Right Reserved.

投诉争议 技术支持:第一互联 GMT+8, 2025-12-25 15:41 , Processed in 0.139949 second(s), 14 queries , MemCache On. 站点统计

快速回复 返回顶部 返回列表