濠滨论坛

点击扫描二维码

查看: 3843|回复: 0

南通别业| 320㎡混搭风格,案例分享

[复制链接]

该用户从未签到

发表于 2018-7-11 09:34 | 显示全部楼层 |阅读模式 来自:江苏
4 o7 E+ ~) s; O0 f3 T- k8 K
9 l4 C, R, I, Q, d" K
▋  案例档案
项目名称:南通别业别墅
项目面积:320㎡
设计师:戴新风
风格:欧美时尚混搭

( q6 M$ z( R$ Q
640.webp.jpg

$ v1 ^- h$ q' K0 ~0 [: D
▋  设计师说
做设计若干年,总会有人问,你擅长什么风格,关于风格其实比较难以界定,现在已没有什么纯粹的东西,现在是融合的时代,是个性张扬、百花齐放的时代,一切的风格都会在前面加个“新”字。对于家装室内设计而言,设计师更多的是为客户创造一种新的生活方式,所有的细节都来源于生活的理解,在设计之前,我与业主进行了一次充分的沟通,让业主畅所欲言,表达自己对设计的想法,沟通的过程很愉快,通过沟通希望给我的业主一个属于自己的设计定制方案,是“自己”的,而不是“别人”的。不人云亦云,不生搬硬套,一切都是那么的自然!

- ~) d: H( q1 }: P& e
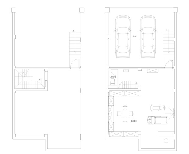
地下室
(车库+健身房+棋牌室+卫生间+休闲吧台)
1.jpg

( J  J& U# Z' D' C8 V
▲地下室原始结构和平面布置

3 m2 ^! r6 E6 ~# f; _& k
一楼
(客厅+餐厅+厨房+卫生间)
) f6 d0 X  h0 S8 {1 l
2.jpg
▲一楼原始结构和平面布置
* v0 s# X% Y1 c  n* l# o: l
二楼
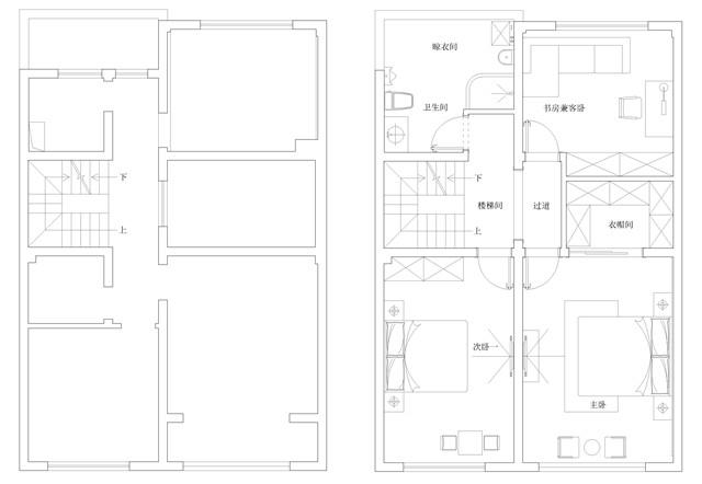
(主卧+衣帽间+次卧一+书房兼客卧+卫生间+晾晒区)- |3 A  v8 N7 ]# v# |
3.jpg
▲二楼原始结构和平面布置
& T- g8 X9 }5 W
三楼
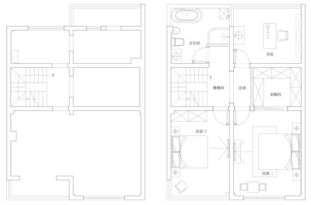
(次卧二+衣帽间+次卧三+书房+卫生间)
7 N# l1 S7 [0 A6 M7 {2 Y* E- {) i% O
4.jpg
▲三楼原始结构和平面布置
' q) i, H+ `9 Z, O& b, b
效果图赏析
009客厅.jpg
▲客厅效果图

) S( O1 i( T& [! R. Q# Z
010餐厅.jpg
▲餐厅效果图

$ Z0 y( I3 l" v0 w
011二楼卧室.jpg
▲二楼卧室效果图

- j5 h) P# w( r8 h7 l
012三楼主卧.jpg
▲三楼主卧效果图

! y* X& @* L  G4 N# ^( x- b
640.webp (2).jpg
640.webp (1).jpg
南通0
您需要登录后才可以回帖 登录 | 注册

本版积分规则

手机版|无图版|站务联系 | 商务合作 | 平台公约

信息产业部备案:苏ICP备05014191号-1 经营性ICP许可证:苏B2-20110445 苏公网安备 32060202000307号 © 2001-2019 0513.org All Right Reserved.

投诉争议 技术支持:第一互联 GMT+8, 2025-12-26 00:37 , Processed in 0.209309 second(s), 13 queries , MemCache On. 站点统计

快速回复 返回顶部 返回列表