濠滨论坛

点击扫描二维码

查看: 58699|回复: 6

【新城新苑●好设计】优雅与纯粹,你最想要的生活方式,都在这里!——水木清华装饰

[复制链接]

该用户从未签到

发表于 2018-7-2 09:15 | 显示全部楼层 |阅读模式 来自:江苏
4 d9 W! V' m5 H, e/ r) C# L

7 N2 l1 g" R' W- v$ V
新城新苑交房在即,预祝各位业主7月拿房大吉!
* X8 `" x7 e3 a4 U新家,从零开始,从设计开始,. f0 s6 U4 L4 d5 u+ E5 [& d/ o
我们提取感性的设计灵感与理性的家居生活方式,
. J! j) _  G# n4 {4 H; I为每一户家庭,印证一生幸福。
( S3 `" h8 F, F0 o- ^2 Y* O6 o2 T4 y小编精选了新城新苑经典户型设计作分享,
" `  A( f+ V& p% j更多的户型设计方案,欢迎联系我们咨询!5 t1 d1 z4 W7 e  G- J
8 `; r: E2 e/ A5 J, z
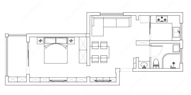
新城新苑小区户型设计解析—57㎡% W& @: p% c8 P
杨铮) n, k2 h$ D% t/ f5 h6 z
主任设计师
+ B% |5 F7 Z6 j从业时间:5年
9 ^7 V: p) O8 C- m擅长风格:现代简约,北欧,新中式,简约美式5 E& A" b# J1 o; c, r+ j. s4 {2 p
经典案例:棕榈湾、湖滨华庭、江海皇都、中交美庐城、世茂公元、景瑞望府……
  o$ |* e( s/ `  A 微信图片_20180702081702.jpg 5 \# t" K7 @7 B

1 m9 f0 d& ^6 }0 p5 N+ U# p 微信图片_20180702081720.jpg 7 {' Y8 F# e6 I7 l! n$ \
▲原始结构图
$ ^/ b/ y! y4 Q$ E9 q$ B+ W4 t8 I' N; I$ W  ]* ]0 b  o
户型分析' w6 Q% ?; E6 [, X6 v: `' R
1、客厅墙体待调整,空间稍零散; c% y9 z/ s5 S/ h
2、开门位置,需合理调整
/ D- X; C' U3 u4 m
微信图片_20180702081902.jpg
▲平面布置图
4 \4 V' X9 U7 w
设计优化解析说4 I. q, f% T8 f9 V/ d; F! Q5 r% l* U
1、把厨房间阳角规避,并扩大门洞1 }3 l) g5 K' X) w
2、卡座式餐厅,合理利用空间% C8 s2 F6 I* e& h) a+ j
微信图片_20180702082034.jpg
▲效果图

2 ]" q. v1 ~# W" v: `' r
新城新苑小区户型设计解析—78㎡0 J7 |% d- _2 r: a. I
陆进斌6 {: N- k  G2 ]$ u! |1 O1 d
设计总监1 D2 I& v( S4 `
从业时间:10年( |; d- l8 D- x
擅长风格:现代、新中式、美式、欧式等
: i- x9 e9 w3 ?9 ~1 s3 m7 x9 M; @经典案例:东郊庄园、顺发御园、中南世纪城、城市嘉苑、英伦上院、南通别业……* j/ a7 d. c7 [- O$ j: ~
微信图片_20180702082244.jpg 5 o! O! `, r3 q5 U8 M- ]" o
7 p5 n! s0 x/ c4 z
微信图片_20180702082248.jpg " F" V3 J4 y1 a/ i6 w
▲原始结构图2 i8 k( u8 E; ~
户型分析
/ B( B6 k! i+ N& M: B( R) G7 v" a1、厨房卫生间空间稍小
' h2 y- b. M, M2、客餐厅空间稍小
8 g& F; n0 j$ \. j+ {1 k9 Q4 J3、两房朝南户型相对方正,采光良好
: H/ a- ^& v) j2 }
微信图片_20180702085127.jpg
▲效果图
# D+ F. O! Q! D+ H/ `% F# o
4 ?* X6 i8 ?3 K3 J% i' Z
新城新苑小区户型设计解析—94㎡
房妍
设计总监
从业时间:10年
擅长风格:北欧、现代、美式等
经典案例:顺发御园、东郊庄园、山水壹号、五洲御景城、颐景苑、锦城苑……
微信图片_20180702085329.jpg
$ O4 U+ J% T2 \2 A9 @
微信图片_20180702085334.jpg
▲原始结构图
0 `8 U+ k* a& i7 F" H; \8 X

$ r3 u* y2 a% J1 `4 O2 _3 ?' ?
户型分析
2 y' k: P6 \+ s8 z7 J( [: W  C1、客餐厅面积过于狭长
  J7 |& j( i4 X9 t2、厨房空间太小,使用不方便
2 \& z- Q- Q' Z! Z: ~' v% I3、卫生间空间充足,使用方便
7 X$ b' X4 x% p0 P6 |$ K, v
微信图片_20180702085718.jpg
▲平面布置图
6 @! K) t& l, ^8 d3 X2 k& f! m
平面布置图

: M7 P& d9 s6 X6 }% y: Y8 {设计优化解析说明
) z% |7 U  v  H4 J: v1、将公共区域做成客餐厅一体空间,利用最大化
1 X- S) `' A9 p- Z7 D2、借用北阳台,将厨房空间北移
- K1 K5 w- O! f2 v8 [$ t3、卫生间功能齐全,便于生活使用
7 }4 E) U: R/ X& v6 I, g
微信图片_20180702085722.jpg
▲效果图

* U* s9 R1 m; O( L  F
新城新苑小区户型设计解析—120㎡
葛笑天
主任设计师
从业时间:5年
擅长风格:
现代中式、现代简约、美式、北欧等
经典案例:军山半岛、吴中豪景华庭、万濠星城、星光域、华润悦景湾……
1 p) m+ `" Q3 z0 N2 z% d7 E
微信图片_20180702090144.jpg

5 x1 G( Q; k: _8 ]# X
微信图片_20180702090147.jpg
▲原始结构图
9 t1 F/ ?# c5 z/ i* g* Y* Y0 d
户型分析3 L; Z, [1 B; L
1、南北通透
/ X0 X: ]1 t- A" ?9 P% K( c2、双阳台的构造使用舒适度高
/ X2 B" Q: W2 m. V. z3、过道尽头是厕所门,影响风水
6 l& G* G; E( y. ?4、进门很容易直接冲灶台,影响风水& a8 N+ Q1 n! c& f+ o  i
微信图片_20180702090152.jpg
▲平面布置图
/ b, @& a$ v! u+ i- F
设计优化解析说明* B" m& b& A( b0 M0 t% K
1、将北房间改为衣帽间,增加家庭储物空间& z$ _5 \+ U5 K
2、将卫生间门难移,解决过道冲厕所门的问题
  C: ?2 }1 g" @, c4 ]5 s( p/ ^! D3、将厨房做成敞开式,使空间利用率更高8 K, U, Q+ K8 O8 p2 Y
微信图片_20180702090155.jpg
▲效果图

' p7 a+ M' c7 ?3 w! ]
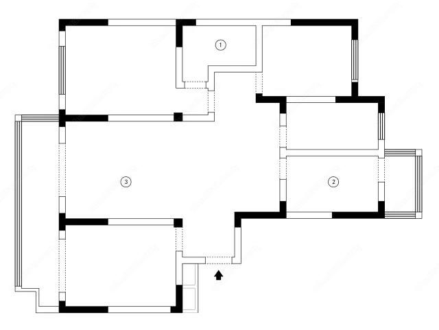
新城新苑小区户型设计解析—124㎡
* t3 S% |+ B; \& A朱兆邦
$ b4 ~- ~; u3 n6 I' e9 ]7 M8 C主任设计师9 P+ `; @! C& B; t
从业时间:6年- r  `* ?& \+ S: T
擅长风格:现代风格、美式风格、新中式等% v& A* r# N- R; m2 v/ {( x
经典案例:万濠星城、城市嘉苑、苏建学府、山水壹号、星光域、万科濠河传奇……
( L' v, L4 W2 B: X0 `3 l 微信图片_20180702090542.jpg # m" }( Y+ X6 t1 h
" y5 K* J; U; `
微信图片_20180702092302.jpg 6 m3 j9 e: c9 h
▲原始结构图

; B, N* d$ A0 [- V
户型分析
1、三房朝南,采光很好
2、布局舒展,动静分区,互不干扰
3、厨房与餐厅东西相连,就餐使用更加便利
4、厨房带北阳台,后期利用空间大
5、客餐厅一体,难以划分空间
6、进门鞋柜位置难确定
微信图片_20180702090548.jpg
▲平面布置图

. b" K( w* w! G& L5 }# ~
设计优化解析说明
1、进门矮柜,可放鞋、储物,同时装饰
2、客餐厅一体,空间感较强,空间利用率高,自由空间更大
3、厨房拆除原来的墙体,做U字型台面,吧台用作早餐
4、保持原有的双阳台,晾衣/休闲娱乐双功能
5、多功能房间,榻榻米增加储物空间
4 c3 R, x* W* g& z4 k2 ~1 r/ h" l
微信图片_20180702090551.jpg
▲效果图
; Z7 q% t, a! Y& L4 o
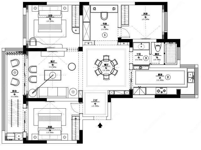
新城新苑小区户型设计解析—139m2
$ _$ ~( T; Q. g/ k4 k3 m1 A# ]唐文胜
& X; p% D- n/ ~3 O主任设计师
' {6 {7 b( O7 D& {, A% a从业时间:8年! Y# E8 D! b( y/ l1 J' ]
擅长风格:现代、美式、新中式等
# J- R6 Z8 p! B+ E+ @经典案例:景瑞御府、世伦名郡、万濠世家、印象公馆、星光域、万濠星城……
; Y1 Y1 q6 U+ P/ O6 G 微信图片_20180702090943.jpg
2 }8 B: ]0 R. `6 \, z: \& I
9 z7 w. a0 |1 k0 Q3 N1 T7 s 微信图片_20180702091915.jpg
& n8 e9 @5 E4 Q! \9 u▲原始结构图
* g  g' G: @, l: F4 q, u
户型分析
1、主卫空间稍小
2、厨房空间稍小
3、两房朝南客厅朝南,双阳台,光线充足
$ q# }$ Y- g  l1 Q& N
微信图片_20180702090949.jpg
▲平面布置图' e/ u: B/ x) v/ e
设计优化解析说明
1、讲北阳台扩进厨房,充分利用空间
2、卫生间干湿分离,解决多人同时使用的尴尬的问题
3、将主卫改成开放式书房,餐厅做对景装饰,空间更有设计感

5 N# @6 z: h. h' W# o* V
微信图片_20180702090953.jpg
▲效果图

3 s/ X. O" R6 o7 c) u 微信图片_20180702091105.jpg
+ ^' {0 X! G2 N# d- `% ]
" e7 L& u$ t  z  S" a关于我们) ^! |7 [" e: H4 _( {
——水木清华装饰  ▎遇见就不要错过——) x, \3 @; J2 s
专业家装十五年) v' j% j" J7 ^+ k3 Y
学装修知识,避免装修陷阱
6 `& g9 Q; T* z$ Z$ Z6 [欣赏精致装修案例,
2 c& |: r8 A, q1 I/ L$ S就来水木清华!
* V2 P' g+ A7 \9 m3 E最受消费者喜爱的家庭装修平台6 p% p- H7 ~* }6 o" S
免费验房、量房、设计、报价
* O, ]! w& e4 X" C放心装修,专业监理保质量!+ q+ G9 o( r4 ^- I( O
+ H: z# G$ {. B: r! S
微信图片_20180702091310.jpg

9 ]% j# r: e+ n' u1 g' ^- x( H" z总部:南通星光耀广场17B-12楼! M! L' E! l& W4 m6 v
咨询电话:0513-80989666$ U( s) v; r& C* _: j
分部:南通华强城创立方6楼
1 C$ v4 c' A+ X6 Y咨询电话:0513-66699555
, J, }" q. @- d- f' {9 W* b6 N0 V) Z
" d' h0 G; F7 S3 q9 s1 @5 ~ 微信图片_20180702091421.jpg
2 H3 l: Z" N: q 微信图片_20180702091424.jpg
) p! i& z) o- ?% c' f" [+ ~
南通0
匿名
发表于 2018-7-2 09:30 | 显示全部楼层 来自:江苏
提示: 作者被禁止或删除 内容自动屏蔽
回复 支持 反对

使用道具 举报

匿名
发表于 2018-7-2 09:31 | 显示全部楼层 来自:江苏
提示: 作者被禁止或删除 内容自动屏蔽
回复 支持 反对

使用道具 举报

匿名
发表于 2018-7-2 09:47 | 显示全部楼层 来自:江苏
提示: 作者被禁止或删除 内容自动屏蔽
回复 支持 反对

使用道具 举报

匿名
发表于 2018-7-2 09:48 | 显示全部楼层 来自:江苏
提示: 作者被禁止或删除 内容自动屏蔽
回复 支持 反对

使用道具 举报

该用户从未签到

发表于 2018-7-4 09:46 | 显示全部楼层 来自:江苏
看到熟人了哈。
回复 支持 反对

使用道具 举报

匿名
发表于 2018-7-4 11:04 | 显示全部楼层 来自:江苏
提示: 作者被禁止或删除 内容自动屏蔽
回复 支持 反对

使用道具 举报

您需要登录后才可以回帖 登录 | 注册

本版积分规则

手机版|无图版|站务联系 | 商务合作 | 平台公约

信息产业部备案:苏ICP备05014191号-1 经营性ICP许可证:苏B2-20110445 苏公网安备 32060202000307号 © 2001-2019 0513.org All Right Reserved.

投诉争议 技术支持:第一互联 GMT+8, 2025-12-26 00:38 , Processed in 0.269374 second(s), 19 queries , MemCache On. 站点统计

快速回复 返回顶部 返回列表