濠滨论坛

点击扫描二维码

查看: 3979|回复: 0

【轻舟装饰】东升花园 | 小美式风格案例

[复制链接]

该用户从未签到

发表于 2018-7-1 10:12 | 显示全部楼层 |阅读模式 来自:江苏
作品档案
楼盘地址:东升花园
楼盘楼号:801
建筑面积:147.4
装修风格:小美式
计 师:孙滢
设计背景
客户背景:男主人是口腔医生,女主人是银行工作人员,比较倾向于小美式风格,自由而不失情调。房子是二手房,自己找工人敲墙,然后找装修公司设计。客户多次来公司,了解了施工工艺,并参与公司活动抽奖。在设计方面有自己的主见,对我们的方案及效果图很满意。
设计需求
墙面、地面、家具大都以浅色为主,部分家具及门窗为深色形成对比。
② :房子平时一家四口住,夫妻俩、老人和在上小学的儿子,
③ :女主人喜欢清新、自然的小美式风格,家具和配饰上随意、自然,充满个性化。
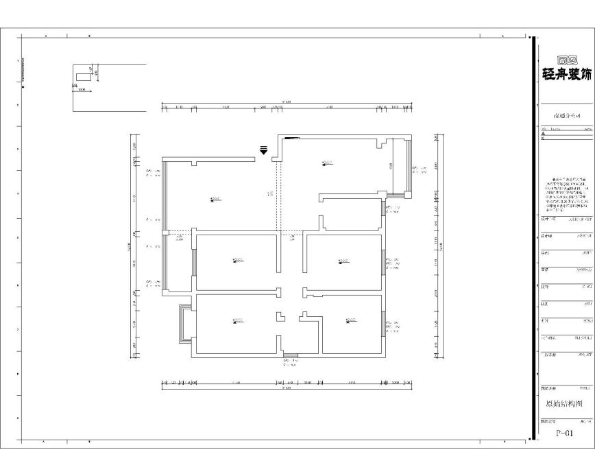
原始户型图(附带图1
图片1.png
户型分析(照户型图说话)
① 客厅太小,且没有门厅
② 厨房和餐厅均很大  
③ 阳台很通透,视野很开阔
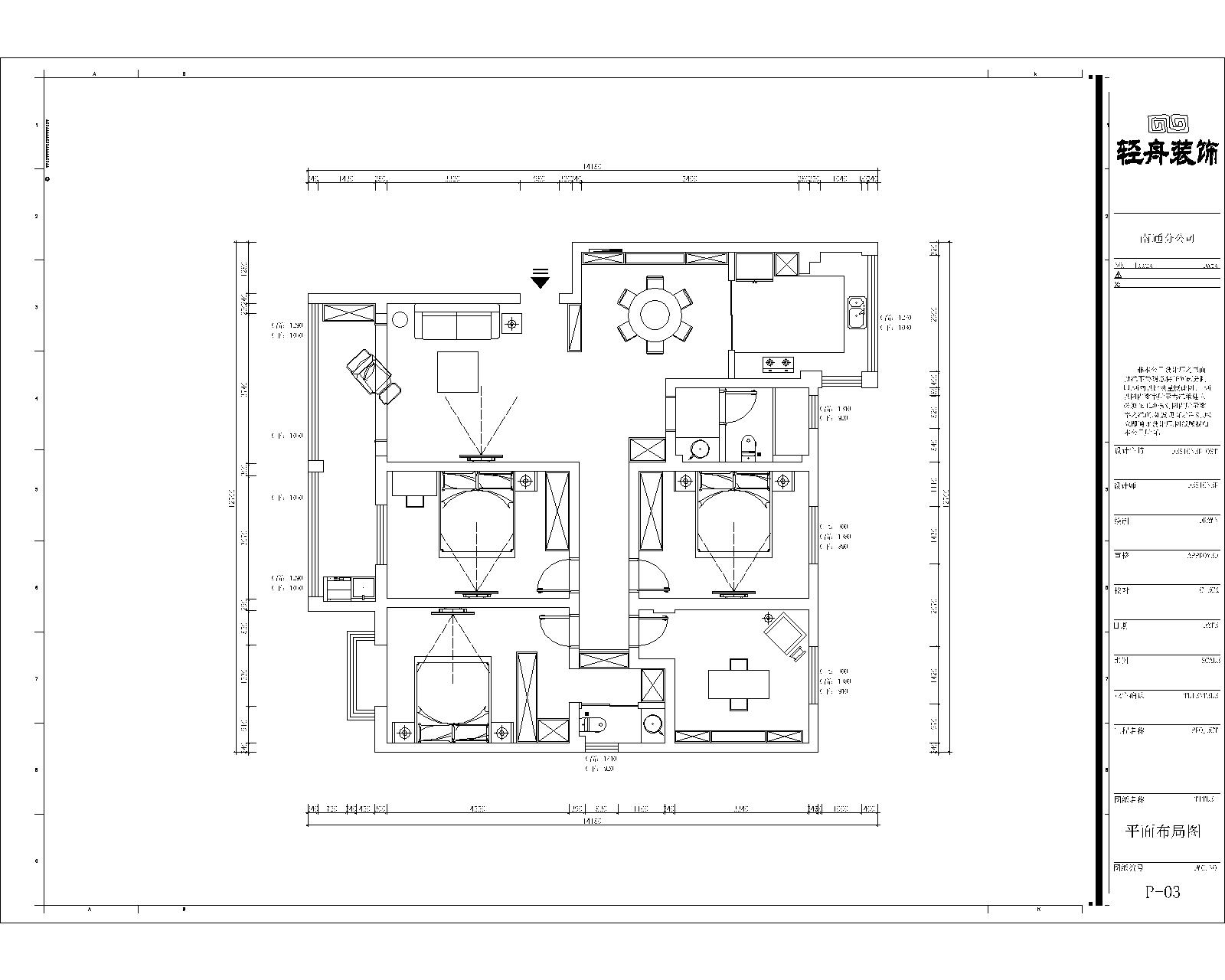
平面布局图(附带图2
图片2.png
改造备注(照方案图说话)
① 公共卫生间外面的拐角位置做一个储物柜,
② 主卧卫生间改为衣帽间,里面只保留台盆和坐便器
③ :厨房与餐厅中间加移门,使空间划分明确,还确保厨房油烟不会外冒
效果图(附带图三)
东升花园1_副本.jpg

, N# ?' {, c! }- R
东升花园2_副本.jpg
设计亮点
如:本方案的亮点
小美式风格,单纯自然  、充满个性化,整体有一种休闲式的浪漫氛围。餐厅的设计整体而优雅。没有雕花、弧形等装饰,采用直线、纯色等元素,小到一个壁灯都很准确的存在于每一个位置。硬装部分简单,重点在后期的软装搭配上,有文化感、有贵气感、有情调感。
1 I% @. |0 [/ ?
▎ 设计师简介
图片3.png

  |7 o5 s3 H. c& q0 `
▎ 互动方式
看自家户型设计方案,看更多设计案例,添加小编微信即可,需备注【家在哪里】
轻舟装饰(客服)热线:0513-85335628
地址:南通市崇川区通甲路6号中江国际4幢B座3楼
通州区珠江路与西湖东路交汇口向南100米
轻舟公众号.jpg

9 ?5 @, ^% [! f/ r3 E& v南通0
您需要登录后才可以回帖 登录 | 注册

本版积分规则

手机版|无图版|站务联系 | 商务合作 | 平台公约

信息产业部备案:苏ICP备05014191号-1 经营性ICP许可证:苏B2-20110445 苏公网安备 32060202000307号 © 2001-2019 0513.org All Right Reserved.

投诉争议 技术支持:第一互联 GMT+8, 2025-12-25 15:29 , Processed in 0.195635 second(s), 13 queries , MemCache On. 站点统计

快速回复 返回顶部 返回列表