濠滨论坛

点击扫描二维码

查看: 2480|回复: 0

富尔豪三楼办公室装修案例,年轻人心中理想的“乌托邦”

[复制链接]

该用户从未签到

发表于 2018-6-20 11:20 | 显示全部楼层 |阅读模式 来自:江苏
8 M% T! O! Q/ [
" l$ z/ n6 d3 H3 N
作品档案
楼盘地址:富尔豪三楼
楼盘楼号:富尔豪三楼
建筑面积:600m2
装修风格:新中式
计 师:陆华
9 U. h4 [, Y8 h* H& |! b; A" L
设计背景
客户背景:
年轻有想法的三位合伙人,一心想打造一个通城独具特色的办公空间,在浮躁的城市,留有一片属于他们理想的“乌托邦”,无论是在经营、办公、还是在与友人偶尔的相聚,在这里,因为多了这么一个角落,而能放慢脚步,想一想曾经的路,未来的路......
选择的理由:简单见过两次面,每一次见面都会交流很久,无论是兴趣爱好,还是关于接下来空间的设计理念,都惊人相似,在愉快的洽谈中,业主很快做了合作的决定。

+ }/ I6 N. m" R" t2 M$ A. p3 K$ G$ E
设计需求
新中式
考虑智能系统
③ :需要一个庭院

6 ?2 \) n7 n3 G& X
原始户型图
富尓豪三楼办公室装修最终确定版 原始结构-Model_副本.jpg

, y2 j+ E2 H) B& s0 d/ @! I' X$ X
户型分析(照户型图说话)
空间采光因窗户的原因,不是非常理想
层高高,有相当一部分的原有消防需整改
卫生间的排污在后期布局中有限制
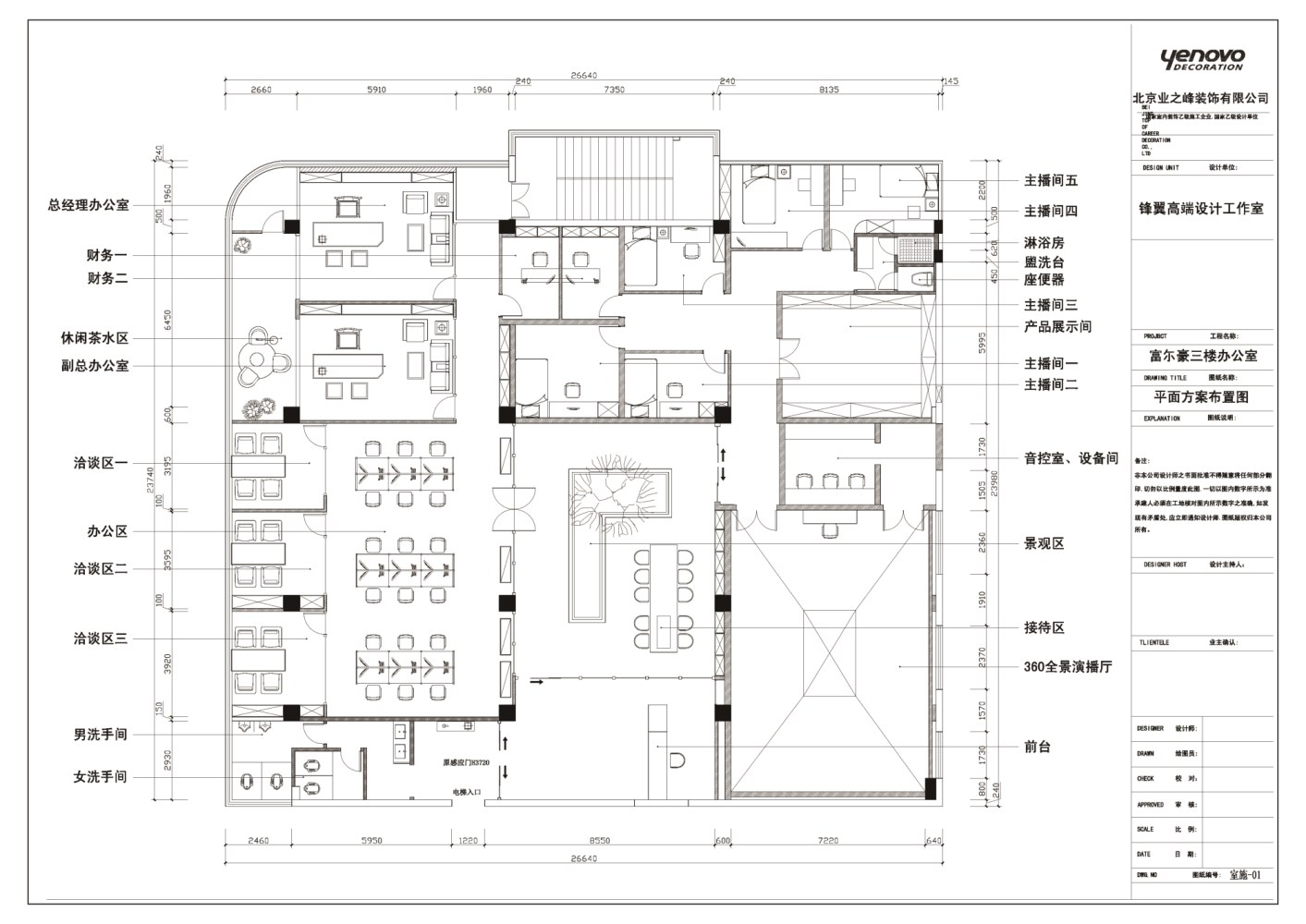
平面布局
富尓豪三楼办公室装修最终确定版-Model_副本.jpg
改造备注(照方案图说话)
利用大量的光源,结合智能系统,有效解决屋内采光问题,并根据不同场景的灯管变化,使空间多了一点场景的交互,不在单一。
中庭的造景,将户外引入室内,体现了内建筑的理念,让本身内敛的建筑,从视觉上多了一些空间的衍生,让环境与人相互影响,多一些人文的关爱。
$ W# w, d- i% y& O
效果图
接待区_副本.jpg

$ w; y4 H& S  K5 ~; q
前台_副本.jpg

5 l5 [2 P9 k- A2 L$ P: d" \4 D. }
办公室_副本.jpg
       地址:南通市崇川区中江国际广场B座4栋3楼
                  南通市通州区珠江路与西湖东路交汇口向南100米左右(通州店)

微信图片_20180620103856_副本.jpg

8 c0 V" e! e5 x) h" q南通0
您需要登录后才可以回帖 登录 | 注册

本版积分规则

手机版|无图版|站务联系 | 商务合作 | 平台公约

信息产业部备案:苏ICP备05014191号-1 经营性ICP许可证:苏B2-20110445 苏公网安备 32060202000307号 © 2001-2019 0513.org All Right Reserved.

投诉争议 技术支持:第一互联 GMT+8, 2025-12-26 00:38 , Processed in 0.187230 second(s), 13 queries , MemCache On. 站点统计

快速回复 返回顶部 返回列表