濠滨论坛

点击扫描二维码

查看: 3021|回复: 1

好来居♦2018工地日记♦姚熔『紫东南苑12-04』130㎡(瓦工砌墙)

[复制链接]

该用户从未签到

发表于 2018-6-2 15:40 | 显示全部楼层 |阅读模式 来自:江苏
. C9 t1 [2 I; o4 G% W
" p; Y7 b. m/ I0 h. D  [0 L2 T
微信图片_20180602141225.jpg
! p1 y  [; f: `. b0 F. I
【楼盘名称】:紫东南苑12-045 U) Y3 e' X- E+ P9 t6 ^% h. }
【建筑面积】:130㎡5 `: ?# |1 Y: S+ H# T. L
【装修方式】:半包
7 [1 D* t6 ?8 @7 ]5 @4 G  @【设计风格】:现代风格8 A1 J+ e" r3 H, X+ ^- B  J
【设计师】:姚熔
+ G! `$ a- t5 C) V: E# E0 @【项目经理】:姚海兵
7 @$ L( Z" k/ f【开工日期】:2018年6月2日
+ `  Z1 \7 A; h  v0 l【施工单位】:好来居装饰红宝石国际设计中心
8 f  R  z0 A% M5 [3 u5 X+ E

2 W" X" P2 I& X) Q5 q
微信图片_20180602141226.jpg

- u7 \# P' @  [4 u" {# L
微信图片_201806021412251.jpg

# }' s* ~& a4 t( W
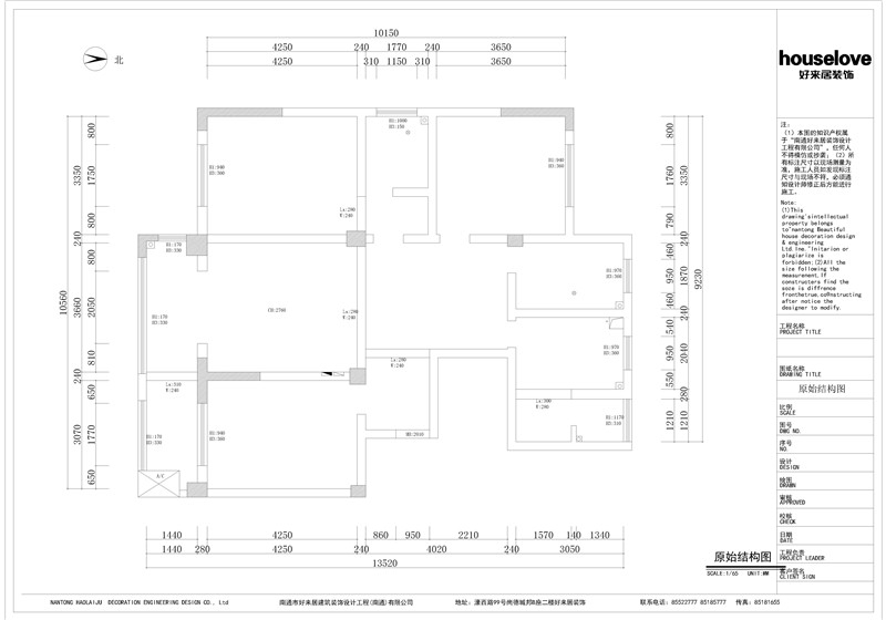
原始结构图:
. h7 P. \5 T1 f- v; f
微信图片_20180601165723.jpg
( q% D8 C2 K; j
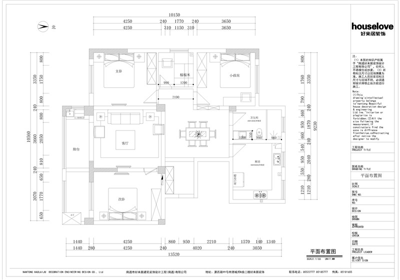
平面布置图:

$ m" J/ g. b( Q- _" |
微信图片_201806011657231.jpg
2 r( {: i4 X) D  V9 m) S) c1 W& Y' o( ^
南通0

该用户从未签到

 楼主| 发表于 2018-6-9 15:40 | 显示全部楼层 来自:江苏

RE: 好来居♦2018工地日记♦姚熔『紫东南苑12-04』130㎡(瓦工砌墙)

形象保护:
8 ?3 W# y0 A' O2 \ 01.jpg
3 q0 F# l9 I# t8 i4 t( J
. \. A' t' Z5 J+ L2 O& Z* B9 D8 Q 02.jpg
- S6 j+ L% I; T$ p
& o5 p$ E  m1 G# Z瓦工砌墙:; @) A" z8 k# Z8 g$ F6 |

0 g* F* G# K8 m 01.jpg
. P8 b/ r" u3 Y# V- ~/ v* j4 G4 @0 g/ U: ^: A
02.jpg
$ y3 w( K: p( F* p( J' B; A4 F1 X0 U7 m# c- n5 J1 q1 f$ ~$ Q5 z
03.jpg
  _# B! u/ u* w+ o3 k& Y9 w: {3 a/ ?+ v$ ]: E; h
04.jpg 8 u$ U, K5 F/ q9 g& O3 D* {
回复 支持 反对

使用道具 举报

您需要登录后才可以回帖 登录 | 注册

本版积分规则

手机版|无图版|站务联系 | 商务合作 | 平台公约

信息产业部备案:苏ICP备05014191号-1 经营性ICP许可证:苏B2-20110445 苏公网安备 32060202000307号 © 2001-2019 0513.org All Right Reserved.

投诉争议 技术支持:第一互联 GMT+8, 2025-12-25 15:41 , Processed in 0.160967 second(s), 13 queries , MemCache On. 站点统计

快速回复 返回顶部 返回列表