濠滨论坛

点击扫描二维码

查看: 5547|回复: 2

好来居♦2018工地日记♦姚康『中南锦尚名苑11-01』150㎡(水电木工验收)

[复制链接]

该用户从未签到

发表于 2018-6-2 15:22 | 显示全部楼层 |阅读模式 来自:江苏
) G* X: J  u; O4 R' Z5 d1 m8 a0 z
0 W% S  Z5 l/ C2 L
微信图片_201806021412267.jpg

% q+ b4 d  f: U% l5 b1 E/ s1 v$ M
【楼盘名称】:中南锦尚名苑11-01
; Z8 V# D& y! z- ?: N【建筑面积】:150㎡' K0 ~. q5 N8 i" ^9 F
【装修方式】:半包$ u9 V% n. d; H( C4 Z
【设计风格】:港式轻奢4 O: k9 K% U" L4 o3 i* l7 Y% n1 C' l9 B
【设计师】:姚康( H, X# K  s6 j4 \1 K
【项目经理】:张先虎3 q/ j3 {/ \/ H' _4 X1 b: i* f
【开工日期】:2018年6月2日
/ v7 i2 `  K7 k; h$ M【施工单位】:好来居装饰红宝石国际设计中心
( ~: n9 b. Z1 {; f
" w0 _/ c. c$ x, ?4 C
微信图片_201806021412268.jpg

) _  ~+ O3 ?; i5 s6 t( R
微信图片_201806021412269.jpg
! I5 f! v5 k/ `5 b. W
原始结构图:

7 d+ [) I( v9 ?' P' m7 ^- a
微信图片_201806011639293.jpg

6 X3 p' Z( U3 ]9 X* i+ a- c+ p1 k
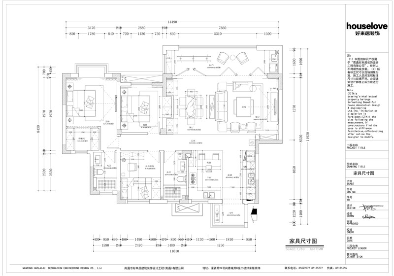
平面布置图:
: C1 n/ G( l6 _( H
微信图片_20180601163929.jpg
: l; x9 W6 D- b; v4 T% K* O$ ^, r
效果图:
# ]5 l1 W! e  l% J7 A! i; W
微信图片_201806011639291.jpg

& `7 \0 ~6 b& _! e7 z
7 j/ t0 o" k0 ~) j& S. ~% k: h
微信图片_201806011639292.jpg

! ^& d- u0 l( O4 m& [1 G1 a0 N南通0

该用户从未签到

 楼主| 发表于 2018-7-30 09:42 | 显示全部楼层 来自:江苏
水电、木工验收:
2 H0 J$ h. t# J7 O1 R, B( e8 Y2 h* W% U

6 F+ h! h  _+ V: ?! o5 A) i/ d1 Y
/ R# F9 ~3 G6 H# k9 v) X" a4 L3 Q6 `( v# d0 l3 S# [' ]' r

1 T- A" S% Q0 `9 a: o/ G7 G) f: ~; ?3 S' a( S+ w2 ^* E
1 T8 R8 z3 v2 L) ?3 D3 c

. l% u5 N$ [% h+ ]) h' m% `
) l* K& [: j" e
回复 支持 反对

使用道具 举报

该用户从未签到

 楼主| 发表于 2018-7-30 09:42 | 显示全部楼层 来自:江苏
水电、木工验收:
, w; N8 G  t- E7 K* q 157496033989505005.jpg
5 E5 t) [0 G9 b& k6 C" P3 \& j; V
: E# Z; Y6 G7 q8 t4 M; C; n 316353284963897959.jpg
8 r4 {; Z" Z) Q4 \. r5 S
2 {) |3 f7 }- E7 p  q 418024558573643430.jpg
; y9 Z% l1 Q* k/ h
: Y) G* }3 U7 L* R 605556713385935815.jpg 0 B6 ]4 b* ~- _5 g0 r

% n5 H7 I! Z/ F! Y: h2 {1 Z 920906596773458345.jpg ! a. `, E: W  d+ J/ J& G0 R# G
回复 支持 反对

使用道具 举报

您需要登录后才可以回帖 登录 | 注册

本版积分规则

手机版|无图版|站务联系 | 商务合作 | 平台公约

信息产业部备案:苏ICP备05014191号-1 经营性ICP许可证:苏B2-20110445 苏公网安备 32060202000307号 © 2001-2019 0513.org All Right Reserved.

投诉争议 技术支持:第一互联 GMT+8, 2025-12-26 00:38 , Processed in 0.176786 second(s), 13 queries , MemCache On. 站点统计

快速回复 返回顶部 返回列表