濠滨论坛

点击扫描二维码

查看: 2975|回复: 2

好来居♦2018工地日记♦黄新星『益兴名流府1-06』178㎡(拆除结束)

[复制链接]

该用户从未签到

发表于 2018-5-23 14:47 | 显示全部楼层 |阅读模式 来自:江苏
; I2 d& ], Y) x2 S

8 c) s1 \# E1 O0 L% b+ l& Z& q
微信图片_20180523134056.jpg
5 g' P4 y7 l: _3 W3 R1 Z' [' \
【楼盘名称】:益兴名流府1-061 E' E5 h  y) E* Z# I0 @+ T
【建筑面积】:178㎡2 O* M) q7 Y0 {+ M  p4 |
【装修方式】:半包: M. p, @+ U; a0 e1 `% d
【设计风格】:现代风格+ \0 d  k( Y, x$ s' a8 [
【设计师】:黄新星7 j# N4 w" j! L2 ~$ m
【项目经理】:张先虎' A/ c8 d* [8 u' Y0 K- b, V
【开工日期】:2018年5月23日- \2 {" C$ b- v/ }
【施工单位】:好来居装饰红宝石国际设计中心
6 @4 ?& P+ @- i, c. f
$ _( K4 X; ^' F9 C+ [0 t6 e
微信图片_20180523134102.jpg
" x7 c4 b: Y5 s. k6 b
微信图片_20180523134105.jpg

7 _9 F2 j! Q! F0 t* L
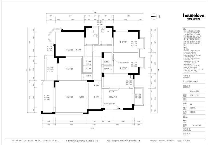
原始结构图:
7 i2 d6 y* M& T8 ]2 L  i
微信图片_20180523143603.jpg
" _% @7 K7 G& b" h
平面布置图:

; @6 }/ @$ r1 D$ e( P* X: F. T& C! g, o1 Z
微信图片_20180523143608.jpg

! ]: f" ^. i3 g  E* z( M南通0

该用户从未签到

 楼主| 发表于 2018-5-23 15:07 | 显示全部楼层 来自:江苏
形象保护:' J$ @) t& w% a9 y; z
134612739487718979_副本.jpg ; M, L0 x2 I8 D
& a9 F; J- F' I: F8 r
484267128966626095_副本.jpg 0 {" F6 ]" C7 @$ g# M( |

2 H6 J6 f# w( Y( E* j1 ^2 e, r 672414903333374711.jpg & s" U& s7 D; A9 W! v# U
回复 支持 反对

使用道具 举报

该用户从未签到

 楼主| 发表于 2018-6-21 14:54 | 显示全部楼层 来自:江苏
拆除已到位:# w7 J: i7 Q1 i7 n
103428740979794925.jpg
- Y1 @- T, q) w, I" s. e
& X+ y# O* q0 t) F7 a 207553568928066715.jpg $ B3 H3 U0 }, L$ e' b3 c

9 g& m5 s; @+ K; y 852099857346131923.jpg
3 I0 E- \5 B& Q4 q& N, Q; c2 G5 Q0 k- g
865926023096295639.jpg
$ ]  T+ q6 L" |/ V
回复 支持 反对

使用道具 举报

您需要登录后才可以回帖 登录 | 注册

本版积分规则

手机版|无图版|站务联系 | 商务合作 | 平台公约

信息产业部备案:苏ICP备05014191号-1 经营性ICP许可证:苏B2-20110445 苏公网安备 32060202000307号 © 2001-2019 0513.org All Right Reserved.

投诉争议 技术支持:第一互联 GMT+8, 2025-12-25 15:13 , Processed in 0.174557 second(s), 13 queries , MemCache On. 站点统计

快速回复 返回顶部 返回列表