濠滨论坛

点击扫描二维码

查看: 4088|回复: 0

恒盛豪庭123m2 | 现代风格,案例分享!

[复制链接]

该用户从未签到

发表于 2018-5-19 10:35 | 显示全部楼层 |阅读模式 来自:江苏
' D* ~) j% Q: p8 e

* Q. s1 L* k! A9 b8 R  R6 ]
本期分享案例 ▎恒盛豪庭123㎡现代简约
▎ 作品档案
楼盘地址:恒盛豪庭
楼盘楼号:9#02户型
建筑面积:123㎡
装修风格:现代简约
设 计 师:孙莹

* O, c# Y( a/ b
▎ 设计背景
理由:地道的南通人,夫妻俩均为工薪阶层。为老人装修这个房子,也就是说这个房子的主人一家三代人居住。平时主要两位老人住,夫妻俩和女儿也会过来住。从储物实用,格调沉稳大气的方向考虑,在设计风格上不能太沉闷、老气。因此,本次的设计风格趋向于现代简约,在色彩使用上也透露着活跃的气息,大气温馨。既考虑了房子主人的年龄特点,又对其生活需求做了充分的考虑。
选择的理由:客户第一次来公司,聊了一下该户型的方案,把几个关键的调整和客户做了详细的沟通,然后给客户看了一下自己的往年案例,在对轻舟进行多方位考察后,最终牵手轻舟装饰。

. Y& ]) w% Y5 B
▎ 设计需求
① 在满足设计理念的同时,对房间的数量有一定的需求,三间卧室,父母、夫妻俩、孙女
② 房子要满足祖孙三代不同年龄层次的生活需求
③ 从老人角度考虑,就是要尽量让厨房的空间大一些,橱柜要多
: V: r7 Y/ P9 d. F4 q: _

" V; J4 m0 o8 l; G5 K
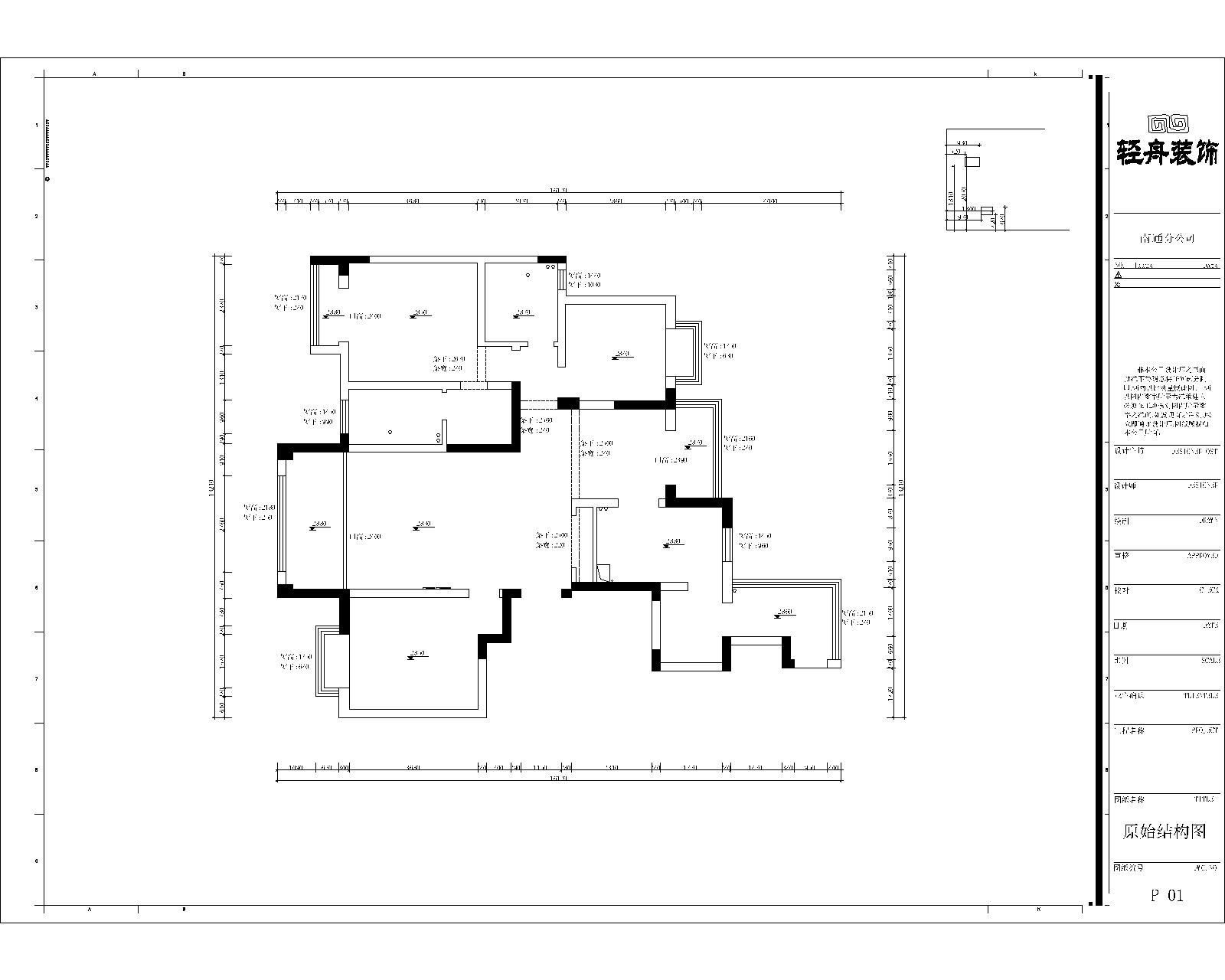
▼ 原始户型图
原始结构图.jpg

/ k& w  b. p  c# s4 L/ Y: I* M0 l5 J3 m( U
▎ 户型分析
① 厨房和餐厅的位置比例不协调
② 进门的空间特别小,不想浪费

' a/ _" T/ r( U( J- @: l  ?
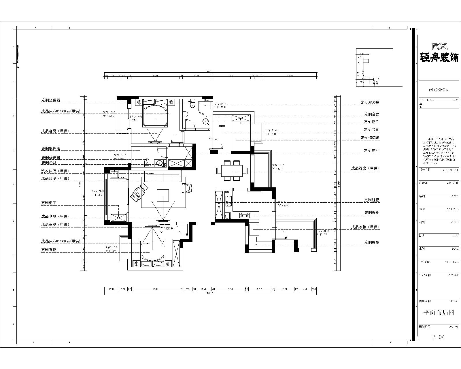
▼ 平面布局图
平面布局图.jpg
/ N7 p4 K$ p2 D- {( B
▎ 改造备注
①  三房朝南,客餐厅南北通透,较为敞亮
②  主卧、北次卧、公共卫生间三个房间的门距离太近,且卫生间正对进户门
③  从户型上看,这个房子最大的优点就是厨房外面多了一个空间,外面是消防通道门
# g+ M' t6 [7 }+ z0 u0 ~
▼效果图一
客厅.jpg
( A4 O- v1 A! c- B

: @0 ]' e: S+ n. h: ]
▼效果图二
" O! g; D% l, m
门厅餐厅.jpg
- X, Y7 f7 K6 Y; j% `$ B3 n' ~+ z
; ~3 P9 f- m8 M  ~, F! h0 w
▎ 设计师简介
孙.jpg

7 f9 `( A6 {3 D- Z- O/ m- T) V, b( N, e9 K% S: R0 Y  r8 W& _
▎ 互动方式
目前已有8湖滨业主选择轻舟装饰,看自家户型设计方案,看更多设计案例,添加小编微信即可,需备注【家在恒盛豪庭】

8 z5 ]! A' D4 j  n. j1 X
轻舟装饰(客服)热线:0513-85335628
地址:南通市崇川区通甲路6号中江国际4幢B座3楼
通州区珠江路与西湖东路交汇口向南100米

: J% z) u+ ]' _1 v' L, o+ K6 @% f- h
12333.jpg

- g! z8 p. t: y5 B$ c" b南通0
您需要登录后才可以回帖 登录 | 注册

本版积分规则

手机版|无图版|站务联系 | 商务合作 | 平台公约

信息产业部备案:苏ICP备05014191号-1 经营性ICP许可证:苏B2-20110445 苏公网安备 32060202000307号 © 2001-2019 0513.org All Right Reserved.

投诉争议 技术支持:第一互联 GMT+8, 2025-12-26 00:37 , Processed in 0.175096 second(s), 13 queries , MemCache On. 站点统计

快速回复 返回顶部 返回列表