濠滨论坛

点击扫描二维码

查看: 1962|回复: 1

好来居♦2018工地日记♦陈帅华『同和嘉苑21-06』86㎡(水电到位)

[复制链接]

该用户从未签到

发表于 2018-5-18 10:55 | 显示全部楼层 |阅读模式 来自:江苏
7 h- F9 f4 P# n  W" [  v3 {( v' g
微信图片_20180518092635.jpg
! X( t( C% K! Q6 F. H: L: Q( j
【楼盘名称】:同和嘉苑21-06$ v$ ^0 _7 w% K2 v0 B: H
【建筑面积】:86㎡
; a( m6 E! T; e% @" R0 J3 R【装修方式】:半包/ K/ R9 j$ i# T% [! U
【设计风格】:北欧风格$ T& `  S. u" o2 Q2 d0 V
【设计师】:陈帅华1 ~6 x. q  z# H6 _+ a
【项目经理】:葛兴林
2 H, N; r% Q" ]% _【开工日期】:2018年5月18日3 L& e4 k$ C# s; C
【施工单位】:好来居装饰红宝石国际设计中心
微信图片_20180518092643.jpg
微信图片_20180518092649.jpg
0 v3 ?/ S, r5 ^! X- o1 Y! Y
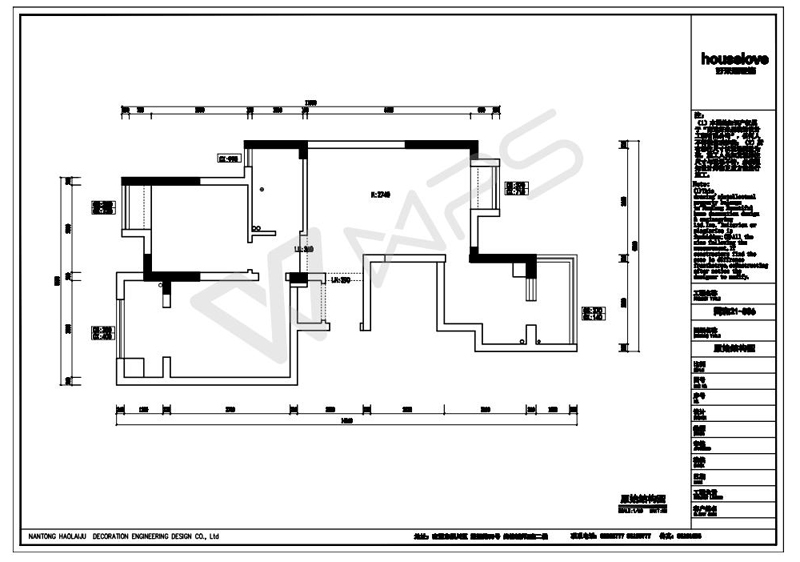
原始结构图:
同和佳苑-Model_01.jpg
/ \: H+ u$ ?, ^- |
平面布置图:
同和佳苑-平面方案_02.jpg
- W3 E; f; }- h" V2 z1 [
南通0

该用户从未签到

 楼主| 发表于 2018-6-21 14:50 | 显示全部楼层 来自:江苏
水电已到位:; T3 i# c; W, w$ T0 s! U+ z
68432769692703740.jpg

) s0 q; P/ m5 C+ O
7 p0 j% \3 R5 S$ @7 I
235907409772243221.jpg
) f; p/ Q8 E& C. z- H% _
% y' G# g( z. _/ ~5 x( k. s
369804626717311785.jpg

0 T5 |( }6 r2 \* c4 K, D0 `* P
3 {' Q8 A, P$ L8 X- A
379014998487935349.jpg

9 I' i( r$ r. K* f/ U+ E6 B% M. N5 j8 O
807912414718047122.jpg

* |) M4 f% |. C3 L( |
回复 支持 反对

使用道具 举报

您需要登录后才可以回帖 登录 | 注册

本版积分规则

手机版|无图版|站务联系 | 商务合作 | 平台公约

信息产业部备案:苏ICP备05014191号-1 经营性ICP许可证:苏B2-20110445 苏公网安备 32060202000307号 © 2001-2019 0513.org All Right Reserved.

投诉争议 技术支持:第一互联 GMT+8, 2025-12-25 15:41 , Processed in 0.187532 second(s), 13 queries , MemCache On. 站点统计

快速回复 返回顶部 返回列表