濠滨论坛

点击扫描二维码

查看: 29697|回复: 0

【浔-开工】恭祝景瑞御府别墅开工大吉— 圆梦幸福家第五季

[复制链接]
  • TA的每日心情
    奋斗
    2019-11-28 09:04
  • 签到天数: 34 天

    [LV.5]常住居民I

    发表于 2018-5-16 17:38 | 显示全部楼层 |阅读模式 来自:江苏
    本帖最后由 南通华浔品味 于 2018-5-16 17:42 编辑
    2 U; f( O* F/ z
    5 e/ r; t! p. }- Y4 ^1 m  D3 g- X
    前言:圆梦幸福家前四季匆匆而过,今年的圆梦幸福家第五季如期而至……五月全江苏华浔将掀起一阵澜波……
    圆梦幸福家开工记♥♥ ❤ ♥♥
    【浔 · 开工】3 o* q# |0 ~! a
         | 南通华浔品味装饰% @# z! }( y; M+ {1 j4 e
    开  |  恭贺【景瑞御府】张总雅居0 R: D: Q; J: L& I/ j; C0 x6 h
    工  |  吉宅09:58开工大吉
    % c" ~8 I% M; N8 O0 G大  |  华浔设计师张佐彪倾力打造( @# ]/ R5 M9 e
    吉  |  做一个工程树一个样板  _) N  k: Y1 S5 F3 G. e+ g( }! ?# X# [' ?$ L
    💥   | 江苏大区圆梦幸福家第五季活动开始啦❗️
    - h3 p8 x; f8 |3 A️  品质大宅呈现进行时‼️敬请关注‼️7 p. j) [; L/ e" W: L

    9 m) H/ y$ N% t3 H, T! o6 _  [
    微信图片_20180516100814.jpg
    , J! N* v1 Q5 {* X4 R# {/ @% y0 y; ^  q* v
    - _' ]. i' r; q( M2 p
    微信图片_20180516104228.jpg
    ) ]# ]+ d/ E* ~: E, E- ?8 N: L$ Y

    5 o4 v; T/ a& g0 N7 l
    微信图片_20180516104244.jpg
    " g9 M' y+ p/ d# X
    案例 ▎景瑞御府10栋102张总别墅400多平方
    项目地址:景瑞御府10栋102
    项目风格:新中式风格
    设计师:张佐彪
    家在中国人眼中不仅仅是一个住所,一个简单生活的地方,家更是一个心的归宿,是流躺在血脉里的深沉情愫。中式合院别墅正是赋予人更多精神需求的住宅形式。所以我们在设计中更需要增添理想,赋于空间气度与温度,在细节里体现艺术的传承和时光的印记。 微信图片_20180516165836.jpg
    我们认为将天地自然里永不变的物象以及古老艺术,化成符合当代审美需求的现代美学符号印刻在空间装饰里,即使时代变迁,后人依然能够清晰的理解和发扬当时的美好,这便是传承的意义。所以设计需要精致,需要匠心,需要寓意。
    设计师简介——
    额.jpg
    ▼地下室原始户型图(点开图片可放大)
    地下室.jpg
    ▼地下室平面设计(点开图片可放大)
    地下室1.jpg
    9 J& ], s' o! u0 b. Z* k# J. Q▼一楼原始结构图(点开图片可放大)6 S0 |' s7 Y* X) D
    1.jpg 3 Y$ L  C8 V4 w- v2 l0 v3 F4 _
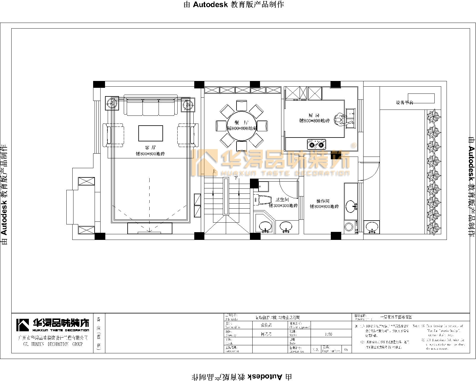
    ▼一楼平面设计图(点开图片可放大)7 w, k/ j% n6 W: D3 G9 p' ^- R
    11设计.jpg ! b# H  X( V9 z6 v: P4 l4 o
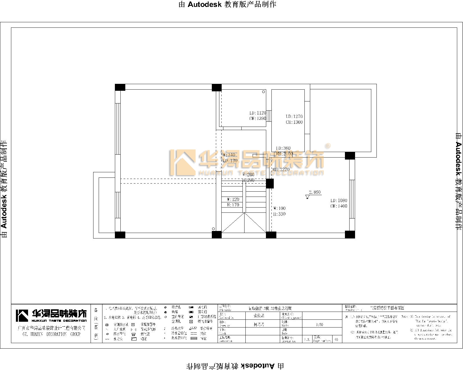
    ▼二楼原始结构图(点开图片可放大)
    % V2 R" k6 Z  p 2.jpg - ~8 P- c9 _9 X* ~2 M2 D0 g% f
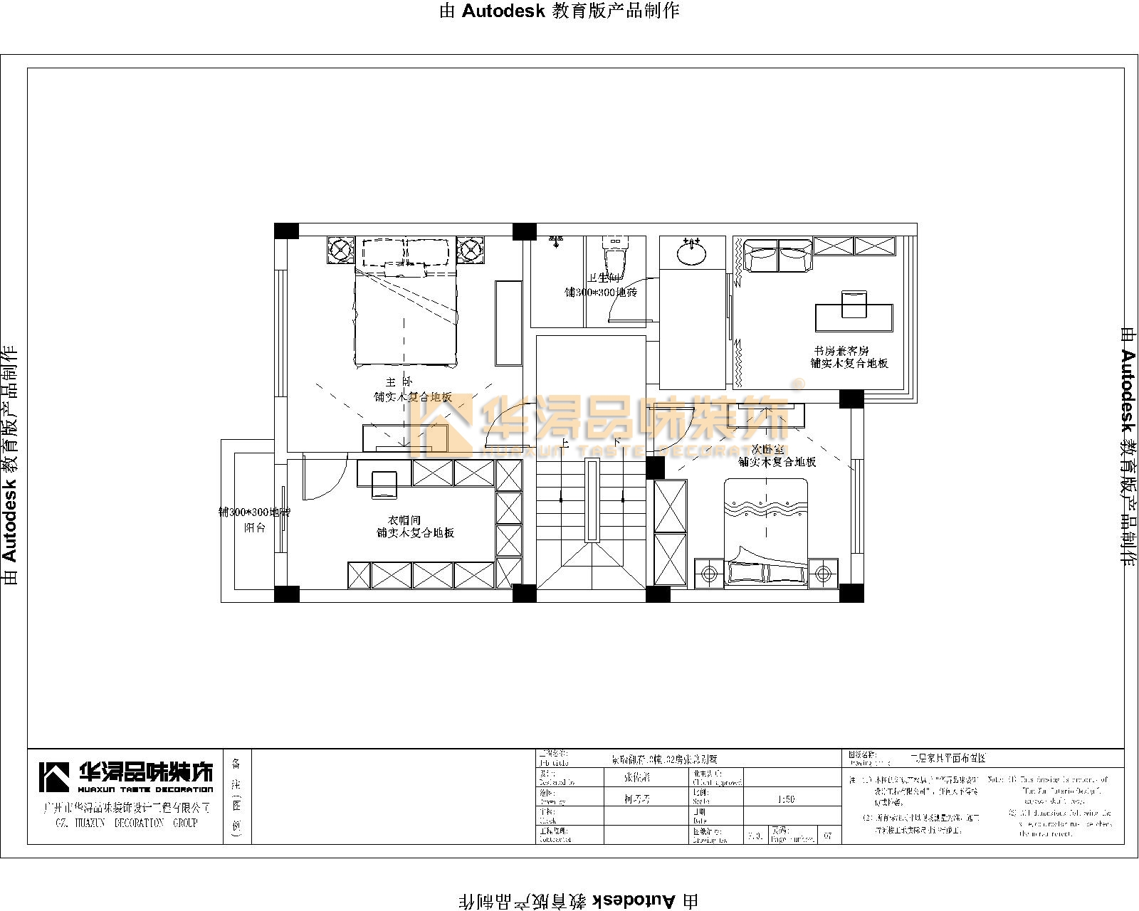
    ▼二楼平面设计图(点开图片可放大)4 K1 }1 G9 T& ~9 g) c. u. _6 _. o- T
    22设计.jpg
    4 d& x. t% n' B, d- e" A( q9 h& E▼三楼原始结构图(点开图片可放大)0 @3 E0 L* u  j% c: ]7 Z! e, ?
    3.jpg 8 ?- A/ r- d( U  K$ `! |
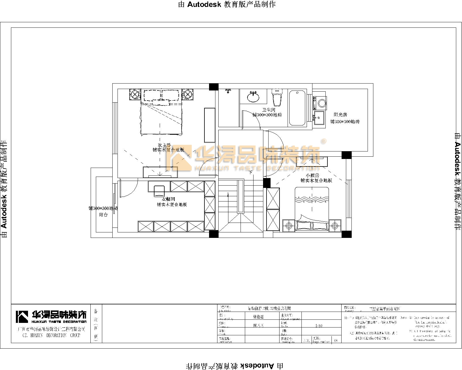
    ▼三楼平面设计图(点开图片可放大)0 x& ?- ]7 j: h) z3 ~
    33设计.jpg ! t) Z2 |1 U8 I6 B
    ▼效果设计集合(点开图片可放大)9 {' U" i$ {& P( }  L
    客厅_副本.jpg
    1 w3 C% {3 X3 I: J
    , Q: I1 O2 u3 I* i2 f! }7 Y$ b9 I

    2 X5 d2 Y* s6 T& Y1 p. g* C: D% \ 地下室效果图_副本.jpg
    $ ~9 K' l# Y7 b! ^3 ~. [% H6 v4 e3 M9 P5 b

    # C( T$ z1 [, A2 [- ]9 Q 二层主卧室_副本.jpg ( r0 v+ E1 ]* _9 \* U
    # y2 H) @. Y! Z0 D
    5 O8 ?& ^) o7 T% C
    三楼小孩房_副本.jpg
    4 R# S7 d! U3 T) S: K2 ^' T
    阳光斑驳2 z1 r" W( w8 o8 h2 e; a
    树木青翠
    听一场叮咚畅曲
    听一声风的倾诉
    忽然之间
    周身清冽
    满心欢喜
    这么简单而愉悦
    找到最真的自己
    互动方式
    小颖【微信号:15950859035】小编24小时在线等你,等你,等等你
    地址濠西路濠西园商办楼二层15幢2楼华浔品味装饰乘车路线:(15路、16路、17路、41路、51路、53路、603路、605路至濠西书苑下车。
    私人定制您家的专属设计方案,
    请联系☟
    微信图片_20180427161931.jpg
    ' \% Y- j8 l9 O; }9 \+ s

    ) D+ C7 J" F* H! n
    ! Y  g9 D" N3 A. h0 Y0 K, K
    $ B4 C2 T  _, Z6 q. h0 z/ V
    : O# Q  T! A$ u; V* ]

    ! @0 M' L. l: h; G/ \0 v
    4 j' F6 ]5 A8 B; `2 T- Y* }9 ~. B$ n  F7 m* s# M
    : M. B! e9 W  ?" o. ^0 u. q
    南通0
    您需要登录后才可以回帖 登录 | 注册

    本版积分规则

    手机版|无图版|站务联系 | 商务合作 | 平台公约

    信息产业部备案:苏ICP备05014191号-1 经营性ICP许可证:苏B2-20110445 苏公网安备 32060202000307号 © 2001-2019 0513.org All Right Reserved.

    投诉争议 技术支持:第一互联 GMT+8, 2025-12-25 15:29 , Processed in 0.385470 second(s), 13 queries , MemCache On. 站点统计

    快速回复 返回顶部 返回列表