濠滨论坛

点击扫描二维码

查看: 2747|回复: 2

好来居♦2018工地日记♦黄新星『金飞达1-02』140㎡(水电到位)

[复制链接]

该用户从未签到

发表于 2018-5-16 15:13 | 显示全部楼层 |阅读模式 来自:江苏
! O2 y  h8 H/ P' Y/ X. [1 G
4 D. X# l) `# Y3 W* v0 y1 S3 i* f
微信图片_20180516142114.jpg
【楼盘名称】:金飞达1-028 a0 [# p8 h4 t; Z% M% |
【建筑面积】:140㎡) Z3 _3 |, Q, ~6 K4 k* B
【装修方式】:半包" e! Q( T/ i( B4 X. @9 d4 B& E
【设计风格】:现代风格
: k% y9 B" ~# N6 Z9 f" i) ^【设计师】:黄新星3 V5 Y+ k% ]8 U; R. V) D
【项目经理】:夏海军/ H$ y2 [6 y3 _3 Z
【开工日期】:2018年5月16日
1 t  H) \! o, [5 J9 c8 |  f4 r  E# g【施工单位】:好来居装饰红宝石国际设计中心
微信图片_201805161421141.jpg
微信图片_201805161421142.jpg
3 p: V0 w2 N# k8 Q: j
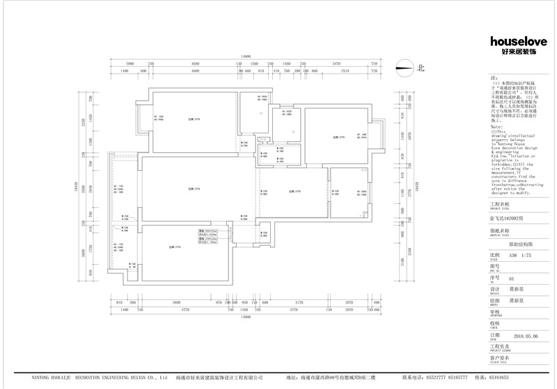
原始结构:

6 d# F+ m, r+ i* b3 z' U& t8 L
微信图片_20180516141344.jpg
8 X/ o% u; a; j4 n5 K. Z
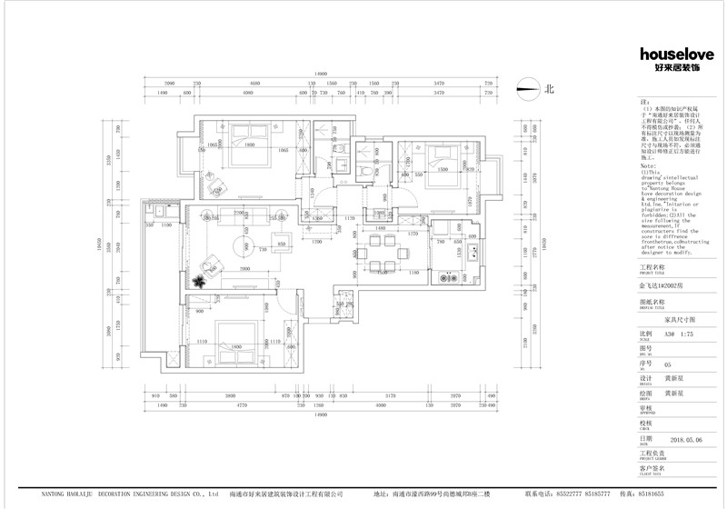
平面方案:
微信图片_20180516141351.jpg
# k( e0 o/ v$ N2 c

! u) ]3 u0 a& j+ f* s: S& ?南通0

该用户从未签到

 楼主| 发表于 2018-5-17 13:56 | 显示全部楼层 来自:江苏
形象保护、地固到位:​
) _  z; Y8 h% K7 b9 Y3 s
. C* u/ b* i  B, R7 f+ Q

; a+ z) j, b/ U! S8 k2 n6 o

. p' w& `9 r# ?9 S. y+ ~
6 H7 D1 y' v2 O9 h# y' }- q! j

% I; v6 i7 q- p/ j0 y& t

' U% v' k/ x0 \

8 u5 Z" U! {1 _' z! I3 d: G7 W5 X. @
回复 支持 反对

使用道具 举报

该用户从未签到

 楼主| 发表于 2018-6-21 14:48 | 显示全部楼层 来自:江苏
水电已到位:% _1 Y0 `, R2 a+ a2 ]9 H
36778328708802098.jpg   w% M  I) p9 k5 r' E& F/ z2 S

4 H! \, n. \$ h+ O& U4 t 375238323603013157.jpg 8 c9 y( A& p/ V. I0 |% U. R

( J7 M' L) [6 w( \' \/ C) u1 l 681513909225672494.jpg
/ {6 U- v1 f6 z9 P  B- D1 C: H. p7 S) a$ i! |+ H  a: o
789799750102872311.jpg
  M- n. n# Y: W# j0 H
回复 支持 反对

使用道具 举报

您需要登录后才可以回帖 登录 | 注册

本版积分规则

手机版|无图版|站务联系 | 商务合作 | 平台公约

信息产业部备案:苏ICP备05014191号-1 经营性ICP许可证:苏B2-20110445 苏公网安备 32060202000307号 © 2001-2019 0513.org All Right Reserved.

投诉争议 技术支持:第一互联 GMT+8, 2025-12-25 15:29 , Processed in 0.178075 second(s), 13 queries , MemCache On. 站点统计

快速回复 返回顶部 返回列表