濠滨论坛

点击扫描二维码

查看: 9530|回复: 0

【雅居乐】全户型1:4方案出炉,内含全景效果图(快来领取自家户型方案)

[复制链接]

该用户从未签到

发表于 2018-5-6 09:50 | 显示全部楼层 |阅读模式 来自:江苏
/ T  k4 t  P3 f: s3 P0 y! ^! ~8 Y8 z1 m' y) e
锦华装饰,针对雅居乐业主的全套户型研发目前已经全部出炉为了保证户型方案的精准性,高质量,以及能够确实为业主家服务。特举办雅居乐全户型方案内部评选赛。
6步搞定雅居乐最优质户型方案
(雅居乐业主记得添加小编领取自家户型方案哦~还可获验房卡一张)

% }7 I: N0 b, T! ^' S/ p5 l, ?( I7 q- F7 h* V
1:前期雅居乐现场实地精准量房(确保尺寸精确无误)
2:原始图绘制
3:平面方案出炉+软装图出炉+全景效果图出炉
4:雅居乐全户型研讨会
5:选出每个户型最优质方案
6:精选1:4户型方案打印成册(静候雅居乐业主来看~)
3 B. ?5 x; X( q# \2 I' v* k6 W" L# v2 u0 }

& l1 y. U1 G4 }" O
IMG_4347.PNG
▲现场精准量房
IMG_4348.PNG
▲现场精准量房
; v6 {  N8 w: q7 A1 F; L+ c
IMG_4349.PNG
雅居乐量房现场合影留恋

, O5 g1 H6 v! S8 t! y( N  ?
经过现场精准的量房后,逐步出图,平面方案绘制
1 F) n1 M" J. o: @, n
平面方案出炉,设计师老师们一一进行讲解(评选最优方案给雅居乐业主)

6 `' d* [, k4 f, }- f7 |  N) n4 r
IMG_4350.PNG
姜蓉老师从业主的生活习惯角度出发解析雅居乐户型

% x  X4 P7 p! l4 n: A4 w1 v: w+ a6 c* @& R9 B/ A
IMG_4351.PNG
张妍老师对户型的优缺点进行解析,合理的改造和规划(非常赞!)

$ n7 {8 b+ f; O, S) ?7 O
IMG_4352.PNG
钱陈老师认为户型设计要深入到细节里面去,
每个业主的生活习惯不同,需求不同(只有经过细致的沟通之后才能给每一个业主最优的方案)
( z" K0 s" c2 S+ ]8 m$ U

& ]/ X& ?* n* \# J3 R  u% J( R
感谢每一个老师都把自己的设计分享出来,多方面探讨,为的就是给雅居乐的业主一个想要的方案,一个适合他们自己未来家的方案,每一个方案背后都有深刻的解读与故事,期待你来了解~~添加小编即可获得自家户型方案哦~更有验房卡一张!
* R" k! j; O) d; f- O" f9 Q
/ |& s& B# H/ W
设计研发会结束后,我们评选出最优质的户型方案,打印成册,等待雅居乐业主前来查看~还有全景效果图哦!
IMG_4353.PNG
/ y7 {% B! y+ E. A" R& S# Y

0 C7 Z) ?) O3 G! J
我们就俞易非老师的雅居乐这套方案
给雅居乐业主做一个示例
7 j% B* x1 b% C, ~, {7 b4 N

1 ]0 x! k  P0 U. y' J
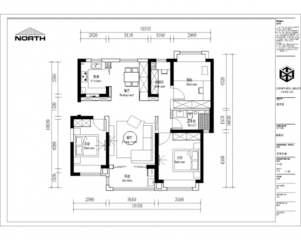
该户型来自于 3#、5#、10#       户型面积:127㎡
. a) U: q3 F  Z$ v) |7 R& j8 V
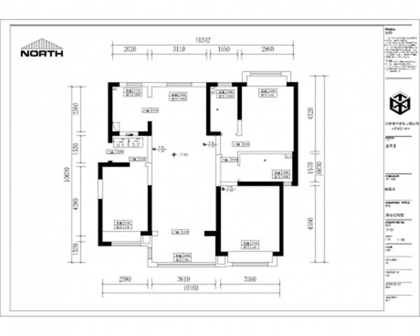
原始平面图▼
IMG_4354.PNG
5 j1 V  n- _# V( F2 _8 t% C
平面布局方案(适合你家吗)添加小编可以了解自家户型方案哦▼
IMG_4355.PNG
* v! A: e* C/ ~

5 K; Q9 O4 D- ^+ s1 n
快扫描二维码查看360效果图▼
IMG_4356.PNG
# Q% O4 _' w+ }% s, V; O/ C
凡是雅居乐客户添加小编微信,发送自家户型面积,小编我亲自奉上精美研发方案一份(到店客户均有验房卡一张,更有机会获得评选赛前三名老师的私人定制方案哦)
4 G1 x* }  O$ `
看雅居乐自家户型方案
添加小编微信▼
微信图片_20170820171800.jpg
微信扫一扫
或电话:13861980009(微信同步)
4 i/ O5 S; |6 ?/ p2 T4 L0 O- }  c

1 Y0 t" ]1 T! @- j! N' ~9 }0 ~+ w0 F9 T
南通0
您需要登录后才可以回帖 登录 | 注册

本版积分规则

手机版|无图版|站务联系 | 商务合作 | 平台公约

信息产业部备案:苏ICP备05014191号-1 经营性ICP许可证:苏B2-20110445 苏公网安备 32060202000307号 © 2001-2019 0513.org All Right Reserved.

投诉争议 技术支持:第一互联 GMT+8, 2025-12-25 11:59 , Processed in 0.184589 second(s), 12 queries , MemCache On. 站点统计

快速回复 返回顶部 返回列表