濠滨论坛

点击扫描二维码

查看: 9461|回复: 0

【润居设计】紫东刮起现代风?白老师教您设计!

[复制链接]

该用户从未签到

发表于 2018-4-10 16:47 | 显示全部楼层 |阅读模式 来自:江苏
现代:造型简洁无过多的装饰,合理的构造工艺。2 C. }# Y/ z2 A9 C' n9 D
设计师:白佳3 z% G+ t* r2 q% u$ n( Y9 G
关联小区:紫东南苑$ U- @7 i9 R7 y) v' O
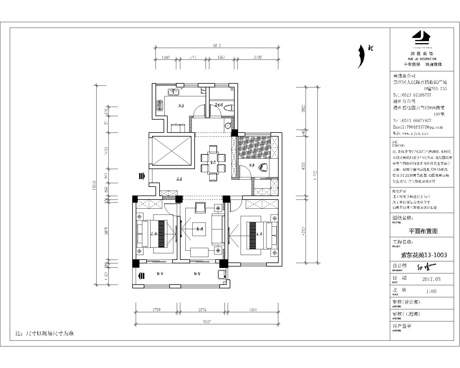
户型平面结构图:
4 N) u: T6 @# _1 a1 @8 C 微信图片_20180410101049.jpg : d/ I$ A  {2 b5 W$ P
户型平面效果图:' |, G. U! U- ~2 l; S# w6 d0 x
微信图片_20180410101109.jpg
5 ~  y) i* `0 |6 n. _ 153355x44ty5g44s849sm8.gif ( X4 B8 U' G) d" T( D
效果图欣赏: 微信图片_20180409163922.jpg 微信图片_20180409163934.jpg 微信图片_20180409163937.jpg 微信图片_20180409163940.jpg 微信图片_20180409163942.jpg 微信图片_20180409163945.jpg 微信图片_20180409163948.jpg 微信图片_20180409164107.jpg 9 z# _  _  P5 H- g4 m% u
南通0
您需要登录后才可以回帖 登录 | 注册

本版积分规则

手机版|无图版|站务联系 | 商务合作 | 平台公约

信息产业部备案:苏ICP备05014191号-1 经营性ICP许可证:苏B2-20110445 苏公网安备 32060202000307号 © 2001-2019 0513.org All Right Reserved.

投诉争议 技术支持:第一互联 GMT+8, 2025-12-25 06:13 , Processed in 0.166575 second(s), 14 queries , MemCache On. 站点统计

快速回复 返回顶部 返回列表