濠滨论坛

点击扫描二维码

查看: 649090|回复: 91

NO.18【2018年濠滨装修日记大赛】+【尚海湾二手房装修】+【现代风】+【印象水仙】

[复制链接]

该用户从未签到

发表于 2018-3-23 17:40 | 显示全部楼层 |阅读模式 来自:江苏
# j0 B8 l$ Z* q; R# B) T1 v' L

( h1 h, y% b) H( I2 }# k$ }( J& E6 I基本信息栏:
. r6 t. ~3 ]6 ^/ a0 |房型:两室一厅一卫
  h9 I0 e# @" x4 T# k, m$ E, b建筑面积:91㎡7 i: J' R: B& S, ?: Q0 g3 l
装修预算:25万
* m- R/ Y. Z5 u7 Z3 G6 Q; H7 [包工方式:半包$ l: D! ~) k0 w" E
装潢公司:印象水仙室内设计
) t/ ?; u2 t$ p% t% C( p( M& C; ^$ n设计师:鼎鼎1 z. [- d0 J0 e5 L
开工日期:2018年3月22日0 n7 \6 D, I* b1 {- ~/ O
楼盘地址:尚海湾2 _7 D1 o' h! U

- K% x9 H' \. R) K; U; T家里昨天才开工的,今天打算开个贴跟大家唠唠嗑儿,当初我跟我老公买这套房子,就是准备给女儿日后做婚房用的,平日里,大事我老公拿主意,比如买房子买哪里这种事情;小事我做主,比如装修琐事等,相比较起来,我是不是吃亏一点,我呢,从事护士岗位数年,虽然经常要加班,但时间跟正常人工作还是不一样的,相对来说白天时间还是多一些的。所以我打算也开个帖子,有时间就发布这里,希望大家有经验的朋友多多指教了。
# Z* Z5 `' ^: u) o% Q
1 p6 o6 U, ?0 g9 F直达电梯:
5 c) V: c7 P5 l  _, A! L* }1. 原始结构图+平面布置图
, x- S6 \# [& j$ }: U# T3 n% d; M3 Z9 C! s0 [2. 正式开工
" \! ~1 t' q( R) B3. 挑选瓷砖5 ?/ a1 `3 u& |6 Y5 h7 U/ L. s* N
4. 中央空调进场,布线中
7 C5 ?% d, k- j/ L! x5. 水电验收

3 y# X- i0 ]3 ]& W6. 木工结束,瓦工进场

5 c0 ]. M% G2 Q0 }7. 准备油漆进场
& H  I* o: Y# L; x' Q6 E  p8. 清理垃圾

+ K: {/ p+ I8 `4 ^9 S6 Y9. 油漆施工中
5 z# u( U% @0 P( G% |. @' W( W% {3 E+ g4 E
0 ]9 ]" R) S# `2 a3 s; J
$ ~: S% S# W  }& @( O$ _

; c. c' v+ G* ?
) \1 [; x8 ]( r7 K" D8 U
南通0

该用户从未签到

发表于 2018-3-24 16:38 来自手机WAP | 显示全部楼层 来自:江苏
尚海湾目前房价多少一平?
回复 支持 反对

使用道具 举报

该用户从未签到

发表于 2018-3-26 08:12 | 显示全部楼层 来自:江苏
请按照参赛格式将以下信息补充完整
! W5 {$ D  `: o1 p. K5 t/ Y1 T& I5 y+ C1 e' v/ a0 R

- }! m( p, K" O) S( Y: y/ E
' Z& q0 Q2 C+ q' v, `" n
回复 支持 反对

使用道具 举报

该用户从未签到

 楼主| 发表于 2018-3-26 10:30 | 显示全部楼层 来自:江苏
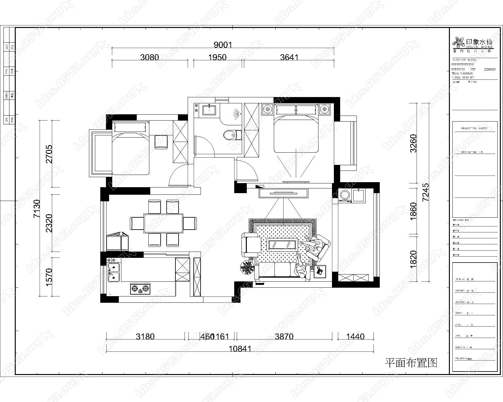
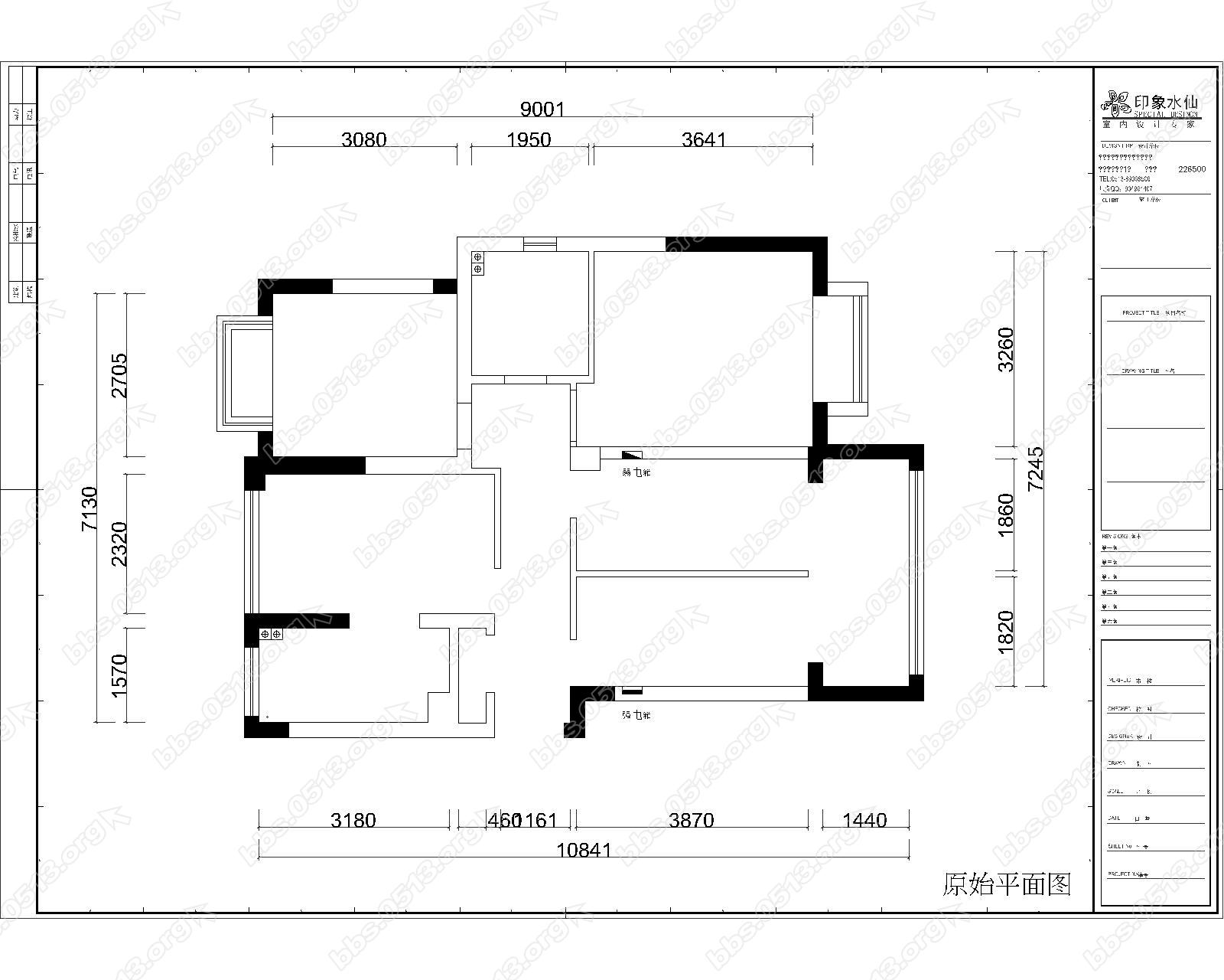
按照客服要求,图纸部分我在这里做个补充,上面我不知道怎么补进去,Sorry。
; r. G, ~- ~& \7 x原始结构图
( c: M, w! X. h4 a 911069999107759960.jpg
- B1 R/ I6 z. V8 s3 b平面布置图
3 t# l- w" a+ x8 y& n& h 104467118615461136.jpg 6 D( N: ^! y5 e" s  j' B6 w; a+ c# x6 i
回复 支持 反对

使用道具 举报

匿名
发表于 2018-3-26 13:24 来自手机WAP | 显示全部楼层 来自:江苏
提示: 作者被禁止或删除 内容自动屏蔽
回复 支持 反对

使用道具 举报

该用户从未签到

 楼主| 发表于 2018-3-26 13:38 | 显示全部楼层 来自:江苏
田心小贝贝r 发表于 2018-3-24 16:38$ X% O* W9 \4 x/ h. t* v
尚海湾目前房价多少一平?

$ s2 m9 m, G# o' x" `6 s我是去年年底买的,买的一万八一平,我买的二手房,现在应该又涨了一点点吧。$ g0 d! ~3 X( U% G' s! j( T
回复 支持 反对

使用道具 举报

该用户从未签到

 楼主| 发表于 2018-3-26 13:42 | 显示全部楼层 来自:江苏
**** 作者被禁止或删除 内容自动屏蔽 ****
) r( p" _$ Y6 U
确实大门跟卫生间的门对着,不过户型这点局限着,其他还行,想想也没必要太在意,如果特意加什么屏风什么的,只会让家里空间更小。
7 X# [+ {) q6 W* G9 p
回复 支持 反对

使用道具 举报

该用户从未签到

 楼主| 发表于 2018-3-26 13:57 | 显示全部楼层 来自:江苏
- x- F$ w  c  m8 T- T2 R; V
开工那天,仪式还挺正式,老公拿着锤子敲了八下墙,意义就不说了,大家都懂的,希望以后住进这个房子里能够事业发发发,生活平平安安吧。然后鞭炮开工。。。6 D' g! J- X6 d0 I

! }! Q" i8 t* s7 @/ Z& u# r! R  T 15047919398286194.jpg 3 t, M' M' C( h2 ?/ p2 a" l5 e
( H, b9 e0 n* H5 Y" n
618490576621535774.jpg
: E5 A* @$ U) n. r
$ I5 k2 u5 F' ]+ e/ u 710075873739421840.jpg
, L3 I) U3 {3 G5 a  a/ G- K) O" O4 o3 z
) ?& ]2 }) V+ ~4 L
回复 支持 反对

使用道具 举报

该用户从未签到

发表于 2018-3-27 09:09 | 显示全部楼层 来自:江苏
时光/旅行 发表于 2018-3-26 10:30
0 w4 Z- ]6 e/ m; W; p按照客服要求,图纸部分我在这里做个补充,上面我不知道怎么补进去,Sorry。# y; |' X& E* b4 F0 b! f
原始结构图

/ A5 j* M7 B$ W: D$ h; v# ?/ n" I
可以加小编微信,添加日记补充内容~
- \# ~3 l( g! ~+ X8 o, k
4 G& s0 J, o$ ~! @  A
回复 支持 反对

使用道具 举报

该用户从未签到

 楼主| 发表于 2018-3-27 10:48 来自手机WAP | 显示全部楼层 来自:江苏
高小丝 发表于 2018-3-27 09:092 A7 M' D. r7 s& E
可以加小编微信,添加日记补充内容~

7 G+ A, e; m9 m+ Z好的,谢谢了
回复 支持 反对

使用道具 举报

该用户从未签到

 楼主| 发表于 2018-3-27 11:02 来自手机WAP | 显示全部楼层 来自:江苏
今天正好有空,早上去钟秀路看了瓷砖,拍了几款发给鼎鼎设计师看了一看,他说还可以,我也没打算今天定下来,后来就去家里看了看,墙面都拆好了,动作还蛮快的,只是没看见师傅们,后来陈总说下午来,中午不能影响人家休息,也对。家里再过个两到三天应该就能拆的差不多了。
20180327105027
20180327105031
20180327105036
回复 支持 反对

使用道具 举报

该用户从未签到

发表于 2018-3-29 17:09 来自手机WAP | 显示全部楼层 来自:江苏
时光/旅行 发表于 2018-3-26 13:387 F# q, B/ x; w& T* W
我是去年年底买的,买的一万八一平,我买的二手房,现在应该又涨了一点点吧。

: t6 h# P; i' B4 m5 D# p8 T大概已了解,谢谢
回复 支持 反对

使用道具 举报

匿名
发表于 2018-3-31 17:27 来自手机WAP | 显示全部楼层 来自:江苏
提示: 作者被禁止或删除 内容自动屏蔽
回复 支持 反对

使用道具 举报

该用户从未签到

 楼主| 发表于 2018-4-2 16:57 来自手机WAP | 显示全部楼层 来自:江苏
敏敏的可可 发表于 2018-3-31 17:27
( q6 t/ Q8 x; w3 W8 c* q, z看哪里的砖啊

6 R* ]# z& y  z瓷砖部分,我没打算买太好的,去看了冠军陶瓷、马可波罗两三家吧,新永新那边还没有时间去看
回复 支持 反对

使用道具 举报

该用户从未签到

 楼主| 发表于 2018-4-2 17:00 来自手机WAP | 显示全部楼层 来自:江苏
- S( B) J1 T. O1 K) w6 ?3 t) r* o, j
垃圾不让拖运,每次我去找保安聊天的时候,都说我没有不让你们拖啊,实际上就不让工人拖运,施工许可证办下来了,不过在海门,明天让男朋友带过来吧,正好明天下午水电定位,一起去看看。 891102653295006678.jpg . q3 s* w: m) L' r& p- g

% p0 M, c( F1 r  ~/ X8 C; \
回复 支持 反对

使用道具 举报

匿名
发表于 2018-4-4 11:20 | 显示全部楼层 来自:江苏
提示: 作者被禁止或删除 内容自动屏蔽
回复 支持 反对

使用道具 举报

该用户从未签到

发表于 2018-4-7 10:05 | 显示全部楼层 来自:江苏
**** 作者被禁止或删除 内容自动屏蔽 ****

) ^% E( T# |, ?, v- u% `( V* H现在的小区管理的都好严格
4 ^8 B& P; X5 c/ ?! A2 p9 k7 V/ G
回复 支持 反对

使用道具 举报

匿名
发表于 2018-4-8 10:46 | 显示全部楼层 来自:江苏
提示: 作者被禁止或删除 内容自动屏蔽
回复 支持 反对

使用道具 举报

该用户从未签到

 楼主| 发表于 2018-4-11 19:47 来自手机WAP | 显示全部楼层 来自:江苏
敏敏的可可 发表于 2018-4-8 10:46
& x! L  B0 e/ h, P- W3 W管的严好, 这样不会太乱

8 Y8 ]  c# w; i! f) N5 h/ A管理严格这是认可的,不过需要提前说一下比较好。目前家里橱柜方案确定中,有进一步进展再更新吧。
回复 支持 反对

使用道具 举报

该用户从未签到

 楼主| 发表于 2018-4-20 11:27 来自手机WAP | 显示全部楼层 来自:江苏
中央空调已进场,布线中。
20180420112557
回复 支持 反对

使用道具 举报

  • TA的每日心情
    慵懒
    2014-6-28 08:44
  • 签到天数: 9 天

    [LV.3]偶尔看看II

    发表于 2018-4-24 14:02 | 显示全部楼层 来自:江苏
    感谢楼主对印象水仙的信任与支持
    回复 支持 反对

    使用道具 举报

    该用户从未签到

    发表于 2018-4-26 11:48 来自手机WAP | 显示全部楼层 来自:江苏
    时光/旅行 发表于 2018-4-20 11:27, n1 {, K# d' n* n' R: W
    中央空调已进场,布线中。

    " V# R3 Z8 L; N4 Z9 C4 m现在好多人家都装中央空调,耗电吗
    回复 支持 反对

    使用道具 举报

    该用户从未签到

    发表于 2018-4-27 15:37 | 显示全部楼层 来自:江苏
    学渣@ 发表于 2018-4-26 11:48
    6 K) v* o! V) W现在好多人家都装中央空调,耗电吗
    / O5 u/ j3 v4 k) F" T
    我感觉会比普通的空调耗电
    回复 支持 反对

    使用道具 举报

    该用户从未签到

     楼主| 发表于 2018-4-28 10:46 来自手机WAP | 显示全部楼层 来自:江苏
    15189400138 发表于 2018-4-27 15:37- U3 E/ m9 h: @' [, t, h; U* Z6 Z
    我感觉会比普通的空调耗电
    : c0 B3 ~' p. V6 O" k2 H- P, ]
    之前考虑过这个问题,我们家中央空调用的是变频的,其实并没有大家想的那么耗电,而且装完后隐藏式的,空间上装修起来好看。
    回复 支持 反对

    使用道具 举报

    您需要登录后才可以回帖 登录 | 注册

    本版积分规则

    手机版|无图版|站务联系 | 商务合作 | 平台公约

    信息产业部备案:苏ICP备05014191号-1 经营性ICP许可证:苏B2-20110445 苏公网安备 32060202000307号 © 2001-2019 0513.org All Right Reserved.

    投诉争议 技术支持:第一互联 GMT+8, 2025-12-16 08:47 , Processed in 0.262794 second(s), 23 queries , MemCache On. 站点统计

    快速回复 返回顶部 返回列表