+ U0 m4 D. @% v9 i% |0 q: a3 H& `/ p: K8 H
刚打开效果图 一瞬间以为是 实景!实景!实景! ( `5 J- V6 m- D/ [/ S4 L
扫一扫下方二维码 即可查看全景效果图 8 Q: z* P8 s# \( z& @2 }
4 ^. p7 J' J- L( ]0 K
以下内容均由锦华设计师—陈辉老师提供 6 V/ ~% r7 q) f Y/ Z! ]
2 z4 K i F) q$ e提示:华润三期所有户型均已实地测量(拿房前期将持续提供以下服务)
3 L4 F4 @2 O0 v( Z服务一:提供三期所有户型的疑难解答
9 K( t0 Y& t- {& P服务二:提供其它户型方案参考(每个户型研发比例1:4)
8 A3 F9 Y4 F; u/ N9 H0 T ]4 j服务三:华润一期,二期工地及样板房参观; n" m) ]" S# n
9 J9 P9 Q0 k( `华润120㎡解析▼ ( i: A: _% T$ W6 {6 L
锦华 |2018 研发案例 Designer | 陈 辉 Address | 华润悦锦湾 Style | 120m2 美式风格
$ b* D+ D& v. Y5 g7 g( e- [. p+ r2 Z% a
设 计 理 念 ———————— 女主人说:亮白色和海蓝色为主色调,局部点缀浅绿和姜黄色,色彩和谐的搭配使空间平添了一份温馨和自然,这就是我想要,既清新,又不失生活的热情感" @( J8 |* D9 H
; \6 {5 P5 ~+ ~, _0 u; S0 a: n
Living Room 客厅 : ?+ ]9 _$ b2 e/ A F
0 J8 m7 f" f ~1 d1 J1 P( k. _3 u木质家具稳重且随意,翠绿色的家具饰品丰富了整个客餐厅色调,给人一种经历充沛且活力四射的感觉。卧室墙壁上美式壁纸搭配深色木家具的质感美,使得空间兼备无限幻境与朦胧意境。软装加以点缀,同样可以带来沉静优雅的感觉。
L6 Q; K- {7 J c% \' H0 G
% d' o- J9 r; N( rLobby 门厅 " v" Q$ I! f# ^7 J7 V. V
* j1 C( ?3 k' i' j9 O; U8 YDining Room 餐厅
& c5 U& o; c! s% u* i- q2 ~9 B 整个空间夕阳般主题的墙面艺术漆,仿佛从远处金黄色的慢慢林海中升起。美观且装饰感十足的木质装饰柜搭配亮色张力感十足的装饰挂画让整体空间感觉不至于太过狭隘,反而多了一种安定感。那我们来看看这样的一个美式风格的家是如何布局,家具配饰又是如何搭配的呢?& s; |& C0 \# U
6 p" ~3 W- ]8 ~5 R6 l
: Q, f3 e5 I6 x
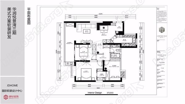
华润120㎡平面方案▼ [& Y \9 [% |. D( e2 F
附上锦华全案设计中心——陈辉老师对120㎡户型设计建议,细节分享:7 f% q' B* C- C1 t6 W: }6 s( H
1. 原有厨房总体空间上来说其实还是可以,只是采光欠缺,但是考虑到业主对厨房的各方面要求比较高,加上现在厨房采光先对比较差,而且业主不喜欢把冰箱,嵌入式电器放厨房间,因为时间一长电器表面都是油滋滋的,使用起来非常不舒适。结合业主提出来的一些要求,所以改变原有厨房的开门方向,并且增加开门空间使得光线更多的照射进来,同时对于新开门的方向对于厨房整体通风也有一定的帮助。进门设计玄关,增加进门鞋柜以及换衣柜。为了增加客餐厅的收纳空间,此餐厅设计为卡座的形式,一来可以增加收纳,二来可以搭配整个空间的设计!
( u, ]) T% h# c" D3 d) C' c3 n0 U: e( J' Z8 N7 _/ b
$ S& @% ]9 C6 G; `! A5 n2. 原有空调外机位置去除设计洗衣伴侣。(前提物业允许而且只能在设计中央空调的条件下!)1 g1 V0 {* |. \. _% a8 a7 J% d" T
) Y' j2 s( m( i+ I3 p* \* h' [! M
. b4 h' r' B. n( s5 D, P* L7 i3. 原过道顶头对着主卧大门,通过设计玄关打造动静区分的空间。北房间与原外位空间从新塑造,使得卫生间使用空间更为舒适,北房间又同时结合内卫的空间又从新塑造,打造多功能房,使用率大大提高,同时也可作为偶尔客户的需求!
9 n: B# V( x: I4 s2 y# s c/ Q
) w1 J7 g8 b% s* k$ t; k* v4 ~. h m% W; P0 i" \7 X$ @
4. 考虑到业主平时基本上就是三个人居住,所以对于两个卫生间的要求不是有特别需求,加上业主对收纳空间的要求特别高,所以舍得原有的内卫空间作为步入式衣帽间,同时原有内卫一半的空间给北卧室,增加卧室的灵活性和使用率的提高!
- q h; z d3 ]+ \. G3 x7 X( B% x" F2 |9 [+ F; y
5 G K- X- F, ^8 _9 V2 E2 ]& z华润悦锦湾120㎡软装搭配建议▼ 3 o! x, X, D$ p/ u& X' ^ Q' M
2 y/ F r8 O! v3 E7 I
♥【华润悦锦湾】专属互动:
% G5 E3 B3 m6 ]5 B5 {1 l1 {2 R: h
! X" Q4 [* m$ M% O, V( W华润业主专享服务:获取自家户型(平面设计方案+软装设计图)每个户型都有1:4的设计方案,其它设计方案在哪里?) D- P, J- B- v2 ^+ d# {( K7 [
! z# i/ U0 ?: ]% m' \1 q
在线联系小编 即可获得
* Y0 U6 V' g- X. `) n# n& V
" _1 n1 i% l4 x3 O, |平面设计方案示例▲
, A8 h4 u P/ z2 T3 U6 `
9 U7 M8 U* X$ G/ \8 i- u9 g- z3月25日全案设计展暨华润悦锦湾三期户型研发首发!0 t+ |- k! l) e: T/ ?
地点:华强城广场(诺华庭酒店)
6 o3 ?, |2 G0 ?+ J) B$ z% C/ z* ^: P6 M* Q z
详情点击→3月装修敞开看| 你的楼盘设计专场正在启动
! v5 C4 r% x) l4 A! R. q1 i4 z: a2 @! A
) I/ i+ g6 U/ `# d; @' _* J
微信扫一扫,添加小编微信(微信号:2981262445) " L0 g: g, X- C' t
亦可拨打电话: 0513-68506787咨询
. ?$ ~) R9 t) c. T
1 S5 ?; [! ~; U3 R0 n! Q& a9 R$ z9 |" c% e _# q3 {
更多华润户型研发尽请期待 ! 
* s" l' [3 ~8 D
( K8 b( X2 J: `: o& R8 A
& w* P6 D9 G, h
+ p2 l2 ~1 G. `6 f9 Z9 F E. w- N
5 w5 u4 g* G# V8 y* J% ?0 T
5 n! A! k& p8 I/ Y7 S, _
& y* x6 ?* V+ I. q# X- o
3 Y* b4 i. B$ r: a8 C, y$ n6 i
' S# Z! W& y$ o0 s" o4 i2 {
q9 r) p. X6 ~
6 d; p4 N# E; R0 ~/ y
{* j, c1 B) Z7 t- e! I5 u
2 x; a" L8 g0 C2 V, [6 O2 P* W D: M( H# q
南通0 |