- 阅读权限
- 50
- 精华
- 最后登录
- 1970-1-1
- 在线时间
- 小时
- 主题
- 好友
- 相册
- 分享
- 日志
- 记录
- UID
- 881038
- 帖子
- 0
该用户从未签到
|

楼主 |
发表于 2018-9-12 14:30
|
显示全部楼层
来自:江苏
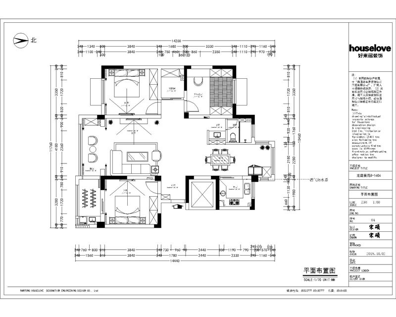
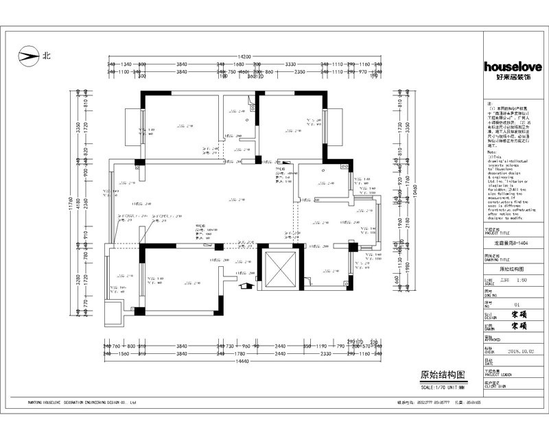
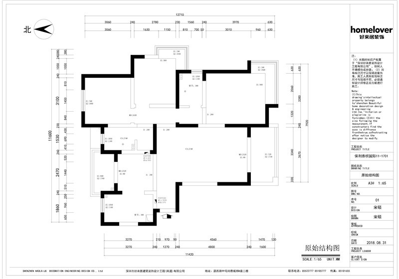
【楼盘名称】:保利香槟国际
9 Y- z C2 \, J" M! k, r! m: E【建筑面积】:129㎡ 8 r8 `9 o7 s9 i+ u# b, k' x
【装修方式】:半包 - Y$ W( J8 `$ Y- {/ h
【设计风格】:北欧风格 ! k- j! `* O9 U
【设计师】:宋硕- W* D. P8 Q. S: E# e
【项目经理】:顾荣彬
, k7 L# V2 P: |9 I+ t【开工日期】:2018年9月8日 , d7 s# a+ k* p# o
【施工单位】:好来居装饰红宝石国际设计中心
6 f: ?) N) \8 [" B" v2 x L) Q8 | A; z+ ]0 C0 u" d, V! p
原始结构图:
% y- C) t" ~4 R - ]9 W# x: w. k& c% _
0 I& G+ R, g! E# G
; q2 P6 D4 A/ {平面布置图:
* _6 O- t% ^6 n2 b. H# {, b 0 I5 W7 X( F* | I. s! ?
$ j j- M# j' d+ Z
8 Z% t: _' N0 ? g/ I效果图:
9 G, U2 b9 d. q7 Y/ F 8 s) A p" j" s/ V, B I
- U7 T* p. I: k5 m" S7 y) H

# ~( H- b% z$ y8 \, w t! p* v* R' o. u& P# L# P/ w
& `: B7 L' F0 b g |
|