濠滨论坛

点击扫描二维码

查看: 9929|回复: 1

「好来居 」主任设计师——【张文庆】个人简历及设计作品

[复制链接]

该用户从未签到

发表于 2018-3-3 11:25 | 显示全部楼层 |阅读模式 来自:江苏
14张文庆.jpg

; [. Q  b4 w" W& l; r( n0 R, R) n3 ^- c4 s
南通0

该用户从未签到

 楼主| 发表于 2018-5-17 15:39 | 显示全部楼层 来自:江苏
0 R2 J5 K$ d% B3 A9 ~0 P
【楼盘名称】:城港花苑42-02
【建筑面积】:70㎡
【装修方式】:半包
【设计风格】:现代风格
【设计师】:张文庆
【项目经理】:曾文强
【开工日期】:2018年5月16日
【完工日期】:2018年8月16日
【施工单位】:好来居装饰红宝石国际设计中心

2 y; V2 v8 l  V  |: C
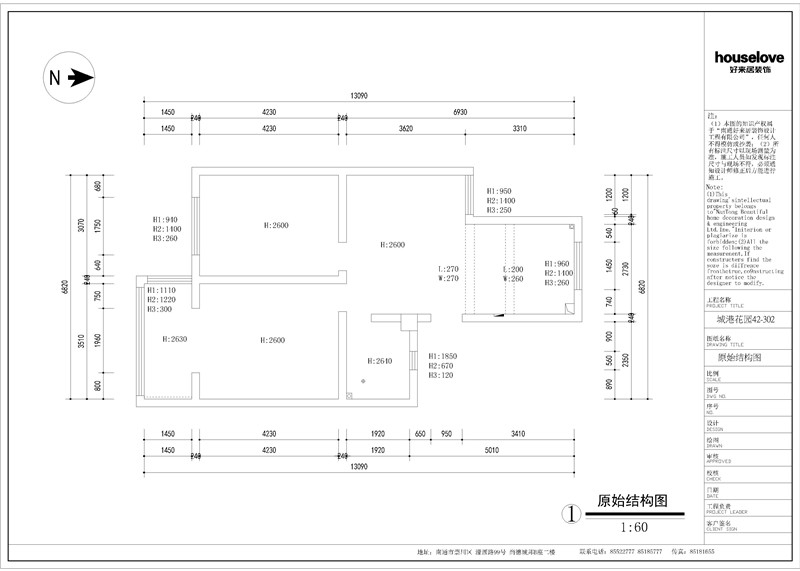
原始结构图:
4 C' f$ B! _7 m5 W, u) h
" A7 l' @( h% @& z
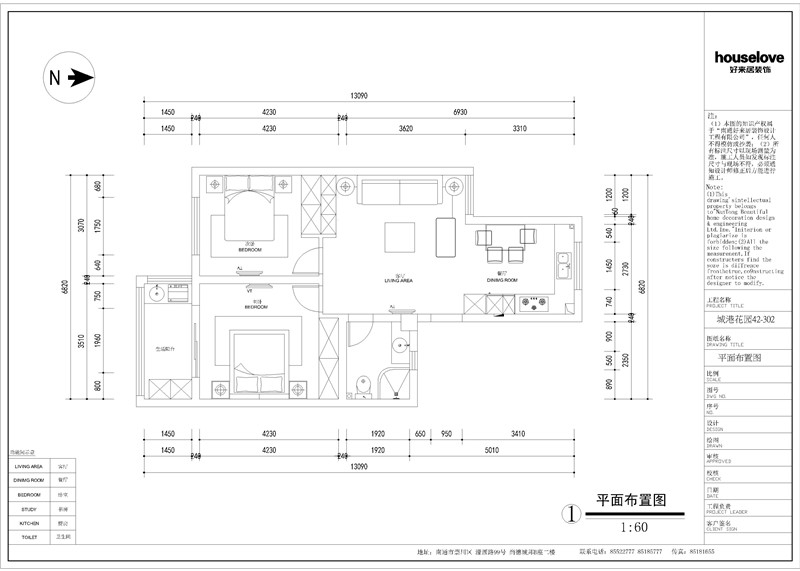
平面布置图:
! ?+ e5 P3 ], O$ T; f
. L( {1 p4 |0 g5 I% a# d1 M5 ^
效果图:

% [' ^0 }9 O; P3 b' a' \7 m0 u
( s9 k3 [2 x7 t! ~" c
2 ?; x& @1 P8 c

: N; c4 s" g) T. b' E$ }

+ {% c- H* j4 x, h3 B0 p7 g
* o( q9 r0 d, Z
回复 支持 反对

使用道具 举报

您需要登录后才可以回帖 登录 | 注册

本版积分规则

手机版|无图版|站务联系 | 商务合作 | 平台公约

信息产业部备案:苏ICP备05014191号-1 经营性ICP许可证:苏B2-20110445 苏公网安备 32060202000307号 © 2001-2019 0513.org All Right Reserved.

投诉争议 技术支持:第一互联 GMT+8, 2025-12-25 06:13 , Processed in 0.170964 second(s), 13 queries , MemCache On. 站点统计

快速回复 返回顶部 返回列表