濠滨论坛

点击扫描二维码

查看: 10468|回复: 1

「好来居 」资深设计师——【顾小丽】个人简历及设计作品

[复制链接]

该用户从未签到

发表于 2018-2-26 22:39 | 显示全部楼层 |阅读模式 来自:江苏
; e, y7 z# [7 O6 S5 q, b
6 s# e' G5 a1 q1 r; \" }% X. }
微信图片_201807041132303.jpg
5 M: D1 t$ c0 \' p
南通0

该用户从未签到

 楼主| 发表于 2018-6-15 13:51 | 显示全部楼层 来自:江苏
6 a  Q- M( w; b4 n& i0 p/ l/ B# S
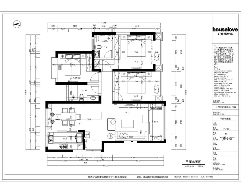
【楼盘名称】:中南世纪花城35-04- b2 t! z# o6 W% v- e
【建筑面积】:130㎡
1 P" \- S/ Z. K0 J9 T' D* z. h9 E【装修方式】:半包
. J5 e' I/ t- X; g& b) W. S【设计风格】:北欧风格- r0 M6 `4 s2 ~, G( Z5 |1 [
【设计师】:顾小丽$ f4 K  S" @) f7 _9 G4 W! N0 C8 J  Z
【项目经理】:陆良初
5 P8 x" S: N6 L/ _【开工日期】:2018年6月15日
1 T9 Y4 |( Y7 U6 i7 p$ G* u0 {3 ^【施工单位】:好来居装饰红宝石国际设计中心

6 o# e* b; s  ]
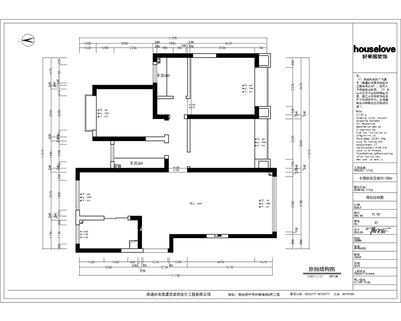
原始结构图:
$ z' ^* C0 e5 C/ l& n
平面布置图:
/ M. ^* r: ]' ]4 A$ g/ i# K8 R
效果图:

# p: R  f$ U5 ~$ K0 l

- e8 r& X/ d4 z
回复 支持 反对

使用道具 举报

您需要登录后才可以回帖 登录 | 注册

本版积分规则

手机版|无图版|站务联系 | 商务合作 | 平台公约

信息产业部备案:苏ICP备05014191号-1 经营性ICP许可证:苏B2-20110445 苏公网安备 32060202000307号 © 2001-2019 0513.org All Right Reserved.

投诉争议 技术支持:第一互联 GMT+8, 2025-12-25 15:41 , Processed in 0.164650 second(s), 15 queries , MemCache On. 站点统计

快速回复 返回顶部 返回列表