- 阅读权限
- 50
- 精华
- 最后登录
- 1970-1-1
- 在线时间
- 小时
- 主题
- 好友
- 相册
- 分享
- 日志
- 记录
- UID
- 881038
- 帖子
- 0
该用户从未签到
|

楼主 |
发表于 2018-6-2 15:09
|
显示全部楼层
来自:江苏
1 Y; ~1 j* K4 }$ C' {3 b( V+ E, O
4 {- B9 m( f6 k0 T: D! Z$ O. F7 v% u: S) m+ c! x
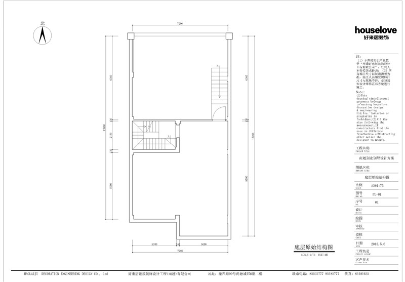
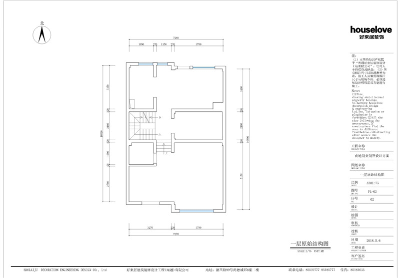
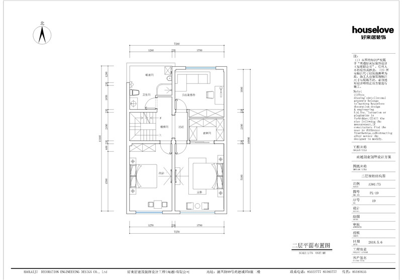
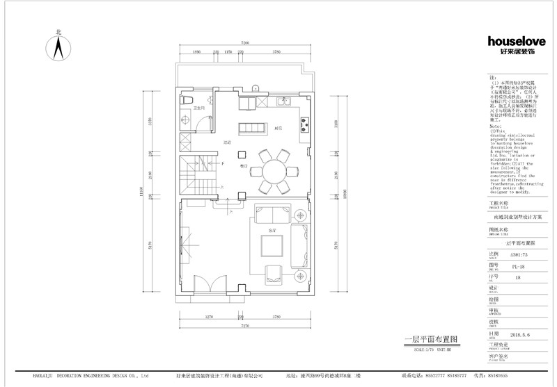
【楼盘名称】: 南通别业55-02 ( B" ^$ n" Q7 D% q
【建筑面积】:320㎡
* }" J1 S/ p8 I' ] {2 \【装修方式】:半包 2 v/ X; u$ G4 K3 R
【设计风格】:简欧风格
- \/ A, ]) a; f* i【设计师】:戴新风 # B: r. w0 ]3 r3 U$ p
【项目经理】:陆良初
9 W+ e# G9 l* O6 y【开工日期】:2018年6月2日
( I2 L3 r2 R0 }& q' ^ h【施工单位】:好来居装饰红宝石国际设计中心
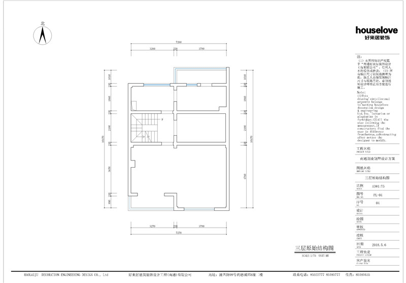
$ O8 k6 C! ^! b, l原始结构图: 0 K' K: r# @' t. u$ |2 b5 \ \
* f ]3 ~' i: @- i; [& g4 | f( y. M( C8 a
* `' u# L9 ~$ d. G4 |
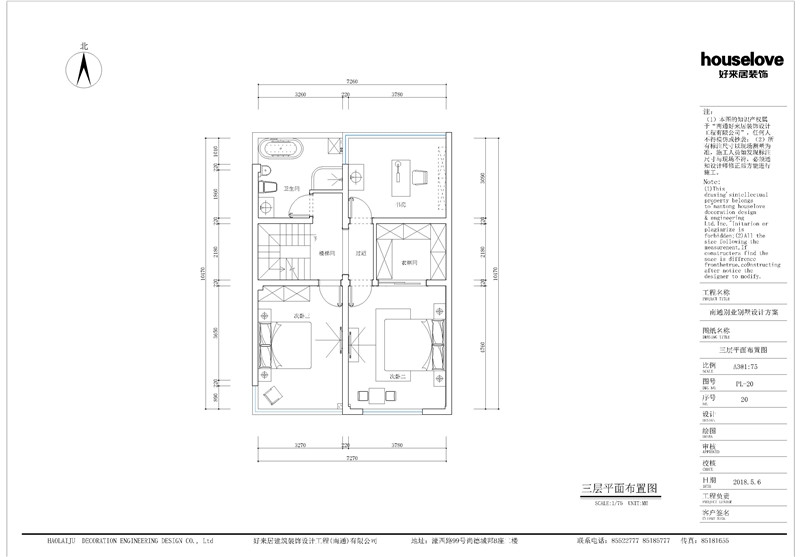
& C3 ?7 V/ R- Y) [# ~( a7 B平面布置图:
8 t- w" I P/ g `. S & t/ A2 ]: A2 E' d$ A% m5 W
+ W6 F" i0 x/ Q! D. a# G
0 u! N+ A) W2 z ' U+ W: ]3 ~' ~ _
效果图: 1 v8 u6 T( ?! M$ S
2 I S! Y2 r: w. V+ M' U
9 q% Z1 M" m* h& I6 K
4 g, Z# y7 r4 K. T- [' @0 h
" y. N- [3 ?1 H5 F7 _) f0 B/ {+ ?7 J
4 h4 E/ F% g7 U
) [0 W- i; W7 `9 F, r" g* O ' m2 l" B5 ~+ t% t) c
|
|