濠滨论坛

点击扫描二维码

查看: 20381|回复: 0

小户型不要怂,玩转这些细节秒变豪(一)

[复制链接]

该用户从未签到

发表于 2017-9-7 15:52 | 显示全部楼层 |阅读模式 来自:江苏
# }6 B6 N' R5 |$ R" r) ]
- r& g" J. M; v% M8 ]
收纳
* F! y1 w  j& P4 [
是管理好小房子的大智慧
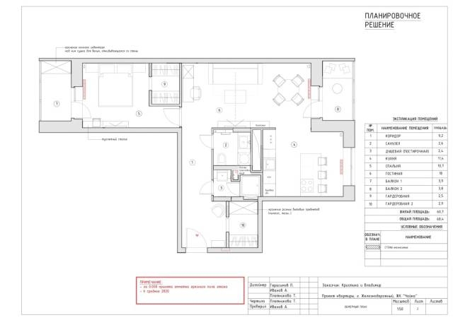
65㎡小户型
一切似乎都能尽情的买买买
除了房子
每天跟日渐增多的“物品”生活在同一屋檐下
如果管理不好“物”
再大的房子也会住得像仓库
....
; g2 A3 e5 S' g: v0 i9 \9 l% w
+ ^' l. A) o1 i( \; J2 s& D3 D, W( x
由俄罗斯设计公司Geometrium设计的
这个不足65㎡的房子
mmexport1504772445205.jpg
1 N' Z& ^9 |6 p! ~2 A
从解决人“物”矛盾的收纳系统入手
合理规划空间的每一寸面积
入户的门厅开始,就暗藏玄机
! R! H! h, g: f
mmexport1504770955750.jpg

8 k& u6 I7 m  M' [8 ]3 n# L  z7 h
走廊型布局的玄关
右手是鞋柜
左手浴室门加装一面镜子
不仅方便穿衣,还起到隐形的作用

) Q$ }6 [8 z& U/ j# q" I
mmexport1504770963457.jpg
mmexport1504770967915.jpg

. S  H4 B% A6 A; Q) W* z2 _
步入客厅
暖色北欧风格的搭配
愈显小家的温馨与精致
7 V( i, q# P6 ^* ?' I
简单的布艺沙发、低矮紧凑的茶几
再创造一个可以读书的角落
居住的舒适感自然而来

5 L7 S/ p2 i) k! y6 w% _! W
mmexport1504770972212.jpg
2 Q! E# D+ x3 m1 M' |" y2 l
可移动的家具不要买大
不可移动的收纳却要做大
也是让客厅真正“显大”的秘诀

' A1 {+ ^/ V$ Z8 ?$ p' A6 L
一整面墙的收纳柜
提供充足的书籍收纳
兼具陈列展示
. W5 S% A; X- {+ N4 r
mmexport1504770976668.jpg
mmexport1504770981208.jpg
9 r* A3 l- \) a* J
隐藏的推拉门
闭合的时候厨房成了封闭空间
解决油烟问题的困扰
打开则让室内更加通透

9 s- J7 }* f% N8 l2 ]
mmexport1504770985626.jpg
# B2 K; |! N% {0 @7 x# h7 W
L型布局的厨房
按照家务的动线设置水槽与灶台
在它们之间
预留出足够大的备餐区
* m9 }. w! M9 B
mmexport1504770994534.jpg
mmexport1504770998803.jpg

: X0 @0 h; `( i' n1 {  ~
卧室中2 {2 n# q, U. d3 i5 z/ O
将地板延伸至墙面
视觉上也起到延伸的效果

  y/ I1 P! I% t& x
正对着床的是衣柜
嵌入墙体的设计
消减了整体衣柜的厚重带来的突兀感
7 o" g5 Q: p, n% ^
mmexport1504771003207.jpg
mmexport1504771011994.jpg
9 I7 i% e' }6 m# t
次卧被暂时用作男主人的工作室
储物,一样不能马虎( a' |( G# ~. J1 i5 l$ D4 T" ~
同样设置嵌入式的衣柜
在必要的时候还能升级成儿童房

* \( G: u/ q& U" _  U
mmexport1504771016354.jpg
mmexport1504771020691.jpg
1 S. u; n6 w5 R
卫生间被彻底分割成单独的“两间”
各自承担的功能也更加明确
- r8 A, |( |3 F) a9 k3 w9 z
mmexport1504771022831.jpg
9 Z$ C* u- i+ m# }- o+ n

4 ?" d! U9 @, b0 s- [2 f/ j# w4 O0 H
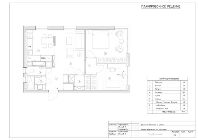
这套65㎡的公寓同样由
, z8 W" H% x1 T" V: O
俄罗斯Geometrium团队打造
业主是位年轻的单身女性
mmexport1504771033691.jpg
& t( x3 I; o) j# \- k; C
65㎡,一室一厅的格局
9 G/ K" v: U0 f
设计的重点还是利用所有的面积
为业主创造出舒适宽敞的空间

2 s. Y  R) d5 f. |0 _. h
mmexport1504771038624.jpg

( d5 L) y+ @% K) q$ v& n' M5 L7 @
门厅入口处$ M- q& x7 n; U1 @+ P
规划出单独的更衣室
玄关只需一个简单的鞋柜
方便室外鞋的脱放
/ p% i$ C) e+ @4 ^  m) _% K8 L
mmexport1504771043131.jpg

2 z8 V, g% P: j/ T' Z2 _) x8 S5 K
起居室被划分为三个区域! Z! H. I5 s% k% C8 q9 V, H( p2 p
依次为工作区、电视区、用餐区

2 ^0 Z5 {( u0 F9 \+ _% F+ E! }
mmexport1504771048606.jpg
# E9 [% K8 r% o% j- v
作为组成电视区的核心元素/ s( c0 S! r4 H! K- o3 \
设计师选用一组宜家的集成式壁柜
即是客厅收纳、也是创造颜值的担当

: S8 `% V( Z* O& o1 t+ S4 d, c
mmexport1504771053711.jpg
5 X% i+ `7 e% D9 @% `
对于室内的收纳
并不是家具越“多”越好
参差不齐,规格不一的家具反而浪费空间
立体集成式的壁柜
才是创造高效率的储物模式

5 f7 r8 l1 Q* ]+ L" h  ?3 ^* ]
mmexport1504771058211.jpg
mmexport1504771062615.jpg
mmexport1504771066975.jpg
mmexport1504771071472.jpg
7 _) x. S" J- |! v( Q9 L
开放式布局的厨房
餐桌集成灶台
节省出橱柜的面积

/ _9 q& v5 `0 E. p( U0 A
mmexport1504771076384.jpg

) ~; d, }  `4 x1 S
卧室没有单独的衣柜
而是规划出一个单独的衣帽间
对比衣柜更有收纳的“潜力”

, W6 j! N( A8 @% z7 v
mmexport1504771085581.jpg
6 a  Y$ [2 s- p/ \. o& w. S2 O
将厕所+洗衣房、
) s4 ~% J- x* F7 T# E
盥洗区+淋浴区分别作为单独的空间分割
提高每个功能区的使用效率

. S! o( Q; `/ g  o1 n. Y6 b( `5 u
采用宜家厨房模块的家具  k$ B0 c% h. K/ d; u
不但能将洗衣机和水槽隐藏
水槽下方的空间还能提供充足的储物
1 I( F$ x/ {3 b( b! }) v) \
mmexport1504771090199.jpg
mmexport1504771094728.jpg
mmexport1504771099323.jpg
mmexport1504771103878.jpg
; T3 H0 J! d% O+ ^% O3 {4 `; x
公寓的南北两侧各有一个阳台
分别放置沙发和储物柜
作为休憩区和家政收纳区

9 p7 j) ?' I6 V" ~& z: ^( i
mmexport1504771108648.jpg
: y4 `' _/ D/ f8 j+ u- A

Come here,靠谱装修!选轻舟装饰

获取更多小区户型研发方案,或者想根据自家的需求定制方案

轻舟装饰,真正做到了让消费者装修省钱、省时、省力、省心

官网网站:http://www.ntqzzs,cп

公司地址:崇川区通甲路6号中江国际4幢B座3楼

                通州区珠江路与西湖东路交汇口向南100米6 l( X0 e# H: E5 A9 _5 M6 I. _3 W
联系方式:15962886391. p* v* y3 C' K" L2 m
编辑短信【小区+面积】发送到15962886391免费获得装修量房与参观工地体验一次!

8 J) t' h; }$ R4 k

: ?. k$ T. M+ P, N
更多装修需求,
欢迎留言/扫描下方二维码加小编微信~
$ f$ k# Z# I0 ~; N# P% P
装修|设计|干货|理想
请留下你指尖的温度
加小编聊一聊装修
61789880547592775.jpg

" e- i! b. Y* m0 ~" Q  ?" ~南通0
您需要登录后才可以回帖 登录 | 注册

本版积分规则

手机版|无图版|站务联系 | 商务合作 | 平台公约

信息产业部备案:苏ICP备05014191号-1 经营性ICP许可证:苏B2-20110445 苏公网安备 32060202000307号 © 2001-2019 0513.org All Right Reserved.

投诉争议 技术支持:第一互联 GMT+8, 2025-12-24 18:06 , Processed in 0.289102 second(s), 14 queries , MemCache On. 站点统计

快速回复 返回顶部 返回列表