濠滨论坛

点击扫描二维码

查看: 31766|回复: 7

【印象水仙&2017新作品】《飞鸟》◣美式◥185㎡德诚翠湖湾

[复制链接]
  • TA的每日心情
    慵懒
    2014-6-28 08:44
  • 签到天数: 9 天

    [LV.3]偶尔看看II

    发表于 2017-7-28 13:46 | 显示全部楼层 |阅读模式 来自:江苏
    4 `' P* c& k; J* Q3 b6 t6 A& b6 w  T0 {
    FB0A6663_副本.jpg

    4 S# E. m4 s- J  X( E" j  I' @2 r
    本案的业主家庭成员为甜蜜的四口之家,
    业主拥有两个可爱的小公主,
    由于小女儿刚出生不方便露脸哦『喜上加喜』,
    So大女儿跟爸爸开心入境:印象水仙实景毕业照拍摄。
    , ~+ a, D7 C, j( O1 U' Q9 t3 Y1 a
    FB0A6765_副本.jpg
    隐藏不住内心的喜悦哇
    FB0A6769_副本.jpg
    . u: d4 T  }: ]! J9 d; L
    楼盘:德诚翠湖湾
    风格:美式
    面积:185㎡
    主案设计师:潘莉

    4 `: f: p$ X) U  v2 l
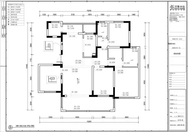
    【原始结构图】

    ) Q  V7 A/ W+ I1 w( W  I7 a
    9f7ceb97b2cc7b3fdc61afbaa01537d.png
    0 l3 j6 O+ F5 G
    1 x  D0 s- X7 t6 S9 V. ~
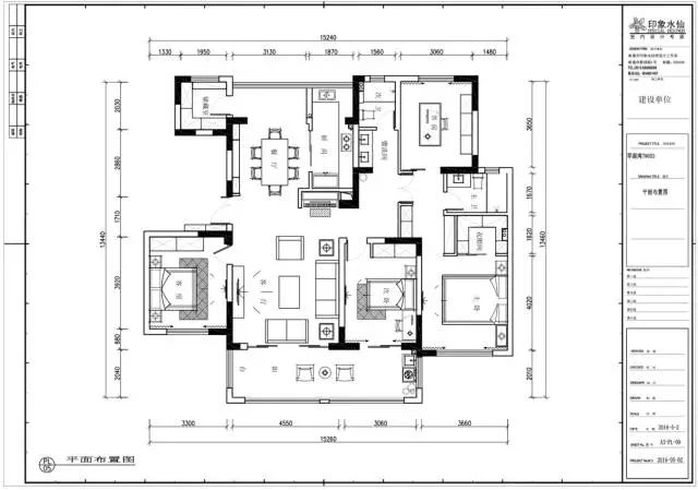
    【平面布置图——钢琴后期添置】

    $ u3 ]' W; f( O( Z
    bd3aa63df90617325114cd70148a1a7.png
    : Y2 Y$ `5 {6 a% Z4 ?# ]: q/ r
    本案为美式风格,浪漫大方,
    业主希望拥有足够舒适的环境去享受家人的甜蜜生活,
    所以我们以休闲的美式风格为主线,
    让业主可以在轻松惬意的居住环境中享受在家的甜蜜时光。

      n5 k: O8 Q! D+ Q& r' b1 b
    『客厅』
    6 R- k0 r" E& E  w* k  ?  L) g. ~  a
    FB0A6599_副本.jpg

    ; k, Q8 E8 ~: f5 V/ P
    FB0A6596_副本.jpg
    & _2 C- i: T% D1 m5 g
    大气的美式吊顶,深色的木质家具将美式风格的韵味和品质表现得淋漓尽致,
    深色家具配上复古花色的抱枕,墙上精致的石膏线条与天蓝色复古花纹拼接,
    与电视背景墙做出了呼应,清秀淡雅;视觉上柔和了很多~

    0 r9 q; a: n+ g
    FB0A6617_副本.jpg

    ' z! M) g( {& t
    客厅&隐形门亮点
    9 I4 Q* {7 C% k. ~5 g0 s
    0.gif

    : L; H  v$ H4 x2 N- m- y7 e/ k
    电视背景墙旁边的隐形门,
    完美的隐住了门的大小、形状;拓展了视觉性的空间格局。
    FB0A6649_副本.jpg
    % Q2 f" D' Y. B. Z- l: m
    FB0A6640_副本.jpg
    走在一起是缘分
    一直在走是幸福
    FB0A6650_副本.jpg
    - u6 y! W3 Q3 D4 c+ r/ }
    【餐厅】
    FB0A6579_副本.jpg

    * h% Z! M. p% v  l) S9 q  y
    FB0A6591_副本.jpg

    + H2 g' K8 x) n' A: T) ]
    餐厅,深色系长桌,旁边同色系酒柜,
    中间蓝色花纹与客厅色系作为呼应,造型比较有特色,
    深浅色系搭配的很有层次感,容量很大哦~
    - h  F3 W$ r3 k4 z! t. ^
    FB0A6577_副本.jpg

    6 R: ]" F: Y. z0 w' S# q: c6 v
      A0 K$ _5 x8 A2 G6 C
    FB0A6637_副本.jpg

    # S# J! P0 A% A9 \0 r' l
    ( _& p. O2 |" T/ P! T
    FB0A6669_副本.jpg

    3 G) S$ q: {* L. `  v
    我想你的
    瞬间,只有风与飞鸟知道
    默默不问的爱
    # p# y; I" Z: K7 ^
    FB0A6627_副本.jpg
    1 Q0 ]. r* K8 l  K
    【厨房】

    9 r  _$ C6 e7 ]9 E: [; h1 r' v
    FB0A6566_副本.jpg
    # e& y& u! G: N6 z
    厨房,白色的大理石台面和地砖,同色深色系整体橱柜,
    贵气的气息迎面而来,上面一字型吊柜让厨房的收纳再也不是问题
    $ n0 `# j) U4 P& F; x4 a
    ( {' |7 h7 r/ F, K8 c1 E
    FB0A6559_副本.jpg

    % t1 m/ X1 [* @  v* ^3 [. m- l
    【主卧】
    FB0A6676_副本.jpg
    ( u1 b/ C; ~2 t. f
    FB0A6679_副本.jpg
    % n( s2 z( A! s
    走进奢华的主卧,整体感觉非常舒适,
    主要是色彩的搭配非常协调,虽有一半是深色系家具,
    但浅颜色的搭配非常巧妙点缀,整个房间增添了不少书香气息,舒适自在。
    FB0A6685_副本.jpg
    8 P6 u+ V. N9 j
    FB0A6735_副本.jpg
    * D6 P( ~  R) \  d6 R0 `" c2 E
    那年夏天
    也许是一个眼神
    或是一个微笑
    让我的心在那一刻为你定格
    FB0A6684_副本.jpg
    , o" J; g- S8 {. ^, {, G  K
    , k  v4 q  ?4 X
    【次卧】
    FB0A6747_副本.jpg
    $ I7 Z% d* e3 ^5 f$ M  P
    次卧,暂设为老人房,考虑到老人还是喜欢清静一点的环境,
    墙面以白色为主,没有做过多的装饰,紫色的窗帘可以有助提高老人的睡眠质量,简洁大方。
    * e4 `8 ~* l- S7 [6 g4 {5 B) N# X( g/ s
    FB0A6745_副本.jpg
    6 n9 U3 l/ E% A3 k7 h; t* a7 u6 v( y
    【儿童房】
    FB0A6720_副本.jpg

    % _! W  i4 A% k; n2 h3 I
    FB0A6721_副本.jpg
    $ o: S% [9 `6 h5 y/ r, d  u
    儿童房,以米白色为主,
    墙头背景用香槟色花纹做为整个房间的亮点,
    床旁边安置了一个小书桌,
    给小公主营造一个舒适的学习环境,整个儿童房的氛围还是很梦幻的。
    ; }5 c9 p0 |; Y+ q2 \* @9 h5 ^
    FB0A6723_副本.jpg

    5 |9 m8 m) t  k1 c3 y* r
    以后的人生
    一定会多姿多彩
    ' T( x& {  W' j
    FB0A6725_副本.jpg
    / E5 t! Z8 i/ |0 R7 C: c5 B

    . |2 V* r8 G+ |' A# @
    【书房】
    FB0A6692_副本.jpg
    / G+ ^  c6 t7 g% }5 l' c% p' A/ W
    FB0A6698_副本.jpg
      ]3 ~8 y5 v0 K: `
    书房,浓浓的复古书香气息,深色系家具和书桌,
    椅子上面的绣花,浪漫有品位,加之,对面深蓝色方格复古墙面,
    增加了书房的异域风情,色调个性大胆,整个书房格调非常高。
      t4 U  V8 J- r( c% ^- y
    FB0A6696_副本.jpg

    % D, }, F- q, E# f: |0 T" }
    FB0A6699_副本.jpg

    8 t3 `  l" I% [) x" h1 g
    情调更是来源于生活的点滴
    你在这里勤奋的工作、学习
    FB0A6704_副本.jpg
    7 ~) }2 l! w2 G! k- ?

    5 t) |4 t5 @1 X+ v) m" _6 n( w" D
    【卫生间】
    FB0A6710_副本.jpg

    . B7 u# G# c1 l. Q$ U
    FB0A6711_副本.jpg

    ( _/ C$ i! y9 C  t* G' ]5 v9 E
    FB0A6716_副本.jpg

    ) D8 y, W6 Y1 `$ d( s; |
    FB0A6713_副本.jpg
      x. G% x% K1 Q* |. P1 G3 u8 _5 c
    【主卧卫生间】

    " P; W, F5 F( Z4 R) {% e
    FB0A6688_副本.jpg

    1 R& A% E+ T4 e4 H+ a
    【阳台】
    FB0A6752_副本.jpg
    ' f' @( E* S' d1 F
    清晨,一缕阳光直射进我的房间里,
    像一束亮闪闪的金线,不仅照亮了房间,也照亮了我的心田。
    FB0A6757_副本.jpg

    ( h$ z$ E( N1 ^; z7 B4 V. B
    FB0A6750_副本.jpg

    7 l5 M& W$ o2 z. S4 e' ^
    5 ?* F9 `& `7 y8 P. u, F- v0 z3 H) D
    $ ?1 L) J9 H/ I! V
    装修咨询,私聊狄进进
    ☟
    4 Z, \) J4 K' V, [1 c
    1.png

    " L1 X3 ]# o- R2 X0 U
    南通0

    该用户从未签到

    发表于 2017-8-2 16:30 | 显示全部楼层 来自:江苏
    喜欢客厅的沙发
    回复 支持 反对

    使用道具 举报

  • TA的每日心情
    慵懒
    2014-6-28 08:44
  • 签到天数: 9 天

    [LV.3]偶尔看看II

     楼主| 发表于 2018-9-14 09:37 | 显示全部楼层 来自:江苏
    jas8 发表于 2017-8-2 16:304 b' q) }0 Q5 ]4 @" S" x
    喜欢客厅的沙发

    $ _1 Q5 `: u& E4 o& }来看看
    7 `/ n3 z, c) L9 Y5 p# ]9 C% p, ~
    回复 支持 反对

    使用道具 举报

    该用户从未签到

    发表于 2018-11-12 16:39 | 显示全部楼层 来自:江苏
    沙发背景白色线条里面的蓝色部分 用的墙布还是墙纸还是壁画?
    回复 支持 反对

    使用道具 举报

  • TA的每日心情
    慵懒
    2014-6-28 08:44
  • 签到天数: 9 天

    [LV.3]偶尔看看II

     楼主| 发表于 2018-11-13 09:51 | 显示全部楼层 来自:江苏
    jjfriend 发表于 2018-11-12 16:39
    . O, z5 ~+ ~. ^: U; B9 s沙发背景白色线条里面的蓝色部分 用的墙布还是墙纸还是壁画?

    : i! H5 r; B/ H/ t& d5 H" Q! E墙布  f+ M4 M0 A4 u
    回复 支持 反对

    使用道具 举报

    匿名
    发表于 2018-11-15 23:07 | 显示全部楼层 来自:江苏
    提示: 作者被禁止或删除 内容自动屏蔽
    回复 支持 反对

    使用道具 举报

    匿名
    发表于 2018-11-15 23:08 | 显示全部楼层 来自:江苏
    提示: 作者被禁止或删除 内容自动屏蔽
    回复 支持 反对

    使用道具 举报

  • TA的每日心情
    慵懒
    2014-6-28 08:44
  • 签到天数: 9 天

    [LV.3]偶尔看看II

     楼主| 发表于 2018-11-17 11:35 | 显示全部楼层 来自:江苏
    **** 作者被禁止或删除 内容自动屏蔽 ****

    . s2 F& e' j5 R( L' t! R1 k是嘛,我们公司在华强城有很多完工的和正在施工的工地哦,欢迎来参观。这里发布的都是实景完工照哦。
    9 n& t4 ?' N& f2 ^: K, i0 r
    + g% A. _: d+ [/ m1 ?
    & m1 d9 y" ]9 H: y' u
    装修咨询,电话、微信:18115818777; R- `2 R& m7 j" q
      c5 A+ _8 t$ t4 X6 ~
    进进.jpg 8 I$ Z4 o; p4 ?6 i5 V2 l6 H, y- h
    回复 支持 反对

    使用道具 举报

    您需要登录后才可以回帖 登录 | 注册

    本版积分规则

    手机版|无图版|站务联系 | 商务合作 | 平台公约

    信息产业部备案:苏ICP备05014191号-1 经营性ICP许可证:苏B2-20110445 苏公网安备 32060202000307号 © 2001-2019 0513.org All Right Reserved.

    投诉争议 技术支持:第一互联 GMT+8, 2025-12-25 22:50 , Processed in 0.266761 second(s), 19 queries , MemCache On. 站点统计

    快速回复 返回顶部 返回列表