本帖最后由 南通华浔品味 于 2017-4-16 10:26 编辑
9 G" D9 C. P6 t4 R) ]7 `; V0 F- A; M0 e; u( ~$ m# y
《宜家现代风》 : h* z( d9 I, t7 z5 ]
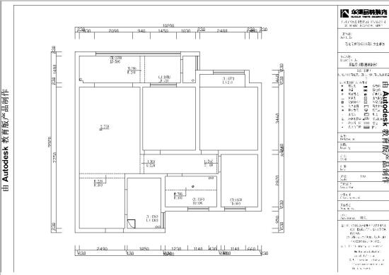
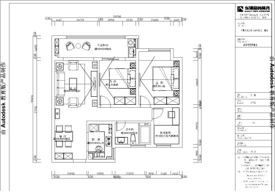
华浔品味装饰首席设计师:柯雨菲 项目面积:100平 项目风格:现代 主要饰材: 大理石、乳胶漆颜色漆、黑镜 项目地址:万濠星城23#806 本案为现代宜家现代风格,设计主题倡导的是“经济舒适大方美观”。 宜家风格一贯是以简单的陈设、单一色彩 、材料自然的质感来营造宜家舒适的家居氛围。 本案基于业主的年轻时尚,将空间结构、灯光材质、色彩运用、家居软饰等方面进行了调整,营造出时尚舒适的居家环境。
8 B Q/ r3 U; I( n% r4 J' O! ]
2 \& H2 r0 o1 d, V% J9 }
装修热线15950859035 在线咨询  联系小编即可得到360度旋转效果图,还可以得到更多万濠户型方案
: ]+ {/ T; t w
0 R: a6 D/ A4 p# s. a- U
9 W; ~) r7 w3 b r, ~) S$ k) B
& q x9 H4 c1 J7 F0 U在这个特别的日子里,4月16号9点18分开工大吉,
$ }. m0 @& ?" m6 U感恩,感谢万濠星城钟姐及家人,选择华浔、信任华浔! 6 ?* h2 |, a9 ?: S; C
我们一定会竭尽全力为您打造温馨而幸福的家! ' s! b- b Z- {7 T0 d! L

7 L+ |9 N0 v" F: @5 V& c- D1 M
# g: C# n! {$ h% R+ T' _! z2 {6 Y
`8 X: F/ L Z! J+ u F! i3 a . K1 L! U2 H8 Y. u% [2 X
华浔无忧工程实景样板间开放中,敬请莅临!
# o% w1 Z* b9 e; w0 x4 G装修小助手:dmycys34 任何装修问题都可找我! 华浔品味装饰十八年专注设计、弘扬工匠精神,每年30000多家庭的信任与选择。不忘初心,华浔将继续坚持“做一个工程树一个样板”的理念,把每一位客户的家都当成自己的家来装修。为爱设计,用心装修! 1 r& f' Y, @) u; B/ W% F
亲爱的业主:: b; b3 h# j$ s+ B7 w2 J
不管您准备今年装,明年装、后年装,如果您希望能够拥有一个温馨、美观、环保、健康、时尚、舒适的家居环境,请您百忙之中抽出时间前来“华浔”,亲身体验“华浔”专业的设计理念,专业的施工团队给您带来的与众不同的感受! 3 q; V3 C7 G! V9 S! V J8 K
2 h' `8 O) ~8 X( ]% Z
k+ |& l# P2 @) m- o情报人:华浔小颖 ) \% J* U2 k/ W, _+ m
情报扣扣:1242761035
1 Y4 d) {8 [0 }/ [% Z: y% u
) b/ M* u6 ~! V% R7 o
& i& U9 q/ a, z* n' V$ Y5 \0 n欢迎来我的空间看我,每天都有案例更新,海量的实景,N多的装修宝典,保证亮瞎你的眼球。。。。。。猛戳,戳, 各种风格参考,海量实景图,各种创意方案戳,戳戳,戳戳戳。。。。。。。
1 K7 V$ u2 X# F# c6 l9 I南通华浔品味装饰官网: http://nthuaxun.com/index.php 欢迎大家登入,更多了解南通华浔! / z* A, \7 J7 ]1 C. D" d5 t
; n1 }" Q6 F6 g& }; E! ]南通0 |