4月8日大通州我们来啦!【书香华府】全案户型解析会
" S5 U9 l6 e* X" J+ p5 b+ h 天空是沉碧的,太阳像海绵一样温软;风吹在人们身上使人着了魔一样地快活。人们迷醉了一样快要溶解在这种光景里了。美丽的4月来到了,我们【书香华府】的家人即将拿到自己心爱的房子,那么我们【润居装饰】设计精英们为大家研发了全套户型解析以及效果图。# D, L8 I9 Z( W7 p
$ l0 `$ c: D& s. _, W. f/ W: M
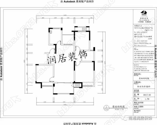
103平户型研发
6 N$ x7 H f6 G' ^9 i 原始结构:
& I$ J8 R$ a4 i* y
1 H1 O1 q4 S: p) K 方案1:
8 c" T; b1 T) C, f+ ?% \/ g
& B. \) T: [/ ~0 c# _4 k$ S
方案2:
& p! E2 R6 G# r/ L$ T; a4 m/ z
9 j* b: G1 [/ K 效果图:
4 h# n0 E3 V1 L I: L2 a& }9 p
8 [% t$ U, n6 f$ G
$ v7 h* B+ Q4 j+ E3 o3 T& C% v
8 ~( f. ^# ^' J# \0 H' l1 W1 i4 l$ L) C' D' {1 E6 u
110平户型研发
7 e m6 Y5 |5 ~* [
* }% W5 _) E8 h& T 原始结构:! ?( ^/ J, {* _1 p
6 D+ n) p& \! q" e 方案1:6 n) r; D4 u- G3 y0 m8 m6 W; i5 [9 d. X
) ~. l% s. m6 d 效果图:
+ d$ ^ h I/ k2 M' v9 b
/ k; A; y) f. D: ~8 D3 h$ E% `
) F% C8 N4 A, H, p 90平户型研发+ ^1 L1 R/ a, p
' j3 `+ K: X7 f* H L# e0 b& S8 r
: Z6 |1 Q- y* D" q' K* C* \ S4 |) @ 原始结构:
- }& u9 v1 w& N
) W }, {7 C3 f8 _6 @/ Q 方案1:
6 ^- g, Z6 q! d0 @+ E. W4 Z: N
+ d9 Z& m" Y& N; G# O
方案2:
: ?7 y7 d9 b F4 S
$ E- o' A: |, D& ^- O* T' o# }
效果图:
* N- p: F2 @ C1 V. y! v/ J' x
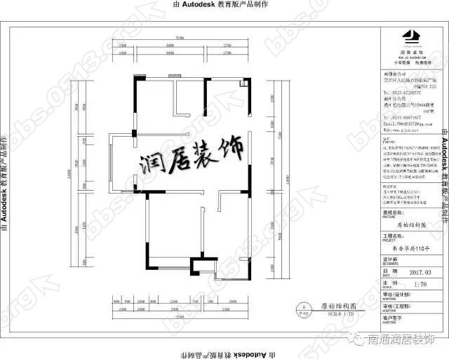
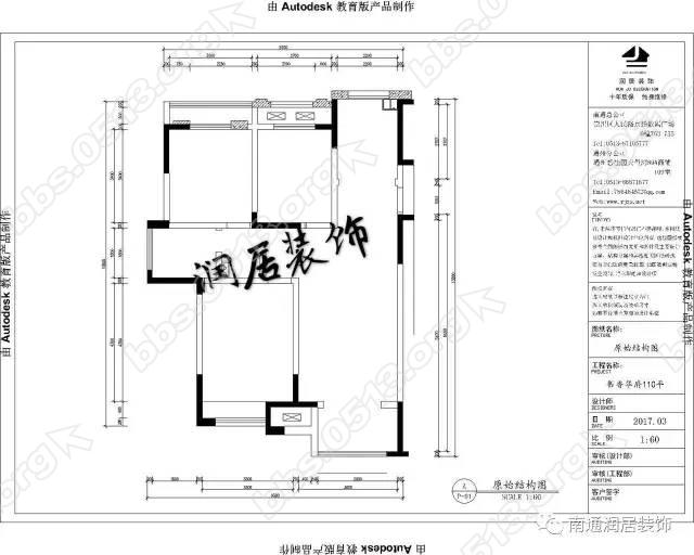
* C6 H4 c1 J: l: d, A* Z4 _ 110平户型研发
8 ^ h1 i& }) P: H) v% @ 原始结构:7 N$ \( f% I. M! ?! L0 z5 R
& ^ y& M) |8 |+ H 方案1:3 `$ f$ Q# v2 ]6 u; E3 u3 B: {
; Z$ M" E1 o, I, H& ?
效果图:/ `# z9 P5 |3 D; B% S
/ h' U1 O' L" | u m' k
/ |% h! t% { i
【书香华府】4月8日全案户型解析会,润居装饰设计精英团队为你讲解不同户型方案及风水运用。让您在装修之前一目了然自己的爱巢。有缘将为您打造完美舒适的家!
& a4 e7 {! q) g3 v2 }: m# o
8 l4 ?6 W6 x5 m E 上届户型解析会回顾
/ w- e, T% m+ h7 R3 Q
/ u* V# W0 {1 ~: p; g/ D# T. x4 }8 B( g) d9 g4 s
- M1 R8 v( Z: D# G
* Z/ L' }+ j1 h& k, X
7 A: r: i6 h/ ?- g4 J2 K y: J( u/ O( ?" |# [
草长莺飞,柳叶儿挂满枝头。 梅花盛开,樱花飞舞,湖边的鸟儿盼着夕阳。 阳春三月幸福感溢满心田, 这丝丝情愫也挑动着你我之间装修之事。 微妙之感无需挑破,只一言便知你我心意。 初见的信任,拉近了距离,一份信任一份责任。
% w6 \6 I: z" F* D0 b" b" T3 o
美丽的通州【书香华府】来了不要错过 活动地址:通州区江海皇都广场新约克咖啡厅(下午:13:00~18:00) 6 W O% q% \" b) l1 o9 R
公交路线:60路、80路、275路、271路、到江海皇都站下,201路、222路、223路、到新世纪大道杏园路口下(打车报销车费) 入场就送精美裂纹茶具一套 6 S. s' L$ O0 e( n+ v% a
" u% y. e! V' y- ]$ @- G
" K( g3 H0 x4 M润居装饰致力于中高档住宅、跃层、别墅、办公商业空间专业设计施工,引领装修界最新潮流,提倡国际化装饰理念,拥有最优秀的设计群体。秉承“专业家装、钻石服务”的服务理念,在家装界留下了良好的口碑,树立了优秀的行业标杆。在其他装饰公司普遍2-3年的质保情况下,润居装饰提出从2013年起所有工程均享受“十年质保,终身维修”,彻底免去业主的后顾之忧。3 U8 z% {$ ~) f' e
H [8 b% l" D1 a+ i
8 S: \& n' w- r! k
6 g; c5 _, H6 J* z
南通贵宾热线 0513—87105777. f# @$ |8 R. E: y5 `# E7 M' _! [
公司地址·:南通市崇川区京扬数码广场D栋753.754.755室 通州贵宾热线 0513—66671877 公司地址:通州区碧桂园天玺湾89号商铺109室 % [% A( _* l2 b$ h
润幸福之家 居温馨之所 
' k- o) o: J6 J
X, x' o3 G% e7 ~( e; ]& h" a! M3 U+ [/ a. V$ w# k6 [
" v* p3 F4 u9 s4 W( S2 n/ p
南通0 |